














Book your tour. Save an average of $18,473. We'll handle the rest.
- Confirmed tours
- Get matched & compare top deals
- Expert help, no pressure
- No added fees
Estimated value based on Jome data, T&C apply





















- 3 bd
- 2.5 ba
- 1,592 sqft
Eagle - Townhomes plan in Brook Forest - Townhomes by Dream Finders Homes
Visit the community to experience this floor plan
Why tour with Jome?
- No pressure toursTour at your own pace with no sales pressure
- Expert guidanceGet insights from our home buying experts
- Exclusive accessSee homes and deals not available elsewhere
Jome is featured in
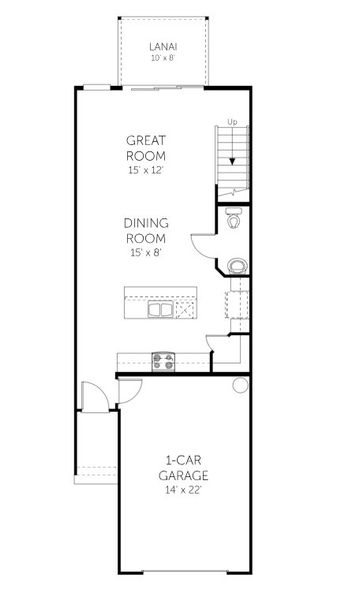
Plan description
May also be listed on the Dream Finders Homes website
Information last verified by Jome: Monday at 5:47 AM (November 10, 2025)
Plan highlights
Plan details
- Name:
- Eagle - Townhomes
- Property status:
- Floor plan
- Size:
- 1,592 sqft
- Stories:
- 2
- Beds:
- 3
- Baths:
- 2
- Half baths:
- 1
- Garage spaces:
- 1
Plan features & finishes
- Garage/Parking:
- GarageAttached Garage
- Interior Features:
- Walk-In Closet
- Laundry facilities:
- Utility/Laundry Room
- Property amenities:
- Lanai
- Rooms:
- Great RoomKitchenDining RoomOpen Concept FloorplanPrimary Bedroom Upstairs
See the full plan layout
Download the floor plan PDF with room dimensions and home design details.

Instant download, no cost

Community details
Brook Forest - Townhomes
by Dream Finders Homes, St. Augustine, FL
- 10 homes
- 6 plans
- 1,386 - 1,994 sqft
View Brook Forest - Townhomes details
Want to know more about what's around here?
The Eagle - Townhomes floor plan is part of Brook Forest - Townhomes, a new home community by Dream Finders Homes, located in St. Augustine, FL. Visit the Brook Forest - Townhomes community page for full neighborhood insights, including nearby schools, shopping, walk & bike-scores, commuting, air quality & natural hazards.

Homes built from this plan
Available homes in Brook Forest - Townhomes
More floor plans in Brook Forest - Townhomes

Considering this plan?
Our expert will guide your tour, in-person or virtual
Need more information?
Text or call (888) 486-2818
Financials
Estimated monthly payment
Similar homes nearby
Recently added communities in this area
Nearby communities in St. Augustine
New homes in nearby cities
More New Homes in St. Augustine, FL
- Home
- New homes
- Florida
- Jacksonville Metropolitan Area
- St. Johns County
- St. Augustine
- Brook Forest - Townhomes
- 51 Woods Ln, St. Augustine, FL 32092
































