









Book your tour. Save an average of $18,473. We'll handle the rest.
We collect exclusive builder offers, book your tours, and support you from start to housewarming.
- Confirmed tours
- Get matched & compare top deals
- Expert help, no pressure
- No added fees
Estimated value based on Jome data, T&C apply















- 3 bd
- 2.5 ba
- 1,626 sqft
Luna plan in Egret Creek by Mattamy Homes
Visit the community to experience this floor plan
Why tour with Jome?
- No pressure toursTour at your own pace with no sales pressure
- Expert guidanceGet insights from our home buying experts
- Exclusive accessSee homes and deals not available elsewhere
Jome is featured in
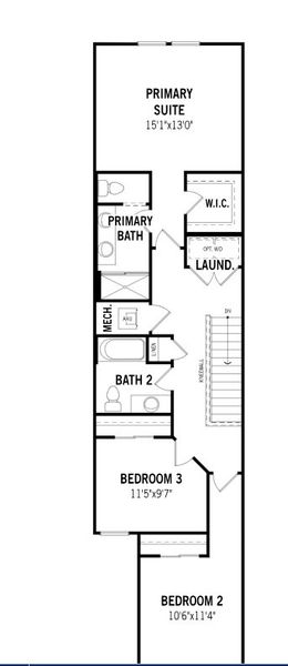
Plan description
May also be listed on the Mattamy Homes website
Information last verified by Jome: Today at 5:45 AM (April 13, 2026)
Plan details
- Name:
- Luna
- Property type:
- Floor plan
- Community:
- Egret Creek
- Builder:
- Mattamy Homes
- Size:
- 1,626 sqft
- Stories:
- 2
- Beds:
- 3
- Baths:
- 2
- Half baths:
- 1
- Garage spaces:
- 1
Plan features & finishes
- Garage/Parking:
- GarageAttached Garage
- Interior Features:
- Walk-In ClosetFoyerPantry
- Laundry facilities:
- Laundry Facilities On Upper LevelUtility/Laundry Room
- Property amenities:
- Porch
- Rooms:
- Great RoomKitchenPowder RoomDining RoomOpen Concept FloorplanPrimary Bedroom Upstairs

Get a consultation with our New Homes Expert
- See how your home builds wealth
- Plan your home-buying roadmap
- Discover hidden gems
See the full plan layout
Download the floor plan PDF with room dimensions and home design details.

Instant download, no cost

Community details
Egret Creek
by Mattamy Homes, Jacksonville, FL
- 19 homes
- 3 plans
- 1,615 - 1,626 sqft
View Egret Creek details
Want to know more about what's around here?
The Luna floor plan is part of Egret Creek, a new home community by Mattamy Homes, located in Jacksonville, FL. Visit the Egret Creek community page for full neighborhood insights, including nearby schools, shopping, walk & bike-scores, commuting, air quality & natural hazards.

Homes built from this plan
Available homes in Egret Creek
- Home at address 1037 Egret Branch Wy, Jacksonville, FL 32218

Luna
Savings$234,000
- 3 bd
- 3 ba
- 1,626 sqft
1037 Egret Branch Wy, Jacksonville, FL 32218
- Home at address 1021 Egret Branch Wy, Jacksonville, FL 32218

Olive
Savings$244,000
- 3 bd
- 3 ba
- 1,615 sqft
1021 Egret Branch Wy, Jacksonville, FL 32218
- Home at address 1019 Egret Branch Wy, Jacksonville, FL 32218

Olive
Savings$244,000
- 3 bd
- 3 ba
- 1,615 sqft
1019 Egret Branch Wy, Jacksonville, FL 32218
- Home at address 1027 Egret Branch Wy, Jacksonville, FL 32218

Avery
Savings$258,000
- 3 bd
- 3 ba
- 1,615 sqft
1027 Egret Branch Wy, Jacksonville, FL 32218
- Home at address 1020 Egret Branch Wy, Jacksonville, FL 32218

Olive
Savings$275,000
- 3 bd
- 3 ba
- 1,615 sqft
1020 Egret Branch Wy, Jacksonville, FL 32218
- Home at address 1001 Egret Branch Wy, Jacksonville, FL 32218

Olive
Savings$276,490
- 3 bd
- 2.5 ba
- 1,615 sqft
1001 Egret Branch Wy, Jacksonville, FL 32218
More floor plans in Egret Creek

Considering this plan?
Our expert will guide your tour, in-person or virtual
Need more information?
Text or call (888) 545-5198
Financials
Estimated monthly payment
Let us help you find your dream home
How many bedrooms are you looking for?
Similar homes nearby
Recently added communities in this area
Nearby communities in Jacksonville
New homes in nearby cities
More New Homes in Jacksonville, FL
- Jome
- New homes search
- Florida
- Jacksonville Metropolitan Area
- Duval County
- Jacksonville
- Egret Creek
- 1047 Egret Branch Wy, Jacksonville, FL 32218































