














- 3 bd
- 2 ba
- 2,106 sqft
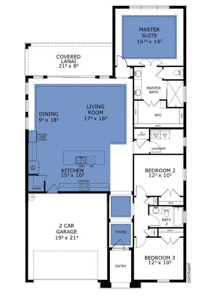
Charlotte - Classic Series | 50' Wide Lots plan in Plantation Bay by ICI Homes
New Homes for Sale Near 100 Plantation Bay Dr, Ormond Beach, FL 32174
About this Plan
May also be listed on the ICI Homes website
Information last verified by Jome: Tuesday at 4:37 PM (February 24, 2026)
Plan details
- Name:
- Charlotte - Classic Series | 50' Wide Lots
- Property type:
- Sold
- Community:
- Plantation Bay
- Builder:
- ICI Homes
- Collection:
- Westlake Single Family
- Lot width (feet):
- 50
- Size:
- 2,106 sqft
- Stories:
- 1
- Beds:
- 3
- Baths:
- 2
- Garage spaces:
- 2
- HERS index:
- 55
Plan features & finishes
- Garage/Parking:
- GarageAttached Garage
- Interior Features:
- Walk-In ClosetFoyerPantry
- Laundry facilities:
- Utility/Laundry Room
- Property amenities:
- Lanai
- Rooms:
- Primary Bedroom On MainKitchenDining RoomFamily RoomPrimary Bedroom Downstairs
- Upgrade Options:
- Tray CeilingLaundry SinkCovered Lanai
See the full plan layout
Download the floor plan PDF with room dimensions and home design details.

Instant download, no cost

Community details
Plantation Bay
by ICI Homes, Ormond Beach, FL
- 8 homes
- 26 plans
- 1,643 - 4,101 sqft
View Plantation Bay details
Want to know more about what's around here?
The Charlotte - Classic Series | 50' Wide Lots floor plan is part of Plantation Bay, a new home community by ICI Homes, located in Ormond Beach, FL. Visit the Plantation Bay community page for full neighborhood insights, including nearby schools, shopping, walk & bike-scores, commuting, air quality & natural hazards.

Available homes in Plantation Bay
- Home at address 14 Brighton Ln, Ormond Beach, FL 32174

$429,000
Move-in ready- 3 bd
- 3 ba
- 2,095 sqft
14 Brighton Ln, Ormond Beach, FL 32174
- Home at address 12 Broadwater Rd, Ormond Beach, FL 32174

$804,294
Under construction- 3 bd
- 3 ba
- 2,565 sqft
12 Broadwater Rd, Ormond Beach, FL 32174
- Home at address 279 Stirling Brige Dr, Ormond Beach, FL 32174

$1,231,673
Under construction- 3 bd
- 3 ba
- 3,137 sqft
279 Stirling Brige Dr, Ormond Beach, FL 32174
- Home at address 441 Stirling Bridge Dr, Ormond Beach, FL 32174

$1,252,405
Move-in ready- 3 bd
- 3 ba
- 2,665 sqft
441 Stirling Bridge Dr, Ormond Beach, FL 32174
- Home at address 443 Stirling Bridge Dr, Ormond Beach, FL 32174

$1,301,535
Move-in ready- 4 bd
- 3 ba
- 2,588 sqft
443 Stirling Bridge Dr, Ormond Beach, FL 32174
- Home at address 256 Stirling Bridge Dr, Ormond Beach, FL 32174

$1,815,112
Move-in ready- 4 bd
- 4 ba
- 3,362 sqft
256 Stirling Bridge Dr, Ormond Beach, FL 32174
More floor plans in Plantation Bay
- View details for Blossom II - Townhome Series

Blossom II - Townhome Series
Westlake Townhomes
$431,900+- 3 bd
- 3 ba
- 2,097 sqft
- View details for Blossom III - Townhome Series

Blossom III - Townhome Series
Westlake Townhomes
$446,900+- 3 bd
- 3 ba
- 2,095 sqft
Financials
Nearby communities in Ormond Beach
Homes in Ormond Beach Neighborhoods
Homes in Ormond Beach by ICI Homes
Recently added communities in this area
Other Builders in Ormond Beach, FL
Nearby sold homes
New homes in nearby cities
More New Homes in Ormond Beach, FL
- Jome
- New homes search
- Florida
- Greater Orlando Area
- Flagler County
- Ormond Beach
- Plantation Bay
- Westlake Single Family
- 100 Plantation Bay Dr, Ormond Beach, FL 32174

































































