



Book your tour. Save an average of $18,473. We'll handle the rest.
- Confirmed tours
- Get matched & compare top deals
- Expert help, no pressure
- No added fees
Estimated value based on Jome data, T&C apply
- 5 bd
- 4 ba
- 2,956 sqft
Vision plan in Palm Grove by Neal Communities
Visit the community to experience this floor plan
Why tour with Jome?
- No pressure toursTour at your own pace with no sales pressure
- Expert guidanceGet insights from our home buying experts
- Exclusive accessSee homes and deals not available elsewhere
Jome is featured in
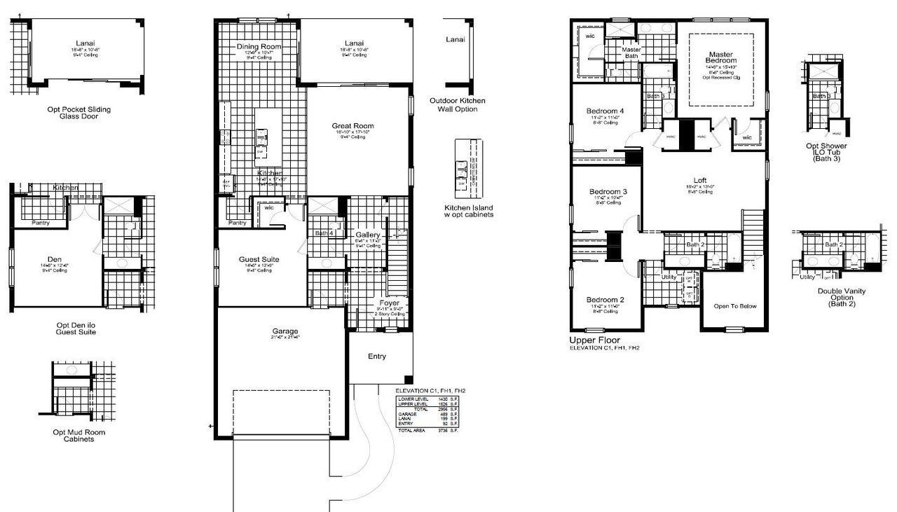
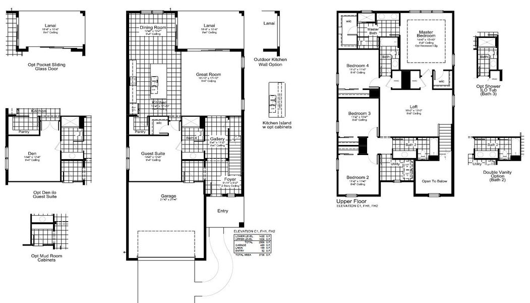
Plan description
May also be listed on the Neal Communities website
Information last verified by Jome: Today at 9:12 AM (December 23, 2025)
Plan highlights
Plan details
- Name:
- Vision
- Property status:
- Floor plan
- Size:
- 2,956 sqft
- Stories:
- 2
- Beds:
- 5
- Baths:
- 4
- Garage spaces:
- 2
Plan features & finishes
- Garage/Parking:
- GarageAttached Garage
- Interior Features:
- Walk-In ClosetFoyerPantryLoft
- Laundry facilities:
- Utility/Laundry Room
- Property amenities:
- Lanai
- Rooms:
- KitchenGuest RoomDining RoomFamily RoomPrimary Bedroom Upstairs
See the full plan layout
Download the floor plan PDF with room dimensions and home design details.

Instant download, no cost

Community details
Palm Grove
by Neal Communities, Lakewood Ranch, FL
- 7 homes
- 22 plans
- 1,533 - 3,486 sqft
View Palm Grove details
Want to know more about what's around here?
The Vision floor plan is part of Palm Grove, a new home community by Neal Communities, located in Lakewood Ranch, FL. Visit the Palm Grove community page for full neighborhood insights, including nearby schools, shopping, walk & bike-scores, commuting, air quality & natural hazards.

Available homes in Palm Grove
More floor plans in Palm Grove

Considering this plan?
Our expert will guide your tour, in-person or virtual
Need more information?
Text or call (888) 486-2818
Financials
Estimated monthly payment
Similar homes nearby
Recently added communities in this area
Nearby communities in Lakewood Ranch
New homes in nearby cities
More New Homes in Lakewood Ranch, FL
- Jome
- New homes search
- Florida
- Tampa Bay Area
- Manatee County
- Lakewood Ranch
- Palm Grove
- 2013 Coconut Palm Cv, Lakewood Ranch, FL 34212



























