









Book your tour. Save an average of $18,473. We'll handle the rest.
We collect exclusive builder offers, book your tours, and support you from start to housewarming.
- Confirmed tours
- Get matched & compare top deals
- Expert help, no pressure
- No added fees
Estimated value based on Jome data, T&C apply
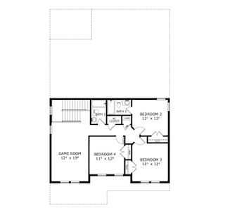
- 4 bd
- 3.5 ba
- 2,729 sqft
Santa Cruz - Classic Series - 50' Wide Lots plan in Nocatee by ICI Homes
Visit the community to experience this floor plan
Why tour with Jome?
- No pressure toursTour at your own pace with no sales pressure
- Expert guidanceGet insights from our home buying experts
- Exclusive accessSee homes and deals not available elsewhere
Jome is featured in
Plan description
May also be listed on the ICI Homes website
Information last verified by Jome: Yesterday at 6:23 PM (February 26, 2026)
Plan details
- Name:
- Santa Cruz - Classic Series - 50' Wide Lots
- Property status:
- Floor plan
- Collection:
- Seabrook Village II
- Lot width (feet):
- 50
- Size:
- 2,729 sqft
- Stories:
- 2
- Beds:
- 4
- Baths:
- 3.5
- Garage spaces:
- 2
- HERS index:
- 60
Plan features & finishes
- Garage/Parking:
- GarageAttached Garage
- Interior Features:
- Walk-In ClosetFoyerPantry
- Laundry facilities:
- Utility/Laundry Room
- Property amenities:
- Lanai
- Rooms:
- Flex RoomKitchenPowder RoomGame RoomDining RoomLiving RoomOpen Concept FloorplanPrimary Bedroom Downstairs
- Upgrade Options:
- Kitchen Island

Get a consultation with our New Homes Expert
- See how your home builds wealth
- Plan your home-buying roadmap
- Discover hidden gems
See the full plan layout
Download the floor plan PDF with room dimensions and home design details.

Instant download, no cost

Community details
Nocatee at Nocatee
by ICI Homes, Nocatee, FL
- 17 homes
- 17 plans
- 1,635 - 3,234 sqft
View Nocatee details
Want to know more about what's around here?
The Santa Cruz - Classic Series - 50' Wide Lots floor plan is part of Nocatee, a new home community by ICI Homes, located in Nocatee, FL. Visit the Nocatee community page for full neighborhood insights, including nearby schools, shopping, walk & bike-scores, commuting, air quality & natural hazards.

Homes built from this plan
Available homes in Nocatee
- Home at address 67 Sewall Ln, Ponte Vedra, FL 32081

Home
West End at Town Center
$574,000
- 4 bd
- 4 ba
- 1,966 sqft
67 Sewall Ln, Ponte Vedra, FL 32081
- Home at address 67 Sewall Ln, Ponte Vedra, FL 32081

Fleming - F - Townhome Series
West End at Town Center
$574,000
- 4 bd
- 3.5 ba
- 1,966 sqft
67 Sewall Ln, Ponte Vedra, FL 32081
- Home at address 33 Evenfall Dr, Ponte Vedra, FL 32081

Santa Cruz - Classic Series
Seabrook Village II
$849,000
- 4 bd
- 4 ba
- 2,761 sqft
33 Evenfall Dr, Ponte Vedra, FL 32081
- Home at address 149 Owenlee Dr, Ponte Vedra, FL 32081

Santa Cruz - Elite Series
Reflections at Seabrook
$949,000
- 4 bd
- 4 ba
- 2,768 sqft
149 Owenlee Dr, Ponte Vedra, FL 32081
- Home at address 51 Whitecap Ln, Ponte Vedra, FL 32081

Santa Cruz - Classic Series
Seabrook Village II
$949,000
- 4 bd
- 4 ba
- 2,761 sqft
51 Whitecap Ln, Ponte Vedra, FL 32081
More floor plans in Nocatee
- View details for Fleming - F - Townhome Series

Fleming - F - Townhome Series
West End at Town Center
$547,900+- 4 bd
- 3.5 ba
- 1,966 sqft
- View details for Aiden - Classic Series - 50' Wide Lots

Aiden - Classic Series - 50' Wide Lots
Seabrook Village II
$640,900+- 4 bd
- 3 ba
- 2,399 sqft

Considering this plan?
Our expert will guide your tour, in-person or virtual
Need more information?
Text or call (888) 488-9243
Financials
Estimated monthly payment
Let us help you find your dream home
How many bedrooms are you looking for?
Similar homes nearby
Recently added communities in this area
Nearby communities in Nocatee
New homes in nearby cities
More New Homes in Nocatee, FL
- Jome
- New homes search
- Florida
- Jacksonville Metropolitan Area
- St. Johns County
- Nocatee
- Nocatee
- Seabrook Village II
- 64 Owenlee Ct, Nocatee, FL 32081




























