



Book your tour. Save an average of $18,473. We'll handle the rest.
We collect exclusive builder offers, book your tours, and support you from start to housewarming.
- Confirmed tours
- Get matched & compare top deals
- Expert help, no pressure
- No added fees
Estimated value based on Jome data, T&C apply


- 3 bd
- 2.5 ba
- 1,815 sqft
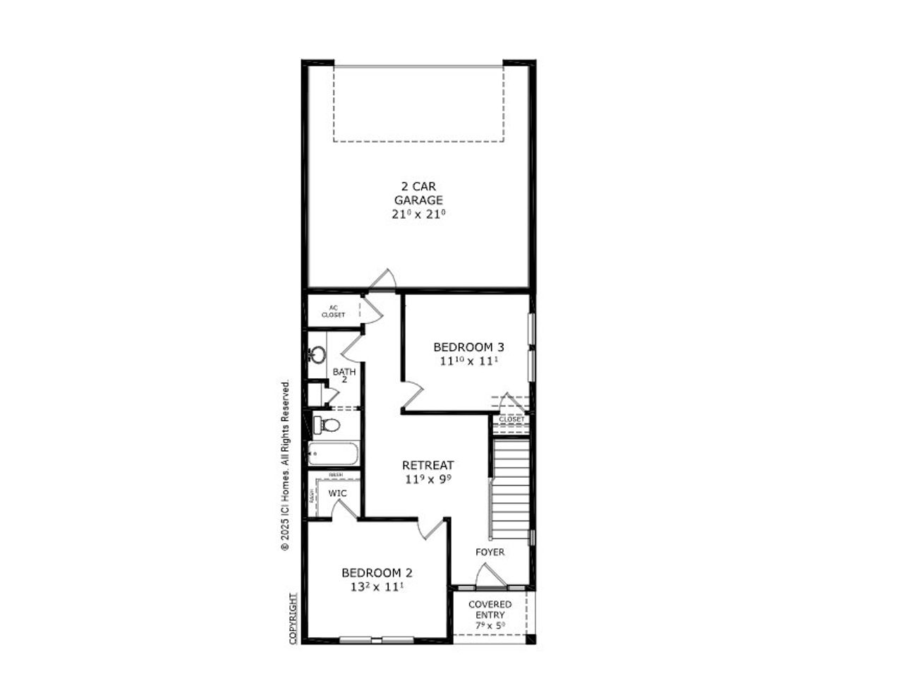
Elkton - E - Townhome Series plan in Nocatee by ICI Homes
Visit the community to experience this floor plan
Why tour with Jome?
- No pressure toursTour at your own pace with no sales pressure
- Expert guidanceGet insights from our home buying experts
- Exclusive accessSee homes and deals not available elsewhere
Jome is featured in
Plan description
May also be listed on the ICI Homes website
Information last verified by Jome: Yesterday at 4:33 PM (April 18, 2026)
Plan details
- Name:
- Elkton - E - Townhome Series
- Property type:
- Floor plan
- Community:
- Nocatee
- Builder:
- ICI Homes
- Collection:
- West End at Town Center
- Size:
- 1,815 sqft
- Stories:
- 2
- Beds:
- 3
- Baths:
- 2.5
- Garage spaces:
- 2
- HERS index:
- 57
Plan features & finishes
- Garage/Parking:
- GarageAttached Garage
- Interior Features:
- Walk-In ClosetFoyerPantry
- Laundry facilities:
- Utility/Laundry Room
- Property amenities:
- Balcony
- Rooms:
- KitchenRetreat AreaPowder RoomGame RoomDining RoomLiving RoomPrimary Bedroom Upstairs
- Upgrade Options:
- Outdoor KitchenExtended Patio

Get a consultation with our New Homes Expert
- See how your home builds wealth
- Plan your home-buying roadmap
- Discover hidden gems
See the full plan layout
Download the floor plan PDF with room dimensions and home design details.

Instant download, no cost

Community details
Nocatee at Nocatee
by ICI Homes, Nocatee, FL
- 10 homes
- 13 plans
- 1,635 - 3,248 sqft
View Nocatee details
Want to know more about what's around here?
The Elkton - E - Townhome Series floor plan is part of Nocatee, a new home community by ICI Homes, located in Nocatee, FL. Visit the Nocatee community page for full neighborhood insights, including nearby schools, shopping, walk & bike-scores, commuting, air quality & natural hazards.

Available homes in Nocatee
- Home at address 24 Islington Ln, Ponte Vedra, FL 32081

Deleon - D - Townhome Series
West End at Town Center
$470,000
- 3 bd
- 3 ba
- 1,635 sqft
24 Islington Ln, Ponte Vedra, FL 32081
- Home at address 34 Islington Ln, Ponte Vedra, FL 32081

Castillo - C - Townhome Series
West End at Town Center
$479,655
- 3 bd
- 3 ba
- 1,680 sqft
34 Islington Ln, Ponte Vedra, FL 32081
- Home at address 30 Islington Ln, Ponte Vedra, FL 32081

Deleon - D - Townhome Series
West End at Town Center
$507,635
- 3 bd
- 3 ba
- 1,635 sqft
30 Islington Ln, Ponte Vedra, FL 32081
- Home at address 14 Islington Ln, Ponte Vedra, FL 32081

Bartram - B - Townhome Series
West End at Town Center
$520,000
- 3 bd
- 3 ba
- 1,848 sqft
14 Islington Ln, Ponte Vedra, FL 32081
- Home at address 63 Sewall Ln, Ponte Vedra, FL 32081

Home
West End at Town Center
$529,745
- 3 bd
- 3 ba
- 1,635 sqft
63 Sewall Ln, Ponte Vedra, FL 32081
- Home at address 20 Islington Ln, Ponte Vedra, FL 32081

Castillo - C - Townhome Series
West End at Town Center
$534,400
- 3 bd
- 3 ba
- 1,680 sqft
20 Islington Ln, Ponte Vedra, FL 32081
More floor plans in Nocatee
- View details for Deleon - D - Townhome Series

Deleon - D - Townhome Series
West End at Town Center
$472,900+- 3 bd
- 2.5 ba
- 1,635 sqft
- View details for Castillo - C - Townhome Series

Castillo - C - Townhome Series
West End at Town Center
$478,900+- 3 bd
- 2.5 ba
- 1,680 sqft

Considering this plan?
Our expert will guide your tour, in-person or virtual
Need more information?
Text or call (888) 545-5198
Financials
Estimated monthly payment
Let us help you find your dream home
How many bedrooms are you looking for?
Similar homes nearby
Recently added communities in this area
Nearby communities in Nocatee
New homes in nearby cities
More New Homes in Nocatee, FL
- Jome
- New homes search
- Florida
- Jacksonville Metropolitan Area
- St. Johns County
- Nocatee
- Nocatee
- West End at Town Center
- 64 Owenlee Ct, Nocatee, FL 32081






























