

Book your tour. Save an average of $18,473. We'll handle the rest.
We collect exclusive builder offers, book your tours, and support you from start to housewarming.
- Confirmed tours
- Get matched & compare top deals
- Expert help, no pressure
- No added fees
Estimated value based on Jome data, T&C apply
- 3 bd
- 2.5 ba
- 2,393 sqft
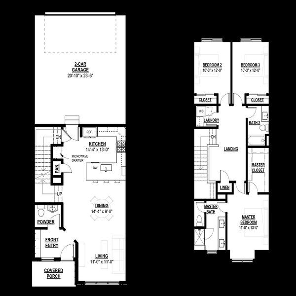
Glacier plan in Eagle Brook Meadows by Black Timber Builders
Visit the community to experience this floor plan
Why tour with Jome?
- No pressure toursTour at your own pace with no sales pressure
- Expert guidanceGet insights from our home buying experts
- Exclusive accessSee homes and deals not available elsewhere
Jome is featured in
Plan description
May also be listed on the Black Timber Builders website
Information last verified by Jome: Friday at 2:36 AM (April 10, 2026)
Plan details
- Name:
- Glacier
- Property type:
- Floor plan
- Community:
- Eagle Brook Meadows
- Builder:
- Black Timber Builders
- Size:
- 2,393 sqft
- Stories:
- 2
- Beds:
- 3
- Baths:
- 2.5
- Garage spaces:
- 2
Plan features & finishes
- Cooling:
- A/C
- Flooring:
- Vinyl Flooring
- Garage/Parking:
- Door OpenerGarageAttached Garage
- Interior Features:
- Walk-In ClosetPantryStaircasesDouble Vanity
- Kitchen:
- DishwasherMicrowave OvenStainless Steel AppliancesKitchen Island
- Laundry facilities:
- Laundry Facilities On Upper LevelUtility/Laundry Room
- Property amenities:
- BasementCovered Porch
- Rooms:
- KitchenPowder RoomDining RoomLiving RoomOpen Concept FloorplanPrimary Bedroom Upstairs
- Security system:
- Radon Detector

Get a consultation with our New Homes Expert
- See how your home builds wealth
- Plan your home-buying roadmap
- Discover hidden gems
Utility information
- Heating:
- Water Heater
See the full plan layout
Download the floor plan PDF with room dimensions and home design details.

Instant download, no cost

Community details
Eagle Brook Meadows
by Black Timber Builders, Loveland, CO
- 3 homes
- 6 plans
- 2,232 - 2,842 sqft
View Eagle Brook Meadows details
Want to know more about what's around here?
The Glacier floor plan is part of Eagle Brook Meadows, a new home community by Black Timber Builders, located in Loveland, CO. Visit the Eagle Brook Meadows community page for full neighborhood insights, including nearby schools, shopping, walk & bike-scores, commuting, air quality & natural hazards.

Available homes in Eagle Brook Meadows
- Home at address 5174 Stonewall St, Loveland, CO 80538

Pike
$473,000
- 3 bd
- 1.5 ba
- 2,283 sqft
5174 Stonewall St, Loveland, CO 80538
- Home at address 5049 Avon Ave, Loveland, CO 80538

Zion
$476,000
- 3 bd
- 1.5 ba
- 2,232 sqft
5049 Avon Ave, Loveland, CO 80538
- Home at address 5001 Avon Ave, Loveland, CO 80538

Zion
$479,000
- 3 bd
- 1.5 ba
- 2,232 sqft
5001 Avon Ave, Loveland, CO 80538
More floor plans in Eagle Brook Meadows

Considering this plan?
Our expert will guide your tour, in-person or virtual
Need more information?
Text or call (888) 545-5198
Financials
Let us help you find your dream home
How many bedrooms are you looking for?
Similar homes nearby
Recently added communities in this area
Nearby communities in Loveland
New homes in nearby cities
More New Homes in Loveland, CO
- Jome
- New homes search
- Colorado
- Denver Metropolitan Area
- Larimer County
- Loveland
- Eagle Brook Meadows
- 5042 Stonewall St, Loveland, CO 80538





























