





Book your tour. Save an average of $18,473. We'll handle the rest.
- Confirmed tours
- Get matched & compare top deals
- Expert help, no pressure
- No added fees
Estimated value based on Jome data, T&C apply
- 4 bd
- 4.5 ba
- 4,889 sqft
Vector 2 plan in Vector at the Canyons by Infinity Properties
Visit the community to experience this floor plan
Why tour with Jome?
- No pressure toursTour at your own pace with no sales pressure
- Expert guidanceGet insights from our home buying experts
- Exclusive accessSee homes and deals not available elsewhere
Jome is featured in
Plan description
May also be listed on the Infinity Properties website
Information last verified by Jome: Tuesday at 12:13 PM (November 25, 2025)
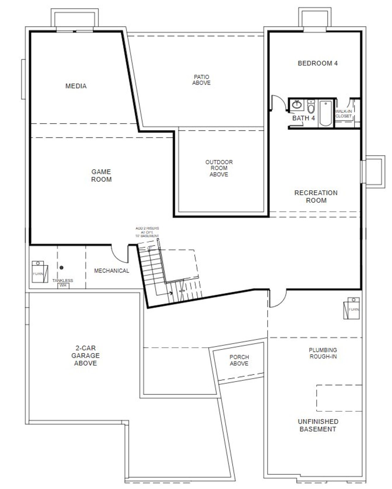
Plan highlights
Plan details
- Name:
- Vector 2
- Property status:
- Floor plan
- Size:
- 4,889 sqft
- Stories:
- 2
- Beds:
- 4
- Baths:
- 4.5
- Garage spaces:
- 3
Plan features & finishes
- Garage/Parking:
- GarageAttached Garage
- Interior Features:
- Walk-In ClosetFoyerPantryStaircasesLoft
- Kitchen:
- Kitchen Island
- Laundry facilities:
- Utility/Laundry Room
- Property amenities:
- BasementPatioPorch
- Rooms:
- KitchenRecreational RoomPowder RoomGame RoomMedia RoomOffice/StudyDining RoomFamily RoomOpen Concept FloorplanPrimary Bedroom Upstairs
- Upgrade Options:
- Game RoomExtra BedroomWet Bar

Get a consultation with our New Homes Expert
- See how your home builds wealth
- Plan your home-buying roadmap
- Discover hidden gems
See the full plan layout
Download the floor plan PDF with room dimensions and home design details.

Instant download, no cost

Community details
Vector at the Canyons at The Canyons
by Infinity Properties, Castle Pines, CO
- 1 plan
- 4,889 - 4,889 sqft
View Vector at the Canyons details
Want to know more about what's around here?
The Vector 2 floor plan is part of Vector at the Canyons, a new home community by Infinity Properties, located in Castle Pines, CO. Visit the Vector at the Canyons community page for full neighborhood insights, including nearby schools, shopping, walk & bike-scores, commuting, air quality & natural hazards.


Considering this plan?
Our expert will guide your tour, in-person or virtual
Need more information?
Text or call (888) 486-2818
Financials
Let us help you find your dream home
How many bedrooms are you looking for?
Similar homes nearby
Recently added communities in this area
Nearby communities in Castle Pines
New homes in nearby cities
More New Homes in Castle Pines, CO
- Jome
- New homes search
- Colorado
- Denver Metropolitan Area
- Douglas County
- Castle Pines
- Vector at the Canyons
- 7188 Skygazer St, Castle Pines, CO 80108

























