



Book your tour. Save an average of $18,473. We'll handle the rest.
We collect exclusive builder offers, book your tours, and support you from start to housewarming.
- Confirmed tours
- Get matched & compare top deals
- Expert help, no pressure
- No added fees
Estimated value based on Jome data, T&C apply

- 4 bd
- 2.5 ba
- 2,273 sqft
Lavender plan in Saguaro Hills at Vistancia by DRB Homes
Visit the community to experience this floor plan
Why tour with Jome?
- No pressure toursTour at your own pace with no sales pressure
- Expert guidanceGet insights from our home buying experts
- Exclusive accessSee homes and deals not available elsewhere
Jome is featured in
Plan description
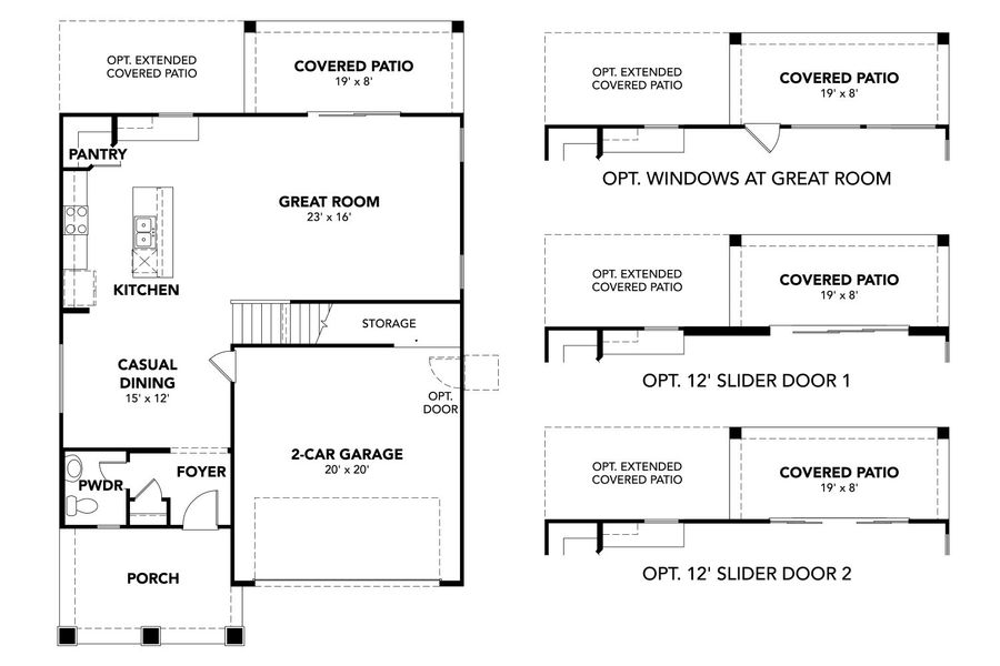
The Lavender floor plan brings a graceful sense of ease to the Castillo Series, with a layout designed for both everyday convenience and elevated living. Generous living spaces flow together seamlessly, offering plenty of room to gather, unwind, and entertain. The heart of the home is a light-filled kitchen with stylish finishes that make every day feel special. From morning routines to weekend celebrations, the Lavender supports your lifestyle with spaces that feel open, comfortable, and beautifuly designed. It is a home that invites you to slow down, settle in, and savor the details.
May also be listed on the DRB Homes website
Information last verified by Jome: Yesterday at 7:11 AM (March 21, 2026)
Book your tour. Save an average of $18,473. We'll handle the rest.
We collect exclusive builder offers, book your tours, and support you from start to housewarming.
- Confirmed tours
- Get matched & compare top deals
- Expert help, no pressure
- No added fees
Estimated value based on Jome data, T&C apply
Plan details
- Name:
- Lavender
- Property type:
- Floor plan
- Community:
- Saguaro Hills at Vistancia
- Builder:
- DRB Homes
- Size from:
- 2,273 sqft
- Size to:
- 2,274 sqft
- Beds:
- 4
- Baths:
- 2
- Half baths:
- 1
- Garage spaces:
- 2
Plan features & finishes
- Garage/Parking:
- Garage

Get a consultation with our New Homes Expert
- See how your home builds wealth
- Plan your home-buying roadmap
- Discover hidden gems

Community details
Saguaro Hills at Vistancia at Vistancia
by DRB Homes, Peoria, AZ
- 6 plans
- 1,486 - 3,027 sqft
View Saguaro Hills at Vistancia details
Want to know more about what's around here?
The Lavender floor plan is part of Saguaro Hills at Vistancia, a new home community by DRB Homes, located in Peoria, AZ. Visit the Saguaro Hills at Vistancia community page for full neighborhood insights, including nearby schools, shopping, walk & bike-scores, commuting, air quality & natural hazards.

More floor plans in Saguaro Hills at Vistancia

Considering this plan?
Our expert will guide your tour, in-person or virtual
Need more information?
Text or call (888) 545-5198
Financials
Estimated monthly payment
Let us help you find your dream home
How many bedrooms are you looking for?
Similar homes nearby
Recently added communities in this area
Nearby communities in Peoria
New homes in nearby cities
More New Homes in Peoria, AZ
- Jome
- New homes search
- Arizona
- Phoenix Metropolitan Area
- Maricopa County
- Peoria
- Saguaro Hills at Vistancia
- 12347 W Caraveo Pl, Peoria, AZ 85383




























