






Book your tour. Save an average of $18,473. We'll handle the rest.
We collect exclusive builder offers, book your tours, and support you from start to housewarming.
- Confirmed tours
- Get matched & compare top deals
- Expert help, no pressure
- No added fees
Estimated value based on Jome data, T&C apply



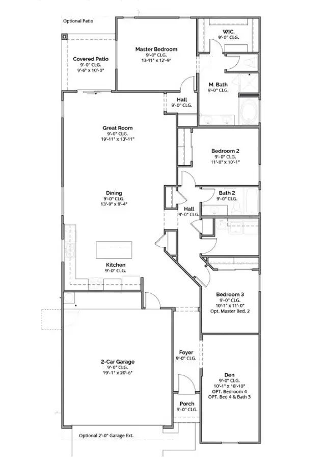
- 3 bd
- 2 ba
- 1,956 sqft
5011 RV plan in Arroyo Grande by Scott Communities
Visit the community to experience this floor plan
Why tour with Jome?
- No pressure toursTour at your own pace with no sales pressure
- Expert guidanceGet insights from our home buying experts
- Exclusive accessSee homes and deals not available elsewhere
Jome is featured in
Plan description
May also be listed on the Scott Communities website
Information last verified by Jome: Thursday at 6:23 PM (April 16, 2026)
Plan details
- Name:
- 5011 RV
- Property type:
- Floor plan
- Community:
- Arroyo Grande
- Builder:
- Scott Communities
- Size:
- 1,956 sqft
- Stories:
- 1
- Beds:
- 3
- Baths:
- 2
- Garage spaces:
- 3
Plan features & finishes
- Garage/Parking:
- Large Boat/RV GarageGarageAttached Garage
- Interior Features:
- Ceiling-HighWalk-In ClosetFoyerPantry
- Kitchen:
- Kitchen Island
- Laundry facilities:
- Utility/Laundry Room
- Property amenities:
- Covered Outdoor LivingPatioPorch
- Rooms:
- Primary Bedroom On MainKitchenDen RoomDining RoomFamily RoomBreakfast AreaOpen Concept FloorplanPrimary Bedroom Downstairs

Get a consultation with our New Homes Expert
- See how your home builds wealth
- Plan your home-buying roadmap
- Discover hidden gems
See the full plan layout
Download the floor plan PDF with room dimensions and home design details.

Instant download, no cost

Community details
Arroyo Grande
by Scott Communities, Casa Grande, AZ
- 5 homes
- 10 plans
- 1,562 - 3,498 sqft
View Arroyo Grande details
Want to know more about what's around here?
The 5011 RV floor plan is part of Arroyo Grande, a new home community by Scott Communities, located in Casa Grande, AZ. Visit the Arroyo Grande community page for full neighborhood insights, including nearby schools, shopping, walk & bike-scores, commuting, air quality & natural hazards.

Available homes in Arroyo Grande
- Home at address 1188 E Ridgerock St, Casa Grande, AZ 85122

Home
Savings$374,000
- 3 bd
- 2 ba
- 1,562 sqft
1188 E Ridgerock St, Casa Grande, AZ 85122
- Home at address 1277 E Ridgerock Lp, Casa Grande, AZ 85122

Home
Savings$397,000
- 3 bd
- 2.5 ba
- 1,700 sqft
1277 E Ridgerock Lp, Casa Grande, AZ 85122
- Home at address 1269 E Ridgerock Lp, Casa Grande, AZ 85122

Lot 175 - Poppy
Savings$439,000
- 3 bd
- 3 ba
- 2,322 sqft
1269 E Ridgerock Lp, Casa Grande, AZ 85122
- Home at address 1285 E Ridgerock Lp, Casa Grande, AZ 85122

Home
Savings$449,000
- 3 bd
- 2.5 ba
- 2,254 sqft
1285 E Ridgerock Lp, Casa Grande, AZ 85122
- Home at address 1271 E Ridgerock Lp, Casa Grande, AZ 85122

Lot 176 - Marigold
Savings$459,000
- 3 bd
- 2.5 ba
- 2,254 sqft
1271 E Ridgerock Lp, Casa Grande, AZ 85122
More floor plans in Arroyo Grande
- View details for Available Floor Plan: HOLLY 3511

Available Floor Plan: HOLLY 3511
Savings$358,990+- 3 bd
- 2 ba
- 1,562 sqft
- View details for Available Floor Plan: DAISY 3512

Available Floor Plan: DAISY 3512
Savings$376,990+- 3 bd
- 2 ba
- 1,700 sqft

Considering this plan?
Our expert will guide your tour, in-person or virtual
Need more information?
Text or call (888) 545-5198
Financials
Estimated monthly payment
Let us help you find your dream home
How many bedrooms are you looking for?
Similar homes nearby
Recently added communities in this area
Nearby communities in Casa Grande
New homes in nearby cities
More New Homes in Casa Grande, AZ
- Jome
- New homes search
- Arizona
- Phoenix Metropolitan Area
- Pinal County
- Casa Grande
- Arroyo Grande
- 1184 E Ridgerock St, Casa Grande, AZ 85122
























