








Book your tour. Save an average of $18,473. We'll handle the rest.
We collect exclusive builder offers, book your tours, and support you from start to housewarming.
- Confirmed tours
- Get matched & compare top deals
- Expert help, no pressure
- No added fees
Estimated value based on Jome data, T&C apply















- 3 bd
- 2.5 ba
- 1,381 sqft
228 Flying Tiger Trl, Jarrell, TX 76537
Why tour with Jome?
- No pressure toursTour at your own pace with no sales pressure
- Expert guidanceGet insights from our home buying experts
- Exclusive accessSee homes and deals not available elsewhere
Jome is featured in
- Single-Family
- Under construction
- $168.17/sqft
- $240/annual HOA
Home description
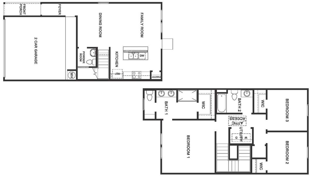
Welcome to the Gardenia floor plan, a beautifully designed two-story home in our Cool Water community in Jarrell, TX. This home spans approximately 1,381 square feet, complete with 3-bedroom, 2.5 bath, and a spacious two-car garage. As you step inside, you're greeted by a welcoming front foyer that seamlessly flows into the open-concept dining, living, and kitchen area, perfect for family gatherings and entertaining guests. The kitchen features a stylish island, providing extra storage space and seating options for added convenience.
Upstairs, you'll discover a well-designed layout starting with a dedicated laundry room that includes a shelf for additional storage. To the right of the staircase, two secondary bedrooms each come with their own walk-in closet, offering plenty of storage space. The secondary bathroom features a shower and tub combo and a one-sink vanity, designed for both comfort and practicality.
Further down the hallway, the primary bedroom awaits, located towards the front of the home for added privacy. The adjoining primary bathroom offers a two-sink vanity, a standing shower, and a spacious walk-in closet, ensuring you have all the room you need.
Discover how the Gardenia can be the perfect place to call home. Contact us today to make it yours!
Nexthome Tropicana Realty, MLS 9238218
May also be listed on the D.R. Horton website
Information last verified by Jome: Today at 6:40 AM (April 26, 2026)
Home highlights
Book your tour. Save an average of $18,473. We'll handle the rest.
We collect exclusive builder offers, book your tours, and support you from start to housewarming.
- Confirmed tours
- Get matched & compare top deals
- Expert help, no pressure
- No added fees
Estimated value based on Jome data, T&C apply
Home details
- Property status:
- Under construction
- Lot size (acres):
- 0.10
- Size:
- 1,381 sqft
- Stories:
- 2
- Beds:
- 3
- Baths:
- 2
- Half baths:
- 1
- Garage spaces:
- 2
- Fence:
- Wood Fence, Privacy Fence
- Facing direction:
- Northwest
Construction details
- Builder Name:
- D.R. Horton
- Year Built:
- 2026
- Roof:
- Composition Roofing, Shingle Roofing
Home features & finishes
- Cooling:
- Ceiling Fan(s)Central Air
- Flooring:
- Vinyl FlooringCarpet Flooring
- Foundation Details:
- Slab
- Garage/Parking:
- GarageFront Entry Garage/ParkingSingle-Door GarageAttached Garage
- Home amenities:
- ENERGY STAR Certified
- Interior Features:
- Walk-In ClosetFoyer
- Kitchen:
- Range-Free StandingDishwasherStainless Steel AppliancesKitchen IslandElectric Oven
- Laundry facilities:
- DryerWasher
- Property amenities:
- BackyardYardPorch
- Rooms:
- Open Concept Floorplan

Get a consultation with our New Homes Expert
- See how your home builds wealth
- Plan your home-buying roadmap
- Discover hidden gems
Utility information
- Heating:
- Water Heater, Central Heating
- Sewer:
- Public Sewer
- Water source:
- Public
Community amenities
- Common Grounds
- Community Pool
- Picnic Area
About the builder - D.R. Horton

- 1,155communities on Jome
- 11,132homes on Jome
Neighborhood
Home address
- City:
- Jarrell
- County:
- Williamson
- Zip Code:
- 76537
Schools in Jarrell Independent School District
- Grades M-MPublicnew middle #21.9 mi2401 e fm 487na
GreatSchools’ Summary Rating calculation is based on 4 of the school’s themed ratings, including test scores, student/academic progress, college readiness, and equity. This information should only be used as a reference. Jome is not affiliated with GreatSchools and does not endorse or guarantee this information. Please reach out to schools directly to verify all information and enrollment eligibility. Data provided by GreatSchools.org © 2025
Places of interest
Getting around
Air quality
Natural hazards risk
Provided by FEMA

Considering this home?
Our expert will guide your tour, in-person or virtual
Need more information?
Text or call (888) 545-5198
Financials
Estimated monthly payment
Let us help you find your dream home
How many bedrooms are you looking for?
Similar homes nearby
Recently added communities in this area
Nearby communities in Jarrell
New homes in nearby cities
More New Homes in Jarrell, TX
Nexthome Tropicana Realty, MLS 9238218
Based on information from the Austin Board of REALTORS® (alternatively, from ACTRIS) for the period through 08/13/2024. Neither the Board nor ACTRIS guarantees or is in any way responsible for its accuracy. All data is provided “AS IS” and with all faults. Data maintained by the Board or ACTRIS may not reflect all real estate activity in the market. Information being provided is for consumers’ personal, non-commercial use and may not be used for any purpose other than to identify prospective properties consumers may be interested in purchasing. The Digital Millennium Copyright Act of 1998, 17 U.S.C. § 512 (the “DMCA”) provides recourse for copyright owners who believe that material appearing on the Internet infringes their rights under U.S. copyright law. If you believe in good faith that any content or material made available in connection with our website or services infringes your copyright, you (or your agent) may send us a notice requesting that the content or material be removed, or access to it blocked. Notices must be sent in writing by email to DMCAnotice@MLSGrid.com. The DMCA requires that your notice of alleged copyright infringement include the following information: (1) description of the copyrighted work that is the subject of claimed infringement; (2) description of the alleged infringing content and information sufficient to permit us to locate the content; (3) contact information for you, including your address, telephone number and email address; (4) a statement by you that you have a good faith belief that the content in the manner complained of is not authorized by the copyright owner, or its agent, or by the operation of any law; (5) a statement by you, signed under penalty of perjury, that the information in the notification is accurate and that you have the authority to enforce the copyrights that are claimed to be infringed; and (6) a physical or electronic signature of the copyright owner or a person authorized to act on the copyright owner’s behalf. Failure to include all of the above information may result in the delay of the processing of your complaint.
Read moreLast checked Apr 26, 6:15 am
- Jome
- New homes search
- Texas
- Greater Austin Area
- Williamson County
- Jarrell
- 228 Flying Tiger Trl, Jarrell, TX 76537




















