







Book your tour. Save an average of $18,473. We'll handle the rest.
We collect exclusive builder offers, book your tours, and support you from start to housewarming.
- Confirmed tours
- Get matched & compare top deals
- Expert help, no pressure
- No added fees
Estimated value based on Jome data, T&C apply



































Why tour with Jome?
- No pressure toursTour at your own pace with no sales pressure
- Expert guidanceGet insights from our home buying experts
- Exclusive accessSee homes and deals not available elsewhere
Jome is featured in
- Single-Family
- Quick move-in
- $142.12/sqft
- $1,300/annual HOA
Builder deals available
FHA 30 Year Fixed
$44,670 est. value- Rate buydown from 3.5% (1–5 year) with 6.804% APR, 3.5% down payment, and 680 credit score
- $10,000 closing costs help
- Includes Refrigerator and Washer/Dryer
Deals may change and are not guaranteed. Some deals apply to specific homes or plans. Not a financing offer. Eligibility varies by lender. Please verify details.
Home description
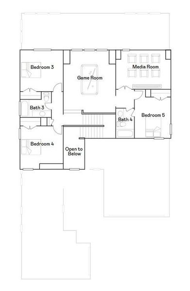
NEW! Lennar Fairway Collection "Oak Hill IV" Plan with Brick Elevation "F" in Kresston! This two-story home showcases Lennar’s signature Next Gen® suite with a separate entrance, living space, kitchenette, bedroom and bath, an ideal setup for multigenerational living. In the main home, the family room, kitchen and dining room share a convenient open floorplan on the first floor. The first-floor owner’s suite offers a restful and spacious sanctuary with a spa-inspired bath. The remaining three bedrooms are surrounded by a versatile upstairs gameroom and media room providing endless entertainment.
Lennar Homes Village Builders, LLC, MLS 8222936
May also be listed on the Lennar website
Information last verified by Jome: Today at 2:51 PM (April 23, 2026)
Book your tour. Save an average of $18,473. We'll handle the rest.
We collect exclusive builder offers, book your tours, and support you from start to housewarming.
- Confirmed tours
- Get matched & compare top deals
- Expert help, no pressure
- No added fees
Estimated value based on Jome data, T&C apply
Home details
- Property status:
- Move-in ready
- Size:
- 3,308 sqft
- Stories:
- 2
- Beds:
- 5
- Baths:
- 4
- Half baths:
- 1
- Garage spaces:
- 3
Construction details
- Builder Name:
- Lennar
- Year Built:
- 2025
- Roof:
- Composition Roofing
Home features & finishes
- Construction Materials:
- CementBrickStone
- Foundation Details:
- Slab
- Garage/Parking:
- GarageAttached Garage
- Interior Features:
- Walk-In ClosetBreakfast BarWalk-In Pantry
- Kitchen:
- Kitchen Island
- Property amenities:
- Bar
- Rooms:
- Kitchen

Get a consultation with our New Homes Expert
- See how your home builds wealth
- Plan your home-buying roadmap
- Discover hidden gems
Utility information
- Heating:
- Gas Heating
- Water source:
- Public

Community details
Kresston at Kresston
by Lennar, Montgomery, TX
- 8 homes
- 7 plans
- 2,386 - 3,308 sqft
View Kresston details
More homes in Kresston
- Home at address 26987 S Rustlers Bnd, Montgomery, TX 77316

Glenbrook II
Savings$385,640
- 3 bd
- 2 ba
- 2,517 sqft
26987 S Rustlers Bnd, Montgomery, TX 77316
- Home at address 27022 W Rustlers Bnd, Montgomery, TX 77316

Cabot II
Savings$388,640
- 3 bd
- 2.5 ba
- 2,386 sqft
27022 W Rustlers Bnd, Montgomery, TX 77316
- Home at address 27026 W Rustlers Bnd, Montgomery, TX 77316

Cantaron II
Savings$388,990
- 4 bd
- 3.5 ba
- 2,548 sqft
27026 W Rustlers Bnd, Montgomery, TX 77316
- Home at address 27019 W Rustlers Bnd, Montgomery, TX 77316

Melrose II
Savings$399,990
- 4 bd
- 3 ba
- 2,731 sqft
27019 W Rustlers Bnd, Montgomery, TX 77316
- Home at address 27023 W Rustlers Bnd, Montgomery, TX 77316

Somerset
Savings$427,790
- 4 bd
- 3.5 ba
- 2,666 sqft
27023 W Rustlers Bnd, Montgomery, TX 77316
- Home at address 27128 Wrangler Way Dr, Montgomery, TX 77316

Wakefield II
Savings$435,090
- 4 bd
- 3.5 ba
- 2,795 sqft
27128 Wrangler Way Dr, Montgomery, TX 77316
Floor plans in Kresston
About the builder - Lennar

- 1,844communities on Jome
- 7,103homes on Jome
Neighborhood
Home address
- City:
- Montgomery
- County:
- Montgomery
- Zip Code:
- 77316
Schools in Magnolia Independent School District
GreatSchools’ Summary Rating calculation is based on 4 of the school’s themed ratings, including test scores, student/academic progress, college readiness, and equity. This information should only be used as a reference. Jome is not affiliated with GreatSchools and does not endorse or guarantee this information. Please reach out to schools directly to verify all information and enrollment eligibility. Data provided by GreatSchools.org © 2025
Places of interest
Getting around
Air quality

Considering this home?
Our expert will guide your tour, in-person or virtual
Need more information?
Text or call (888) 545-5198
Financials
Estimated monthly payment
Let us help you find your dream home
How many bedrooms are you looking for?
Similar homes nearby
Recently added communities in this area
Nearby communities in Montgomery
New homes in nearby cities
More New Homes in Montgomery, TX
Lennar Homes Village Builders, LLC, MLS 8222936
Copyright © 2025, Houston Realtors Information Service, Inc. The information provided is exclusively for consumers’ personal, non-commercial use, and may not be used for any purpose other than to identify prospective properties consumers may be interested in purchasing. Information is deemed reliable but not guaranteed. All information provided should be independently verified.
Read moreLast checked Apr 23, 2:50 pm
- Jome
- New homes search
- Texas
- Greater Houston Area
- Montgomery County
- Montgomery
- Kresston
- 26983 S Rustlers Bnd, Montgomery, TX 77316

























