



Book your tour. Save an average of $18,473. We'll handle the rest.
- Confirmed tours
- Get matched & compare top deals
- Expert help, no pressure
- No added fees
Estimated value based on Jome data, T&C apply
- 4 bd
- 3.5 ba
- 3,073 sqft
5135 Silverbell Ln, Montgomery, TX 77316
Why tour with Jome?
- No pressure toursTour at your own pace with no sales pressure
- Expert guidanceGet insights from our home buying experts
- Exclusive accessSee homes and deals not available elsewhere
Jome is featured in
- Single-Family
- Quick move-in
- $191.99/sqft
- $1,200/annual HOA
Home description
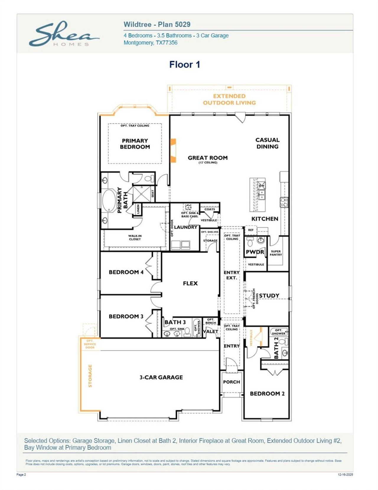
Built by Shea Homes - Est. Completion March 2026 - Step into timeless elegance where every detail has been thoughtfully curated for modern living. An extended entryway welcomes you into an open, airy layout where natural light pours into the spacious living and dining areas. The kitchen is both functional and striking, designed for those who love to cook and gather, with generous prep space and seamless flow for entertaining. Tucked away for privacy, the serene primary suite invites relaxation with a spa-like ambiance and a closet that feels endless. A flexible bonus space offers the freedom to create a personalized retreat, whether for work, wellness, or play. From the expansive outdoor living area to the warm, inviting interior, this home is a true sanctuary designed to inspire connection, comfort, and everyday luxury.
Shea Homes, MLS 74274064
May also be listed on the Shea Homes website
Information last verified by Jome: Today at 2:31 AM (February 3, 2026)
Book your tour. Save an average of $18,473. We'll handle the rest.
We collect exclusive builder offers, book your tours, and support you from start to housewarming.
- Confirmed tours
- Get matched & compare top deals
- Expert help, no pressure
- No added fees
Estimated value based on Jome data, T&C apply
Home details
- Property status:
- Move-in ready
- Lot size (acres):
- 0.20
- Size:
- 3,073 sqft
- Stories:
- 1
- Beds:
- 4
- Baths:
- 3
- Half baths:
- 1
- Garage spaces:
- 3
- Facing direction:
- Northwest
Construction details
- Builder Name:
- Shea Homes
- Completion Date:
- March, 2026
- Year Built:
- 2025
- Roof:
- Composition Roofing
Home features & finishes
- Appliances:
- Sprinkler System
- Construction Materials:
- Brick
- Cooling:
- Ceiling Fan(s)
- Flooring:
- Carpet FlooringTile Flooring
- Foundation Details:
- Slab
- Garage/Parking:
- GarageAttached Garage
- Home amenities:
- Green Construction
- Interior Features:
- Ceiling-HighWired For SecurityWalk-In ClosetCrown MoldingFoyerPantryWalk-In PantryDouble Vanity
- Kitchen:
- DishwasherMicrowave OvenOvenDisposalGas CooktopKitchen IslandDouble Oven
- Laundry facilities:
- DryerUtility/Laundry Room
- Property amenities:
- BackyardOutdoor LivingPorch
- Rooms:
- Flex RoomGreat RoomPrimary Bedroom On MainKitchenPowder RoomOffice/StudyDining RoomFamily RoomOpen Concept FloorplanPrimary Bedroom Downstairs

Get a consultation with our New Homes Expert
- See how your home builds wealth
- Plan your home-buying roadmap
- Discover hidden gems
Utility information
- Heating:
- Water Heater, Gas Heating
- Utilities:
- HVAC

Community details
WILDTREE 60'
by Shea Homes, Montgomery, TX
- 6 homes
- 9 plans
- 2,438 - 3,915 sqft
View WILDTREE 60' details
More homes in WILDTREE 60'
- Home at address 5151 Silverbell Ln, Montgomery, TX 77316

5019
$544,990
- 4 bd
- 3.5 ba
- 2,671 sqft
5151 Silverbell Ln, Montgomery, TX 77316
- Home at address 5155 Silverbell Ln, Montgomery, TX 77363

5039
$579,990
- 4 bd
- 3.5 ba
- 2,795 sqft
5155 Silverbell Ln, Montgomery, TX 77363
- Home at address 5111 Silverbell Ln, Montgomery, TX 77316

5049
$629,990
- 4 bd
- 3.5 ba
- 3,117 sqft
5111 Silverbell Ln, Montgomery, TX 77316
- Home at address 5159 Silverbell Ln, Montgomery, TX 77363

5058
$639,990
- 5 bd
- 4.5 ba
- 3,772 sqft
5159 Silverbell Ln, Montgomery, TX 77363
- Home at address 5127 Silverbell Ln, Montgomery, TX 77316

5042
$649,990
- 4 bd
- 3.5 ba
- 3,241 sqft
5127 Silverbell Ln, Montgomery, TX 77316
Floor plans in WILDTREE 60'
About the builder - Shea Homes
Neighborhood
Home address
- City:
- Montgomery
- County:
- Montgomery
- Zip Code:
- 77316
Schools in Magnolia Independent School District
- Grades M-MPublicaudubon elementary6.5 mi40205 audubon pkwyna
GreatSchools’ Summary Rating calculation is based on 4 of the school’s themed ratings, including test scores, student/academic progress, college readiness, and equity. This information should only be used as a reference. Jome is not affiliated with GreatSchools and does not endorse or guarantee this information. Please reach out to schools directly to verify all information and enrollment eligibility. Data provided by GreatSchools.org © 2025
Places of interest
Getting around
Air quality

Considering this home?
Our expert will guide your tour, in-person or virtual
Need more information?
Text or call (888) 486-2818
Financials
Estimated monthly payment
Let us help you find your dream home
How many bedrooms are you looking for?
Similar homes nearby
Recently added communities in this area
Nearby communities in Montgomery
New homes in nearby cities
More New Homes in Montgomery, TX
Shea Homes, MLS 74274064
Copyright © 2025, Houston Realtors Information Service, Inc. The information provided is exclusively for consumers’ personal, non-commercial use, and may not be used for any purpose other than to identify prospective properties consumers may be interested in purchasing. Information is deemed reliable but not guaranteed. All information provided should be independently verified.
Read moreLast checked Feb 3, 2:50 pm
- Jome
- New homes search
- Texas
- Greater Houston Area
- Montgomery County
- Montgomery
- WILDTREE 60'
- 5135 Silverbell Ln, Montgomery, TX 77316

































