








Book your tour. Save an average of $18,473. We'll handle the rest.
We collect exclusive builder offers, book your tours, and support you from start to housewarming.
- Confirmed tours
- Get matched & compare top deals
- Expert help, no pressure
- No added fees
Estimated value based on Jome data, T&C apply





























- 5 bd
- 3 ba
- 3,052 sqft
6429 Hidden Flower Wy, Fort Worth, TX 76036
Why tour with Jome?
- No pressure toursTour at your own pace with no sales pressure
- Expert guidanceGet insights from our home buying experts
- Exclusive accessSee homes and deals not available elsewhere
Jome is featured in
- Single-Family
- Quick move-in
- $152.36/sqft
- $193/quarterly HOA
Home description
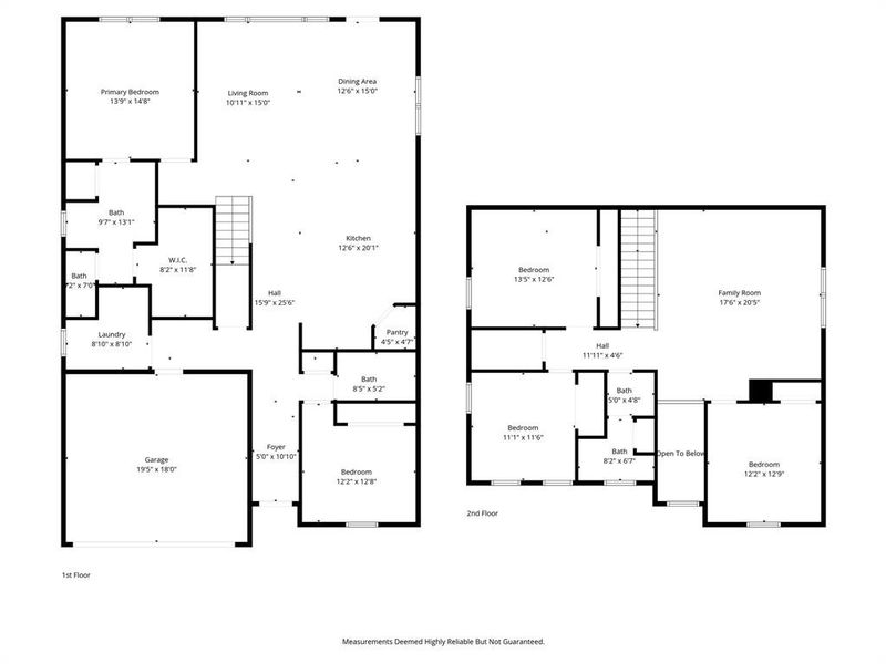
Like-new and built in 2024, this beautifully maintained home offers modern design, thoughtful upgrades, and a prime location just 15 minutes from downtown Fort Worth. Featuring 5 bedrooms, 3 full bathrooms, and a versatile second living space or media room, this home provides plenty of room to live, work, and entertain.
The open-concept main living area is filled with natural light and flows seamlessly into the kitchen, complete with a spacious island, sleek finishes, and ample cabinetry. Thoughtful upgrades throughout the home include a custom mudroom for added storage and organization, a stylish accent wall in the downstairs living room, and a statement light fixture in the foyer.
Upstairs, the media-game room is enhanced with crown molding detail, creating a comfortable and elevated space to relax or host. Additional features such as a ceiling-mounted laundry drying rack add both convenience and functionality.
Practically new and meticulously cared for, this home offers modern living in a growing community with easy access to nearby amenities, schools, and major roadways.
Briggs Freeman Sothebys Intl, MLS 21228212
Information last verified by Jome: Today at 2:45 AM (April 9, 2026)
Home highlights
Book your tour. Save an average of $18,473. We'll handle the rest.
We collect exclusive builder offers, book your tours, and support you from start to housewarming.
- Confirmed tours
- Get matched & compare top deals
- Expert help, no pressure
- No added fees
Estimated value based on Jome data, T&C apply
Home details
- Property status:
- Move-in ready
- Lot size (acres):
- 0.13
- Size:
- 3,052 sqft
- Stories:
- 2
- Beds:
- 5
- Baths:
- 3
- Garage spaces:
- 2
- Fence:
- Wood Fence
Construction details
- Year Built:
- 2024
- Roof:
- Shingle Roofing
Home features & finishes
- Appliances:
- Exhaust Fan Vented
- Flooring:
- Vinyl FlooringCarpet Flooring
- Foundation Details:
- Slab
- Garage/Parking:
- Door OpenerGarageFront Entry Garage/ParkingAttached Garage
- Interior Features:
- Walk-In ClosetPantryFlat Screen Wiring
- Kitchen:
- DishwasherMicrowave OvenOvenDisposalGas CooktopConvection OvenKitchen Island
- Laundry facilities:
- Stackable Washer/Dryer
- Lighting:
- Decorative/Designer Lighting
- Property amenities:
- SidewalkTrees on propertyBackyardSmart Home System
- Rooms:
- Open Concept Floorplan

Get a consultation with our New Homes Expert
- See how your home builds wealth
- Plan your home-buying roadmap
- Discover hidden gems
Utility information
- Utilities:
- Electricity Available, City Water System, Cable Available, High Speed Internet Access, Cable TV
Neighborhood
Home address
- City:
- Fort Worth
- County:
- Tarrant
- Zip Code:
- 76036
Schools in Crowley Independent School District
- Grades PK-KGPrivateprimrose school of columbus trail1.9 mi5330 columbus trlna
GreatSchools’ Summary Rating calculation is based on 4 of the school’s themed ratings, including test scores, student/academic progress, college readiness, and equity. This information should only be used as a reference. Jome is not affiliated with GreatSchools and does not endorse or guarantee this information. Please reach out to schools directly to verify all information and enrollment eligibility. Data provided by GreatSchools.org © 2025
Places of interest
Getting around
Air quality
Natural hazards risk
Provided by FEMA

Considering this home?
Our expert will guide your tour, in-person or virtual
Need more information?
Text or call (888) 545-5198
Financials
Estimated monthly payment
Let us help you find your dream home
How many bedrooms are you looking for?
Similar homes nearby
Recently added communities in this area
Nearby communities in Fort Worth
New homes in nearby cities
More New Homes in Fort Worth, TX
Briggs Freeman Sothebys Intl, MLS 21228212
IDX information is provided exclusively for personal, non-commercial use, and may not be used for any purpose other than to identify prospective properties consumers may be interested in purchasing. You may not reproduce or redistribute this data, it is for viewing purposes only. This data is deemed reliable, but is not guaranteed accurate by the MLS or NTREIS.
Read moreLast checked Apr 9, 4:00 pm
- Jome
- New homes search
- Texas
- Dallas-Fort Worth Area
- Tarrant County
- Fort Worth
- 6429 Hidden Flower Wy, Fort Worth, TX 76036



























