








Book your tour. Save an average of $18,473. We'll handle the rest.
We collect exclusive builder offers, book your tours, and support you from start to housewarming.
- Confirmed tours
- Get matched & compare top deals
- Expert help, no pressure
- No added fees
Estimated value based on Jome data, T&C apply






























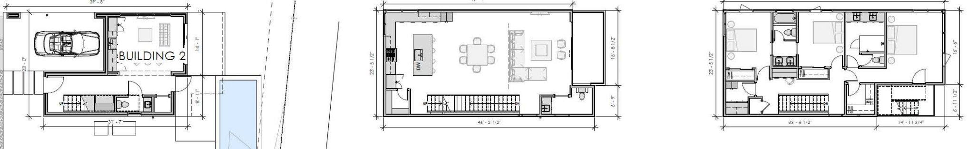
- 3 bd
- 3.5 ba
- 2,591 sqft
1403 Barton Hills Dr, Unit 2, Austin, TX 78704
Why tour with Jome?
- No pressure toursTour at your own pace with no sales pressure
- Expert guidanceGet insights from our home buying experts
- Exclusive accessSee homes and deals not available elsewhere
Jome is featured in
- Single-Family
- Under construction
- $820.15/sqft
- North facing
Home description
Experience refined modern living in this to-be-built luxury residence ideally located in the heart of Barton Hills. Thoughtfully designed with elevated finishes and clean architectural lines, this home is planned to feature wide-plank hardwood flooring throughout, designer tile in wet areas and a durable standing-seam metal roof for timeless appeal and longevity. The open-concept interior is envisioned with soaring ceilings, expansive windows that flood the home with natural light and seamless indoor-outdoor flow. A chef-inspired kitchen is expected to showcase custom cabinetry, premium stone countertops, high-end stainless steel appliances and an oversized island ideal for entertaining. Spa-like bathrooms are designed with floating vanities, luxury fixtures and walk-in showers. Energy-efficient windows, smart home wiring and modern security features provide comfort and peace of mind. The private lot offers a pool and outdoor living, all just minutes from Zilker Park, Barton Springs, downtown Austin and the best of 78704 living. A rare opportunity to personalize a high-end new construction in one of Austin’s most coveted neighborhoods. Also available for lease. Contact agent for details. Information provided by seller & to be independently verified by the buyer.
eXp Realty, LLC, MLS 5004581
Information last verified by Jome: Today at 12:40 AM (April 2, 2026)
Home highlights
Austin’s beloved central park with trails, Barton Springs, festivals, and skyline views near thriving neighborhoods.
Book your tour. Save an average of $18,473. We'll handle the rest.
We collect exclusive builder offers, book your tours, and support you from start to housewarming.
- Confirmed tours
- Get matched & compare top deals
- Expert help, no pressure
- No added fees
Estimated value based on Jome data, T&C apply
Home details
- Property status:
- Under construction
- Neighborhood:
- Barton Hills
- Lot size (acres):
- 0.29
- Size:
- 2,591 sqft
- Beds:
- 3
- Baths:
- 3
- Half baths:
- 1
- Fence:
- Privacy Fence
- Facing direction:
- North
Construction details
- Year Built:
- 2026
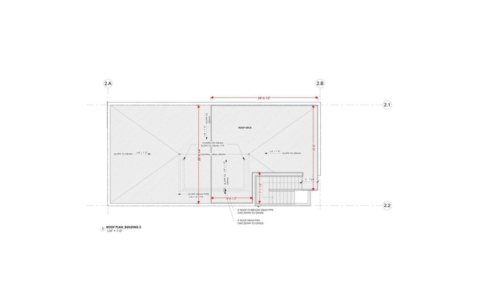
- Roof:
- Metal Roofing, Membrane Roofing
Home features & finishes
- Cooling:
- Central Air
- Flooring:
- Wood FlooringConcrete FlooringTile Flooring
- Foundation Details:
- Slab
- Garage/Parking:
- Car Carport
- Kitchen:
- Kitchen Range
- Property amenities:
- BalconyDeckPatioYard

Get a consultation with our New Homes Expert
- See how your home builds wealth
- Plan your home-buying roadmap
- Discover hidden gems
Utility information
- Heating:
- Central Heating
- Utilities:
- Electricity Available, Natural Gas Available, Sewer Available, Water Available
Community amenities
- City View
- Sidewalks Available
- Greenbelt View
Neighborhood
Home address
- Neighborhood:
- Barton Hills
- City:
- Austin
Schools in Austin Independent School District
- Grades M-MChartermainspring schools1.2 mi1100 w live oak stna
GreatSchools’ Summary Rating calculation is based on 4 of the school’s themed ratings, including test scores, student/academic progress, college readiness, and equity. This information should only be used as a reference. Jome is not affiliated with GreatSchools and does not endorse or guarantee this information. Please reach out to schools directly to verify all information and enrollment eligibility. Data provided by GreatSchools.org © 2025
Places of interest
Getting around
5 nearby routes: 5 bus, 0 rail, 0 otherAir quality
Noise level
A Soundscore™ rating is a number between 50 (very loud) and 100 (very quiet) that tells you how loud a location is due to environmental noise.
Natural hazards risk
Provided by FEMA

Considering this home?
Our expert will guide your tour, in-person or virtual
Need more information?
Text or call (888) 545-5198
Financials
Estimated monthly payment
Let us help you find your dream home
How many bedrooms are you looking for?
Similar homes nearby
Recently added communities in this area
Nearby communities in Austin
New homes in nearby cities
More New Homes in Austin, TX
eXp Realty, LLC, MLS 5004581
Based on information from the Austin Board of REALTORS® (alternatively, from ACTRIS) for the period through 08/13/2024. Neither the Board nor ACTRIS guarantees or is in any way responsible for its accuracy. All data is provided “AS IS” and with all faults. Data maintained by the Board or ACTRIS may not reflect all real estate activity in the market. Information being provided is for consumers’ personal, non-commercial use and may not be used for any purpose other than to identify prospective properties consumers may be interested in purchasing. The Digital Millennium Copyright Act of 1998, 17 U.S.C. § 512 (the “DMCA”) provides recourse for copyright owners who believe that material appearing on the Internet infringes their rights under U.S. copyright law. If you believe in good faith that any content or material made available in connection with our website or services infringes your copyright, you (or your agent) may send us a notice requesting that the content or material be removed, or access to it blocked. Notices must be sent in writing by email to DMCAnotice@MLSGrid.com. The DMCA requires that your notice of alleged copyright infringement include the following information: (1) description of the copyrighted work that is the subject of claimed infringement; (2) description of the alleged infringing content and information sufficient to permit us to locate the content; (3) contact information for you, including your address, telephone number and email address; (4) a statement by you that you have a good faith belief that the content in the manner complained of is not authorized by the copyright owner, or its agent, or by the operation of any law; (5) a statement by you, signed under penalty of perjury, that the information in the notification is accurate and that you have the authority to enforce the copyrights that are claimed to be infringed; and (6) a physical or electronic signature of the copyright owner or a person authorized to act on the copyright owner’s behalf. Failure to include all of the above information may result in the delay of the processing of your complaint.
Read moreLast checked Apr 1, 6:40 pm
- Jome
- New homes search
- Texas
- Greater Austin Area
- Travis County
- Austin
- 1403 Barton Hills Dr, Unit 2, Austin, TX 78704


























