













Book your tour. Save an average of $18,473. We'll handle the rest.
We collect exclusive builder offers, book your tours, and support you from start to housewarming.
- Confirmed tours
- Get matched & compare top deals
- Expert help, no pressure
- No added fees
Estimated value based on Jome data, T&C apply










- 5 bd
- 4 ba
- 3,226 sqft
179 Shawnee Trl, Dripping Springs, TX 78620
Why tour with Jome?
- No pressure toursTour at your own pace with no sales pressure
- Expert guidanceGet insights from our home buying experts
- Exclusive accessSee homes and deals not available elsewhere
Jome is featured in
- Single-Family
- Under construction
- $371.98/sqft
- North facing
Home description
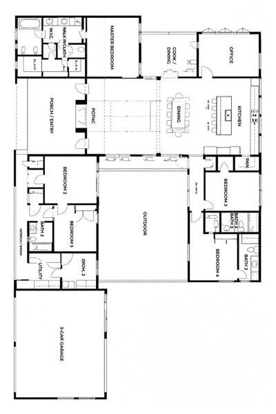
Discover the rare opportunity to build an Eichler-inspired MidCentury Modern courtyard home on a premium cul de sac lot backing to a private greenbelt. This oversized homesite offers the ultimate in privacy, views, and architectural potential in one of the area’s most desirable locations. With a low tax rate and close proximity to shopping, dining, and top-rated schools, it is perfectly suited for buyers relocating from California who are seeking design, lifestyle, and long-term value.
The featured floor plan showcases signature MidCentury Modern elements including a central open-air courtyard, walls of glass, clerestory windows, post and beam construction, and seamless indoor-outdoor living. Every space is designed to bring natural light and the surrounding landscape into the heart of the home.
Plans may be modified to suit your lifestyle, or you can choose to design and build any custom home with our fully turnkey program. This is not a production build; this is a true architectural experience tailored to the way you live.
Live iconic. Build timeless. Live Midcentury Custom Homes.
Live Midcentury, MLS 2846549
Information last verified by Jome: Today at 12:13 PM (March 18, 2026)
Book your tour. Save an average of $18,473. We'll handle the rest.
We collect exclusive builder offers, book your tours, and support you from start to housewarming.
- Confirmed tours
- Get matched & compare top deals
- Expert help, no pressure
- No added fees
Estimated value based on Jome data, T&C apply
Home details
- Property status:
- Under construction
- Lot size (acres):
- 1.07
- Size:
- 3,226 sqft
- Stories:
- 1
- Beds:
- 5
- Baths:
- 4
- Garage spaces:
- 3
- Facing direction:
- North
Construction details
- Year Built:
- 2026
Home features & finishes
- Cooling:
- Central Air
- Flooring:
- Vinyl FlooringTile Flooring
- Foundation Details:
- Slab
- Garage/Parking:
- Garage
- Interior Features:
- Ceiling-High
- Kitchen:
- DishwasherMicrowave OvenOvenDisposalGas CooktopBuilt-In OvenKitchen IslandCooktopGas Oven
- Property amenities:
- BackyardSoaking Tub
- Rooms:
- Primary Bedroom On MainLiving RoomOpen Concept FloorplanPrimary Bedroom Downstairs

Get a consultation with our New Homes Expert
- See how your home builds wealth
- Plan your home-buying roadmap
- Discover hidden gems
Utility information
- Heating:
- Thermostat, Water Heater, Central Heating, Tankless water heater
- Utilities:
- Electricity Available, Water Available
Community amenities
- Woods View
Neighborhood
Home address
- City:
- Dripping Springs
- County:
- Hays
- Zip Code:
- 78620
Schools in Dripping Springs Independent School District
GreatSchools’ Summary Rating calculation is based on 4 of the school’s themed ratings, including test scores, student/academic progress, college readiness, and equity. This information should only be used as a reference. Jome is not affiliated with GreatSchools and does not endorse or guarantee this information. Please reach out to schools directly to verify all information and enrollment eligibility. Data provided by GreatSchools.org © 2025
Places of interest
Getting around
Air quality
Natural hazards risk
Provided by FEMA

Considering this home?
Our expert will guide your tour, in-person or virtual
Need more information?
Text or call (888) 545-5198
Financials
Estimated monthly payment
Let us help you find your dream home
How many bedrooms are you looking for?
Similar homes nearby
Recently added communities in this area
Nearby communities in Dripping Springs
New homes in nearby cities
More New Homes in Dripping Springs, TX
Live Midcentury, MLS 2846549
Based on information from the Austin Board of REALTORS® (alternatively, from ACTRIS) for the period through 08/13/2024. Neither the Board nor ACTRIS guarantees or is in any way responsible for its accuracy. All data is provided “AS IS” and with all faults. Data maintained by the Board or ACTRIS may not reflect all real estate activity in the market. Information being provided is for consumers’ personal, non-commercial use and may not be used for any purpose other than to identify prospective properties consumers may be interested in purchasing. The Digital Millennium Copyright Act of 1998, 17 U.S.C. § 512 (the “DMCA”) provides recourse for copyright owners who believe that material appearing on the Internet infringes their rights under U.S. copyright law. If you believe in good faith that any content or material made available in connection with our website or services infringes your copyright, you (or your agent) may send us a notice requesting that the content or material be removed, or access to it blocked. Notices must be sent in writing by email to DMCAnotice@MLSGrid.com. The DMCA requires that your notice of alleged copyright infringement include the following information: (1) description of the copyrighted work that is the subject of claimed infringement; (2) description of the alleged infringing content and information sufficient to permit us to locate the content; (3) contact information for you, including your address, telephone number and email address; (4) a statement by you that you have a good faith belief that the content in the manner complained of is not authorized by the copyright owner, or its agent, or by the operation of any law; (5) a statement by you, signed under penalty of perjury, that the information in the notification is accurate and that you have the authority to enforce the copyrights that are claimed to be infringed; and (6) a physical or electronic signature of the copyright owner or a person authorized to act on the copyright owner’s behalf. Failure to include all of the above information may result in the delay of the processing of your complaint.
Read moreLast checked Mar 18, 6:40 pm
- Jome
- New homes search
- Texas
- Greater Austin Area
- Hays County
- Dripping Springs
- 179 Shawnee Trl, Dripping Springs, TX 78620

























