








Book your tour. Save an average of $18,473. We'll handle the rest.
We collect exclusive builder offers, book your tours, and support you from start to housewarming.
- Confirmed tours
- Get matched & compare top deals
- Expert help, no pressure
- No added fees
Estimated value based on Jome data, T&C apply






































- 4 bd
- 4 ba
- 3,629 sqft
1709 Paradise Pkwy, Canyon Lake, TX 78133
Why tour with Jome?
- No pressure toursTour at your own pace with no sales pressure
- Expert guidanceGet insights from our home buying experts
- Exclusive accessSee homes and deals not available elsewhere
Jome is featured in
- Single-Family
- Quick move-in
- $439.52/sqft
- $900/annual HOA
Home description
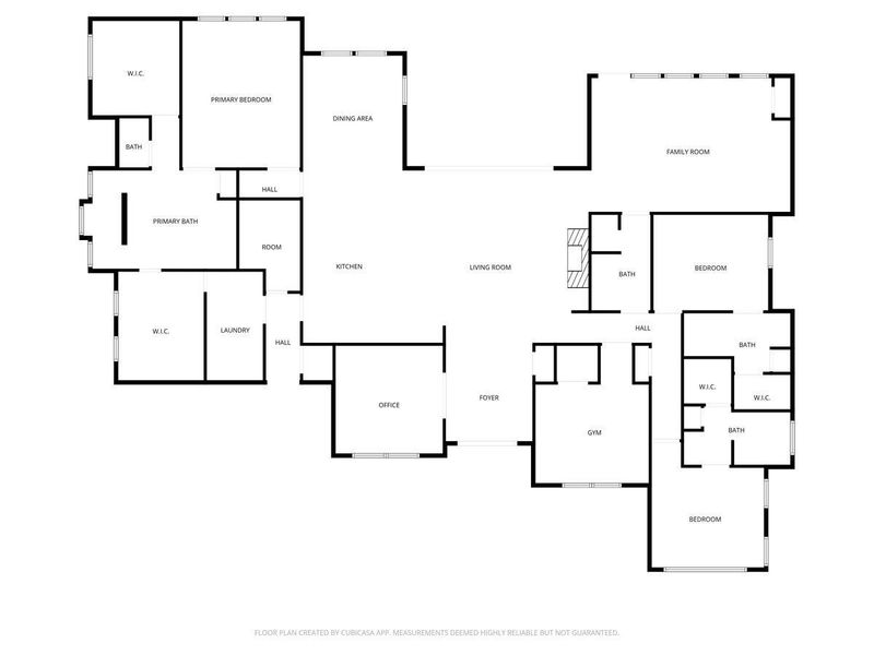
Luxury Hill Country home with Guadalupe River access in the prestigious gated community of Paradise on the Guadalupe. Built in 2024 and set on 1.54 acres, this exceptional single-story estate offers 4 bedrooms, 4 baths, a 3 car garage, soaring ceilings, and a seamless open-concept layout designed for upscale living and entertaining. The chef's island kitchen features custom cabinetry, quartz countertops, gas cooking, butler's pantry, and premium finishes, flowing into indoor and outdoor living spaces with statement fireplaces, private study, and game room. The spacious primary suite delivers a spa-style bath with soaking tub, dual vanities, and oversized walk-in closets. Outdoor living feels like a private resort with a heated saltwater pool and spa, outdoor kitchen, mature trees, and beautifully landscaped grounds. Relax year-round on the covered patio with automatic screens perfect for entertaining in the Texas Hill Country. Additional highlights include metal roof, four-sides masonry, energy-efficient features, water softener, security system, and high-speed internet. Community amenities feature private Guadalupe River access with trails, pavilion, and an impressive 80-acre private park. Enjoy sunsets at the private River Lounge over looking the Texas Hill Country. Located within the highly regarded Comal ISD. Luxury, privacy, and the Hill Country lifestyle-beautifully combined.
Kuper Sotheby's Int'l Realty N, MLS 9970665
Information last verified by Jome: Today at 6:15 AM (April 18, 2026)
Home highlights
Historic base with top-rated schools, strong community, and easy access to San Antonio's amenities.
Book your tour. Save an average of $18,473. We'll handle the rest.
We collect exclusive builder offers, book your tours, and support you from start to housewarming.
- Confirmed tours
- Get matched & compare top deals
- Expert help, no pressure
- No added fees
Estimated value based on Jome data, T&C apply
Home details
- Property status:
- Move-in ready
- Lot size (acres):
- 1.54
- Size:
- 3,629 sqft
- Stories:
- 1
- Beds:
- 4
- Baths:
- 4
- Garage spaces:
- 3
- Fence:
- Partial Fence, Wrought Iron Fence
- Facing direction:
- Southeast
Construction details
- Year Built:
- 2024
- Roof:
- Metal Roofing, Roof Gutter
Home features & finishes
- Appliances:
- Exhaust FanWater SoftenerSprinkler System
- Cooling:
- Ceiling Fan(s)Central Air
- Flooring:
- Ceramic FlooringWood FlooringStone FlooringCarpet FlooringTile Flooring
- Foundation Details:
- Slab
- Garage/Parking:
- Door OpenerGarageSide Entry Garage/ParkingAttached Garage
- Interior Features:
- Walk-In ClosetFoyerPantryDouble Vanity
- Kitchen:
- Wine RefrigeratorDishwasherMicrowave OvenRefrigeratorDisposalStainless Steel AppliancesGas CooktopGas OvenKitchen Range
- Laundry facilities:
- DryerWasher
- Lighting:
- LightingChandelier
- Property amenities:
- Trees on propertyHot TubBarSpaGas Log FireplaceOutdoor FireplaceBackyardBBQ AreaPatioFireplaceYard
- Rooms:
- Primary Bedroom On MainKitchenGame RoomOffice/StudyLiving RoomOpen Concept FloorplanPrimary Bedroom Downstairs

Get a consultation with our New Homes Expert
- See how your home builds wealth
- Plan your home-buying roadmap
- Discover hidden gems
Utility information
- Heating:
- Electric Heating, Water Heater, Central Heating
- Sewer:
- Aerobic Septic
- Utilities:
- Electricity Available, Underground Utilities, Propane, City Water System, Cable Available, Water Available, Aerobic Septic System, High Speed Internet Access
- Water source:
- Public
Community amenities
- Grill Area
- Gated Community
- Park Nearby
- BBQ Area
- Picnic Area
Neighborhood
Home address
- City:
- Canyon Lake
- County:
- Comal
- Zip Code:
- 78133
Schools in Comal Independent School District
GreatSchools’ Summary Rating calculation is based on 4 of the school’s themed ratings, including test scores, student/academic progress, college readiness, and equity. This information should only be used as a reference. Jome is not affiliated with GreatSchools and does not endorse or guarantee this information. Please reach out to schools directly to verify all information and enrollment eligibility. Data provided by GreatSchools.org © 2025
Places of interest
Getting around
Air quality
Natural hazards risk
Provided by FEMA

Considering this home?
Our expert will guide your tour, in-person or virtual
Need more information?
Text or call (888) 545-5198
Financials
Estimated monthly payment
Let us help you find your dream home
How many bedrooms are you looking for?
Similar homes nearby
Recently added communities in this area
Nearby communities in Canyon Lake
New homes in nearby cities
More New Homes in Canyon Lake, TX
Kuper Sotheby's Int'l Realty N, MLS 9970665
Based on information from the Austin Board of REALTORS® (alternatively, from ACTRIS) for the period through 08/13/2024. Neither the Board nor ACTRIS guarantees or is in any way responsible for its accuracy. All data is provided “AS IS” and with all faults. Data maintained by the Board or ACTRIS may not reflect all real estate activity in the market. Information being provided is for consumers’ personal, non-commercial use and may not be used for any purpose other than to identify prospective properties consumers may be interested in purchasing. The Digital Millennium Copyright Act of 1998, 17 U.S.C. § 512 (the “DMCA”) provides recourse for copyright owners who believe that material appearing on the Internet infringes their rights under U.S. copyright law. If you believe in good faith that any content or material made available in connection with our website or services infringes your copyright, you (or your agent) may send us a notice requesting that the content or material be removed, or access to it blocked. Notices must be sent in writing by email to DMCAnotice@MLSGrid.com. The DMCA requires that your notice of alleged copyright infringement include the following information: (1) description of the copyrighted work that is the subject of claimed infringement; (2) description of the alleged infringing content and information sufficient to permit us to locate the content; (3) contact information for you, including your address, telephone number and email address; (4) a statement by you that you have a good faith belief that the content in the manner complained of is not authorized by the copyright owner, or its agent, or by the operation of any law; (5) a statement by you, signed under penalty of perjury, that the information in the notification is accurate and that you have the authority to enforce the copyrights that are claimed to be infringed; and (6) a physical or electronic signature of the copyright owner or a person authorized to act on the copyright owner’s behalf. Failure to include all of the above information may result in the delay of the processing of your complaint.
Read moreLast checked Apr 18, 12:40 pm
- Jome
- New homes search
- Texas
- Greater San Antonio
- Comal County
- Canyon Lake
- 1709 Paradise Pkwy, Canyon Lake, TX 78133


























