








Book your tour. Save an average of $18,473. We'll handle the rest.
We collect exclusive builder offers, book your tours, and support you from start to housewarming.
- Confirmed tours
- Get matched & compare top deals
- Expert help, no pressure
- No added fees
Estimated value based on Jome data, T&C apply























- 6 bd
- 4 ba
- 2,738 sqft
1122 Stone Valley Rd, Temple, TX 76502
Why tour with Jome?
- No pressure toursTour at your own pace with no sales pressure
- Expert guidanceGet insights from our home buying experts
- Exclusive accessSee homes and deals not available elsewhere
Jome is featured in
- Single-Family
- Quick move-in
- $154/sqft
- 94 days on Jome
Home description
About this home
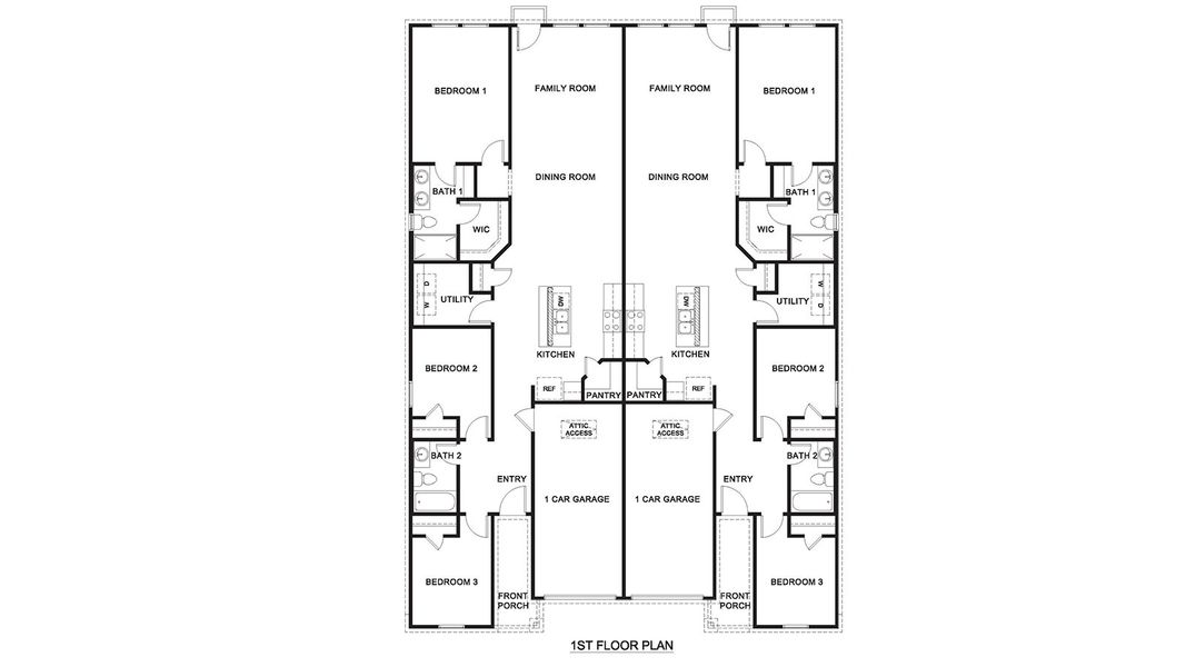
The 1402 Multi-Family Duplex floorplan at The Terrace Duplexes in Temple, Texas is a 3-bedroom, 2-bathroom single-story home covering approximately 1,369 sq. ft. The single-car garage ensures plenty of space for your vehicle and storage.
In this floorplan, you’ll find a home that makes the most of its space. The kitchen features beautiful flat panel birch cabinetry with granite countertops and its corner pantry, as it flows into the dining area and family room. The bedrooms are carpeted, and the primary bedroom has an attached bathroom with a walk-in closet.
The secondary bedrooms are cozy and carpeted, with plenty of closet space. The laundry room is perfectly place in the center of the house between the primary and secondary bedrooms for easy access. Enjoy nature from the backyard covered patio that is accessible from the family room. Here you can start or end your day relaxing with nature.
Like with all our homes, you’ll never be too far from home with our smart home technology integrated into your home. Find security and control through the Qolsys panel, your phone, or voice and when you want to add additional smart home tech, easily integrate with Z-wave or Bluetooth technology.
Come visit the Multi-Family Duplex floorplan today to find your new home!
May also be listed on the D.R. Horton website
Information last verified by Jome: Yesterday at 3:02 AM (May 29, 2026)
Home highlights
Book your tour. Save an average of $18,473. We'll handle the rest.
We collect exclusive builder offers, book your tours, and support you from start to housewarming.
- Confirmed tours
- Get matched & compare top deals
- Expert help, no pressure
- No added fees
Estimated value based on Jome data, T&C apply
Home details
- Property status:
- Move-in ready
- Size:
- 2,738 sqft
- Stories:
- 1
- Beds:
- 6
- Baths:
- 4
- Garage spaces:
- 2
Construction details
- Builder Name:
- D.R. Horton
Home features & finishes
- Appliances:
- Sprinkler System
- Garage/Parking:
- GarageAttached Garage
- Interior Features:
- Walk-In ClosetPantry
- Kitchen:
- Stainless Steel AppliancesGranite countertopKitchen Island
- Laundry facilities:
- Utility/Laundry Room
- Property amenities:
- SodCabinetsSmart Home SystemPorch
- Rooms:
- Primary Bedroom On MainKitchenDining RoomFamily RoomOpen Concept FloorplanPrimary Bedroom Downstairs

Get a consultation with our New Homes Expert
- See how your home builds wealth
- Plan your home-buying roadmap
- Discover hidden gems

Community details
The Terrace Duplexes
by D.R. Horton, Temple, TX
- 6 homes
- 2 plans
- 2,738 - 2,958 sqft
View The Terrace Duplexes details
More homes in The Terrace Duplexes
- Home at address 1130 Stone Valley Rd, Temple, TX 76502

1402
$422,585
- 6 bd
- 4 ba
- 2,738 sqft
1130 Stone Valley Rd, Temple, TX 76502
- Home at address 1111 Stone Valley Rd, Temple, TX 76502

1402
$462,875
- 6 bd
- 4 ba
- 2,738 sqft
1111 Stone Valley Rd, Temple, TX 76502
- Home at address 1102 Stone Valley Rd, Temple, TX 76502

1530
$478,875
- 8 bd
- 4 ba
- 2,958 sqft
1102 Stone Valley Rd, Temple, TX 76502
- Home at address 1108 Ribeye Rd, Temple, TX 76502

1530
$480,860
- 8 bd
- 4 ba
- 2,958 sqft
1108 Ribeye Rd, Temple, TX 76502
- Home at address 1110 Stone Valley Rd, Temple, TX 76502

1530
$481,890
- 8 bd
- 4 ba
- 2,958 sqft
1110 Stone Valley Rd, Temple, TX 76502
Floor plans in The Terrace Duplexes
About the builder - D.R. Horton

- 1,140communities on Jome
- 11,369homes on Jome
Neighborhood
Home address
Schools in Belton Independent School District
- Grades KG-05Publicjames l burrell elementary1.1 mi8104 glade drna
GreatSchools’ Summary Rating calculation is based on 4 of the school’s themed ratings, including test scores, student/academic progress, college readiness, and equity. This information should only be used as a reference. Jome is not affiliated with GreatSchools and does not endorse or guarantee this information. Please reach out to schools directly to verify all information and enrollment eligibility. Data provided by GreatSchools.org © 2025
Places of interest
Getting around
Air quality
Noise level
A Soundscore™ rating is a number between 50 (very loud) and 100 (very quiet) that tells you how loud a location is due to environmental noise.

Considering this home?
Our expert will guide your tour, in-person or virtual
Need more information?
Text or call (888) 545-5198
Financials
Estimated monthly payment
Let us help you find your dream home
How many bedrooms are you looking for?
Similar homes nearby
Recently added communities in this area
Nearby communities in Temple
New homes in nearby cities
More New Homes in Temple, TX
- Jome
- New homes search
- Texas
- Bell County
- Temple
- The Terrace Duplexes
- 1122 Stone Valley Rd, Temple, TX 76502


























