













Book your tour. Save an average of $18,473. We'll handle the rest.
We collect exclusive builder offers, book your tours, and support you from start to housewarming.
- Confirmed tours
- Get matched & compare top deals
- Expert help, no pressure
- No added fees
Estimated value based on Jome data, T&C apply








































- 4 bd
- 3.5 ba
- 2,795 sqft
27016 W Rustlers Bnd, Montgomery, TX 77316
Why tour with Jome?
- No pressure toursTour at your own pace with no sales pressure
- Expert guidanceGet insights from our home buying experts
- Exclusive accessSee homes and deals not available elsewhere
Jome is featured in
- Single-Family
- Quick move-in
- $160.64/sqft
- $1,300/annual HOA
Builder deals available
FHA 30 Year Fixed
$36,570 est. value- Rate buydown from 3.75% (1–5 year) with 6.906% APR, 3.5% down payment, and 680 credit score
- $6,000 closing costs help
- $4,047 free upgrades
- Move-In Ready Appliance Package Includes Refrigerator and Washer/Dryer
Deals may change and are not guaranteed. Some deals apply to specific homes or plans. Not a financing offer. Eligibility varies by lender. Please verify details.
Home description
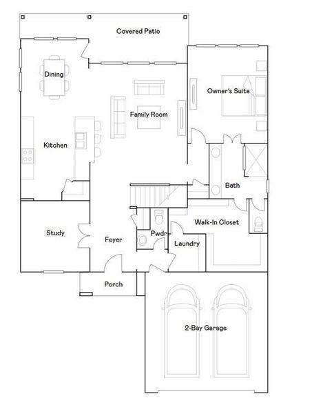
NEW! Lennar Fairway Collection "Wakefield II" Plan with Brick Elevation "F" in Kresston! The first level of this two-story home is host to a generous open floorplan shared between the family room, kitchen and dining area, with access to a covered patio. A versatile study is situated at the front of the home off the foyer. The owner’s suite can be found at the back of the home, which is made up of a restful bedroom, en-suite bathroom and generous walk-in closet. Three secondary bedrooms surround a game room on the home’s second floor.
Lennar Homes Village Builders, LLC, MLS 76591782
May also be listed on the Lennar website
Information last verified by Jome: Today at 8:51 PM (February 26, 2026)
Book your tour. Save an average of $18,473. We'll handle the rest.
We collect exclusive builder offers, book your tours, and support you from start to housewarming.
- Confirmed tours
- Get matched & compare top deals
- Expert help, no pressure
- No added fees
Estimated value based on Jome data, T&C apply
Home details
- Property status:
- Move-in ready
- Size:
- 2,795 sqft
- Stories:
- 2
- Beds:
- 4
- Baths:
- 3
- Half baths:
- 1
- Garage spaces:
- 2
Construction details
- Builder Name:
- Lennar
- Year Built:
- 2025
- Roof:
- Composition Roofing
Home features & finishes
- Construction Materials:
- CementBrickStone
- Foundation Details:
- Slab
- Garage/Parking:
- GarageAttached Garage
- Interior Features:
- Walk-In ClosetFoyer
- Laundry facilities:
- Utility/Laundry Room
- Property amenities:
- PatioPorch
- Rooms:
- Primary Bedroom On MainKitchenTwo-Story Great RoomPowder RoomGame RoomOffice/StudyDining RoomFamily RoomOpen Concept FloorplanPrimary Bedroom Downstairs

Get a consultation with our New Homes Expert
- See how your home builds wealth
- Plan your home-buying roadmap
- Discover hidden gems
Utility information
- Heating:
- Gas Heating

Community details
Kresston at Kresston
by Lennar, Montgomery, TX
- 10 homes
- 7 plans
- 2,386 - 3,308 sqft
View Kresston details
More homes in Kresston
- Home at address 27026 W Rustlers Bnd, Montgomery, TX 77316

Cantaron II
$394,990
- 4 bd
- 3.5 ba
- 2,548 sqft
27026 W Rustlers Bnd, Montgomery, TX 77316
- Home at address 26783 Frontier Trace Dr, Montgomery, TX 77316

Somerset
$399,990
- 4 bd
- 3.5 ba
- 2,666 sqft
26783 Frontier Trace Dr, Montgomery, TX 77316
- Home at address 27019 W Rustlers Bnd, Montgomery, TX 77316

Melrose II
$400,000
- 4 bd
- 3 ba
- 2,731 sqft
27019 W Rustlers Bnd, Montgomery, TX 77316
- Home at address 26795 Frontier Trace Dr, Montgomery, TX 77316

Melrose II
$439,990
- 4 bd
- 3 ba
- 2,731 sqft
26795 Frontier Trace Dr, Montgomery, TX 77316
- Home at address 26794 Frontier Trace Dr, Montgomery, TX 77316

Wakefield II
$440,790
- 4 bd
- 3.5 ba
- 2,795 sqft
26794 Frontier Trace Dr, Montgomery, TX 77316
- Home at address 26762 Frontier Trace Dr, Montgomery, TX 77316

Home
$500,000
- 5 bd
- 4.5 ba
- 3,308 sqft
26762 Frontier Trace Dr, Montgomery, TX 77316
Floor plans in Kresston
About the builder - Lennar

- 1,754communities on Jome
- 6,540homes on Jome
Neighborhood
Home address
- City:
- Montgomery
- County:
- Montgomery
- Zip Code:
- 77316
Schools in Magnolia Independent School District
- Grades M-MPublicaudubon elementary5.9 mi40205 audubon pkwyna
GreatSchools’ Summary Rating calculation is based on 4 of the school’s themed ratings, including test scores, student/academic progress, college readiness, and equity. This information should only be used as a reference. Jome is not affiliated with GreatSchools and does not endorse or guarantee this information. Please reach out to schools directly to verify all information and enrollment eligibility. Data provided by GreatSchools.org © 2025
Places of interest
Getting around
Air quality
Noise level
A Soundscore™ rating is a number between 50 (very loud) and 100 (very quiet) that tells you how loud a location is due to environmental noise.

Considering this home?
Our expert will guide your tour, in-person or virtual
Need more information?
Text or call (888) 488-9243
Financials
Estimated monthly payment
Let us help you find your dream home
How many bedrooms are you looking for?
Similar homes nearby
Recently added communities in this area
Nearby communities in Montgomery
New homes in nearby cities
More New Homes in Montgomery, TX
Lennar Homes Village Builders, LLC, MLS 76591782
Copyright © 2025, Houston Realtors Information Service, Inc. The information provided is exclusively for consumers’ personal, non-commercial use, and may not be used for any purpose other than to identify prospective properties consumers may be interested in purchasing. Information is deemed reliable but not guaranteed. All information provided should be independently verified.
Read moreLast checked Feb 26, 8:50 pm
- Jome
- New homes search
- Texas
- Greater Houston Area
- Montgomery County
- Montgomery
- Kresston
- 27016 W Rustlers Bnd, Montgomery, TX 77316




























