








Book your tour. Save an average of $18,473. We'll handle the rest.
We collect exclusive builder offers, book your tours, and support you from start to housewarming.
- Confirmed tours
- Get matched & compare top deals
- Expert help, no pressure
- No added fees
Estimated value based on Jome data, T&C apply


























- 3 bd
- 3.5 ba
- 2,178 sqft
341 College Ave, Fort Worth, TX 76104
Why tour with Jome?
- No pressure toursTour at your own pace with no sales pressure
- Expert guidanceGet insights from our home buying experts
- Exclusive accessSee homes and deals not available elsewhere
Jome is featured in
- Townhouse
- Quick move-in
- $275.02/sqft
- $220/monthly HOA
Home description
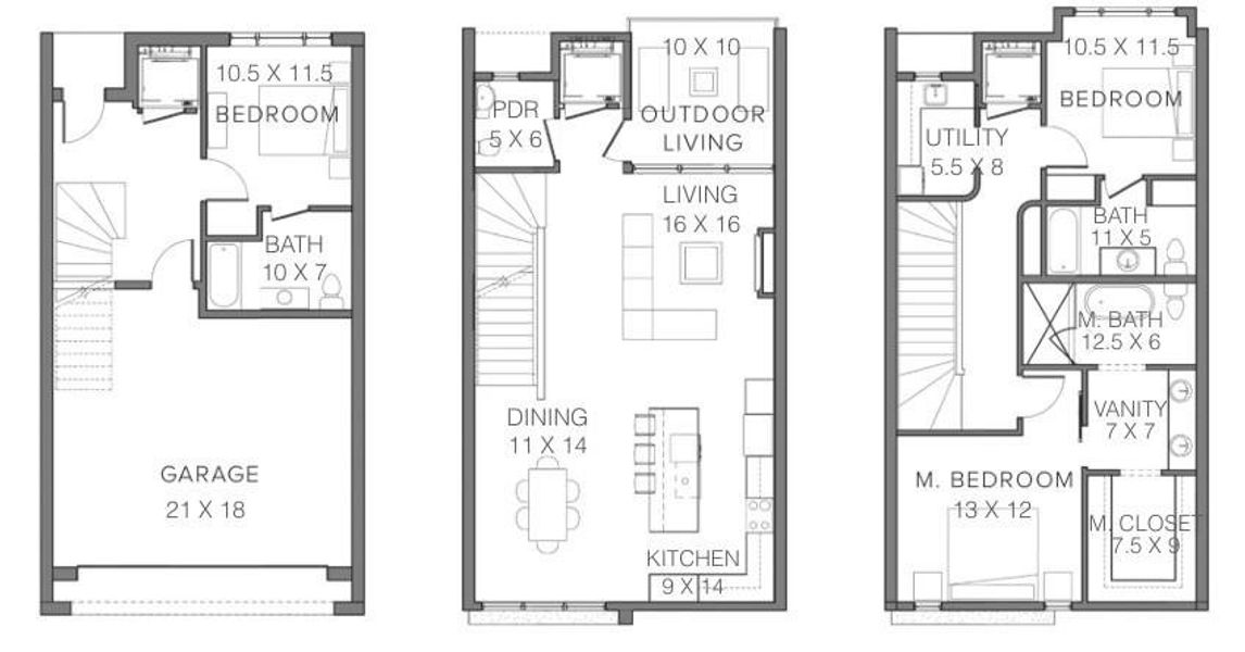
Introducing a limited collection of contemporary townhomes in the heart of Fort Worth’s Near Southside — an opportunity to be part of something truly special from the very beginning. Thoughtfully designed for a sophisticated urban lifestyle, this boutique community blends clean architectural lines with modern functionality and elevated design. Only two residences are being released at this time, offering early buyers the rare chance to secure a home in a highly anticipated development surrounded by Fort Worth’s most exciting growth. Each home features an open-concept floor plan filled with natural light from oversized windows, soaring 10’ ceilings in the main living area, and a seamless indoor-outdoor connection with a second-story seating area overlooking the private courtyard. Every detail reflects intentional living — from quartz countertops and stainless appliances to LED lighting throughout and flexible closets at each level designed for potential elevator conversion. The primary suite offers a refined retreat with a soaking tub, glass-enclosed shower, double vanities, and a spacious walk-in closet, while generous storage enhances everyday comfort. Residents will enjoy a shared patio and grill area, creating a welcoming space for gathering and connection. Energy-efficient features include a high-efficiency SEER 15 High Efficiency HVAC system, gas cooking, fireplace, dryer and tankless water heater, Low-E windows, and Energy Star roof tiling — delivering both luxury and long-term efficiency. Perfectly positioned between Downtown Fort Worth and the vibrant energy of West Magnolia Avenue, this location offers effortless access to TRE and TEXRail along with the acclaimed dining, entertainment, and cultural destinations of South Main and Magnolia. Experience the advantage of early ownership in one of Near Southside’s most exciting new communities. Schedule your private VIP showing today. A 2-BDRM is also available - #337 corner townhome.
Leah Dunn Real Estate Group, MLS 21175060
Information last verified by Jome: Today at 1:42 AM (April 5, 2026)
Book your tour. Save an average of $18,473. We'll handle the rest.
We collect exclusive builder offers, book your tours, and support you from start to housewarming.
- Confirmed tours
- Get matched & compare top deals
- Expert help, no pressure
- No added fees
Estimated value based on Jome data, T&C apply
Home details
- Property status:
- Move-in ready
- Lot size (acres):
- 0.02
- Size:
- 2,178 sqft
- Stories:
- 3+
- Beds:
- 3
- Baths:
- 3
- Half baths:
- 1
- Garage spaces:
- 2
- Fence:
- Wood Fence
Construction details
- Year Built:
- 2026
- Roof:
- Slate Roofing, Tile Roofing
Home features & finishes
- Appliances:
- Exhaust Fan Vented
- Construction Materials:
- Brick
- Cooling:
- Central Air
- Flooring:
- Concrete FlooringVinyl FlooringCarpet FlooringTile Flooring
- Foundation Details:
- Slab
- Garage/Parking:
- Door OpenerGarageRear Entry Garage/ParkingAttached Garage
- Home amenities:
- Green Construction
- Interior Features:
- Walk-In ClosetStaircases
- Kitchen:
- DishwasherMicrowave OvenDisposalGas CooktopKitchen IslandGas OvenKitchen Range
- Laundry facilities:
- DryerWasherStackable Washer/DryerUtility/Laundry Room
- Lighting:
- Decorative/Designer Lighting
- Property amenities:
- Trees on propertyCourtyardLandscapingPatioFireplace
- Rooms:
- KitchenOpen Concept Floorplan
- Security system:
- Smoke Detector

Get a consultation with our New Homes Expert
- See how your home builds wealth
- Plan your home-buying roadmap
- Discover hidden gems
Utility information
- Heating:
- Water Heater, Central Heating, Gas Heating, Tankless water heater
- Utilities:
- HVAC, City Water System, Cable Available, Individual Water Meter, Individual Gas Meter, High Speed Internet Access, Cable TV
Neighborhood
Home address
- City:
- Fort Worth
- County:
- Tarrant
- Zip Code:
- 76104
Schools in Fort Worth Independent School District
GreatSchools’ Summary Rating calculation is based on 4 of the school’s themed ratings, including test scores, student/academic progress, college readiness, and equity. This information should only be used as a reference. Jome is not affiliated with GreatSchools and does not endorse or guarantee this information. Please reach out to schools directly to verify all information and enrollment eligibility. Data provided by GreatSchools.org © 2025
Places of interest
Getting around
12 nearby routes: 10 bus, 2 rail, 0 otherAir quality
Natural hazards risk
Provided by FEMA

Considering this home?
Our expert will guide your tour, in-person or virtual
Need more information?
Text or call (888) 545-5198
Financials
Estimated monthly payment
Let us help you find your dream home
How many bedrooms are you looking for?
Similar homes nearby
Recently added communities in this area
Nearby communities in Fort Worth
New homes in nearby cities
More New Homes in Fort Worth, TX
Leah Dunn Real Estate Group, MLS 21175060
IDX information is provided exclusively for personal, non-commercial use, and may not be used for any purpose other than to identify prospective properties consumers may be interested in purchasing. You may not reproduce or redistribute this data, it is for viewing purposes only. This data is deemed reliable, but is not guaranteed accurate by the MLS or NTREIS.
Read moreLast checked Apr 5, 4:00 pm
- Jome
- New homes search
- Texas
- Dallas-Fort Worth Area
- Tarrant County
- Fort Worth
- 341 College Ave, Fort Worth, TX 76104


























