



Book your tour. Save an average of $18,473. We'll handle the rest.
We collect exclusive builder offers, book your tours, and support you from start to housewarming.
- Confirmed tours
- Get matched & compare top deals
- Expert help, no pressure
- No added fees
Estimated value based on Jome data, T&C apply
- 4 bd
- 4 ba
- 2,837 sqft
17204 Kiyah Rose Wy, Pflugerville, TX 78660
Why tour with Jome?
- No pressure toursTour at your own pace with no sales pressure
- Expert guidanceGet insights from our home buying experts
- Exclusive accessSee homes and deals not available elsewhere
Jome is featured in
- Single-Family
- Quick move-in
- $243.21/sqft
- $121/quarterly HOA
Home description
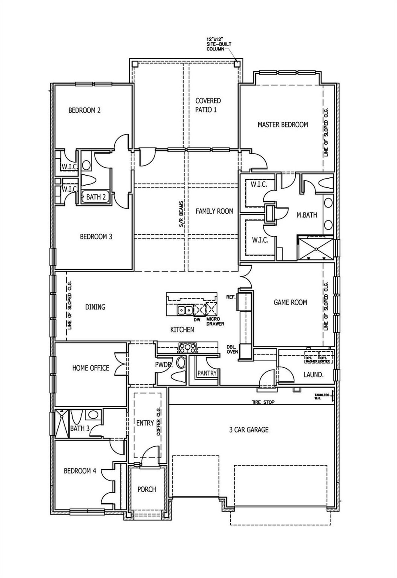
The Jester plan is a one-story home offering approximately 2,837 square feet of living space. It features four bedrooms, three full bathrooms, a powder bath, home office, game room, luxury primary bathroom, covered patio, and a three bay garage. The homesite is approximately 7,453 square feet and faces south. The spacious kitchen includes built-in stainless-steel appliances, quartz countertops, under-cabinet lighting, 42" upper cabinets, and more. Flooring consists of hard-surface materials throughout the main living areas, tile in the bathrooms, and carpet in the bedrooms. Quality construction features include 10-foot ceilings and 8-foot doors throughout, three sides masonry, ZIP System sheathing, a tankless water heater, and many additional upgrades.
RGS Realty LLC, MLS 4700307
May also be listed on the Scott Felder Homes website
Information last verified by Jome: Yesterday at 6:15 AM (April 12, 2026)
Home highlights
Mixed‑use retail and entertainment center north of Austin with shops, dining, live events and walkable energy.
Book your tour. Save an average of $18,473. We'll handle the rest.
We collect exclusive builder offers, book your tours, and support you from start to housewarming.
- Confirmed tours
- Get matched & compare top deals
- Expert help, no pressure
- No added fees
Estimated value based on Jome data, T&C apply
Home details
- Property status:
- Move-in ready
- Lot size (acres):
- 0.17
- Size:
- 2,837 sqft
- Stories:
- 1
- Beds:
- 4
- Baths:
- 4
- Half baths:
- 1
- Garage spaces:
- 3
- Fence:
- Privacy Fence
- Facing direction:
- North
Construction details
- Builder Name:
- Scott Felder Homes
- Completion Date:
- July, 2026
- Year Built:
- 2026
- Roof:
- Roof Gutter, Composition Roofing
Home features & finishes
- Appliances:
- Exhaust Fan
- Cooling:
- Ceiling Fan(s)Central Air
- Flooring:
- Vinyl FlooringCarpet FlooringTile Flooring
- Foundation Details:
- Slab
- Garage/Parking:
- Door OpenerGarageFront Entry Garage/ParkingAttached Garage
- Home amenities:
- ENERGY STAR Certified
- Interior Features:
- Ceiling-HighWalk-In ClosetPantryFrench Doors
- Kitchen:
- DishwasherMicrowave OvenOvenDisposalGas CooktopBuilt-In OvenKitchen IslandCooktopElectric Oven
- Laundry facilities:
- Utility/Laundry Room
- Lighting:
- Exterior LightingLightingChandelier
- Property amenities:
- BasementPatioPorch
- Rooms:
- Primary Bedroom On MainKitchenGame RoomOffice/StudyDining RoomFamily RoomOpen Concept FloorplanPrimary Bedroom Downstairs

Get a consultation with our New Homes Expert
- See how your home builds wealth
- Plan your home-buying roadmap
- Discover hidden gems
Utility information
- Heating:
- Forced Air Heating
- Sewer:
- Public Sewer
- Utilities:
- Electricity Available, Natural Gas Available, Cable Available, Water Available
- Water source:
- Public

Community details
Blackhawk at Blackhawk
by Scott Felder Homes, Pflugerville, TX
- 6 homes
- 14 plans
- 1,949 - 3,724 sqft
View Blackhawk details
Community amenities
- Common Grounds
- Playground
- Club House
- Community Pool
- Cluster Mailbox
More homes in Blackhawk
- Home at address 19600 Judys Vw, Pflugerville, TX 78660

Parmer
$631,990
- 5 bd
- 4 ba
- 3,134 sqft
19600 Judys Vw, Pflugerville, TX 78660
- Home at address 19609 Judys Vw, Pflugerville, TX 78660

Lamar
$688,990
- 4 bd
- 3.5 ba
- 2,832 sqft
19609 Judys Vw, Pflugerville, TX 78660
- Home at address 19612 Judys Vw, Pflugerville, TX 78660

Oltorf
$694,992
- 4 bd
- 3.5 ba
- 3,060 sqft
19612 Judys Vw, Pflugerville, TX 78660
- Home at address 17521 Graces Path, Pflugerville, TX 78660

Oltorf
$717,990
- 5 bd
- 4.5 ba
- 3,331 sqft
17521 Graces Path, Pflugerville, TX 78660
- Home at address 19600 Helens Catch Dr, Pflugerville, TX 78660

Medina
$782,990
- 5 bd
- 4.5 ba
- 3,713 sqft
19600 Helens Catch Dr, Pflugerville, TX 78660
Floor plans in Blackhawk
About the builder - Scott Felder Homes
Neighborhood
Home address
- City:
- Pflugerville
- County:
- Travis
- Zip Code:
- 78660
Schools in Pflugerville Independent School District
- Grades PK-05Publichidden lake elementary2.0 mi18218 hidden lake drna
GreatSchools’ Summary Rating calculation is based on 4 of the school’s themed ratings, including test scores, student/academic progress, college readiness, and equity. This information should only be used as a reference. Jome is not affiliated with GreatSchools and does not endorse or guarantee this information. Please reach out to schools directly to verify all information and enrollment eligibility. Data provided by GreatSchools.org © 2025
Places of interest
Getting around
Air quality
Noise level
A Soundscore™ rating is a number between 50 (very loud) and 100 (very quiet) that tells you how loud a location is due to environmental noise.

Considering this home?
Our expert will guide your tour, in-person or virtual
Need more information?
Text or call (888) 545-5198
Financials
Estimated monthly payment
Let us help you find your dream home
How many bedrooms are you looking for?
Similar homes nearby
Recently added communities in this area
Nearby communities in Pflugerville
New homes in nearby cities
More New Homes in Pflugerville, TX
RGS Realty LLC, MLS 4700307
Based on information from the Austin Board of REALTORS® (alternatively, from ACTRIS) for the period through 08/13/2024. Neither the Board nor ACTRIS guarantees or is in any way responsible for its accuracy. All data is provided “AS IS” and with all faults. Data maintained by the Board or ACTRIS may not reflect all real estate activity in the market. Information being provided is for consumers’ personal, non-commercial use and may not be used for any purpose other than to identify prospective properties consumers may be interested in purchasing. The Digital Millennium Copyright Act of 1998, 17 U.S.C. § 512 (the “DMCA”) provides recourse for copyright owners who believe that material appearing on the Internet infringes their rights under U.S. copyright law. If you believe in good faith that any content or material made available in connection with our website or services infringes your copyright, you (or your agent) may send us a notice requesting that the content or material be removed, or access to it blocked. Notices must be sent in writing by email to DMCAnotice@MLSGrid.com. The DMCA requires that your notice of alleged copyright infringement include the following information: (1) description of the copyrighted work that is the subject of claimed infringement; (2) description of the alleged infringing content and information sufficient to permit us to locate the content; (3) contact information for you, including your address, telephone number and email address; (4) a statement by you that you have a good faith belief that the content in the manner complained of is not authorized by the copyright owner, or its agent, or by the operation of any law; (5) a statement by you, signed under penalty of perjury, that the information in the notification is accurate and that you have the authority to enforce the copyrights that are claimed to be infringed; and (6) a physical or electronic signature of the copyright owner or a person authorized to act on the copyright owner’s behalf. Failure to include all of the above information may result in the delay of the processing of your complaint.
Read moreLast checked Apr 13, 12:40 am
- Jome
- New homes search
- Texas
- Greater Austin Area
- Travis County
- Pflugerville
- Blackhawk
- 17204 Kiyah Rose Wy, Pflugerville, TX 78660


































