








Book your tour. Save an average of $18,473. We'll handle the rest.
We collect exclusive builder offers, book your tours, and support you from start to housewarming.
- Confirmed tours
- Get matched & compare top deals
- Expert help, no pressure
- No added fees
Estimated value based on Jome data, T&C apply






- 4 bd
- 3 ba
- 2,619 sqft
105 Enclave Dr, Lakewood Village, TX 75068
Why tour with Jome?
- No pressure toursTour at your own pace with no sales pressure
- Expert guidanceGet insights from our home buying experts
- Exclusive accessSee homes and deals not available elsewhere
Jome is featured in
- Single-Family
- $221.42/sqft
- 0.13-acre lot
- 66 days on Jome
Home description
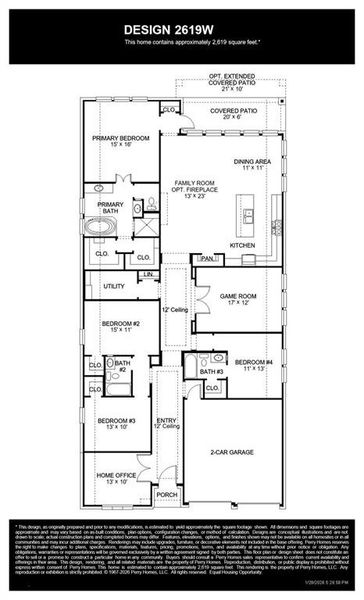
Welcoming front porch opens into an extended entryway adorned with 12-foot ceilings. French doors open into the private home office, located just off the entrance. Down the hallway, you will find the secondary bedrooms, each featuring walk-in closets and a shared full bathroom. Adjacent to the hallway, French doors open into the inviting game room, complete with three large windows. The open family room, featuring a wall of windows, seamlessly leads into the designated dining area. The corner kitchen boasts an inviting island with built-in seating, a 5-burner gas cooktop, and a walk-in pantry. Entering the primary bedroom, you are greeted with ample natural light from the three large windows. French doors lead into the primary suite, showcasing dual vanities, a freestanding tub, a glass enclosed shower, and two walk-in closets. A guest suite with a walk-in closet and private full bathroom is located off the main hallway. The utility room with an included linen closet is conveniently located adjacent to the game room. Outside includes a covered backyard patio. Completing the home is a two-car garage.
Perry Homes Realty LLC, MLS 21212708
May also be listed on the Perry Homes website
Information last verified by Jome: Yesterday at 1:45 AM (April 14, 2026)
Home highlights
Popular Dallas trail connecting urban neighborhoods with tree-lined paths, fitness spots, and skyline views.
Book your tour. Save an average of $18,473. We'll handle the rest.
We collect exclusive builder offers, book your tours, and support you from start to housewarming.
- Confirmed tours
- Get matched & compare top deals
- Expert help, no pressure
- No added fees
Estimated value based on Jome data, T&C apply
Home details
- Property status:
- Pending/Under contract
- Collection:
- Lakewood Village 50'
- Lot size (acres):
- 0.13
- Lot width (feet):
- 50
- Size:
- 2,619 sqft
- Stories:
- 1
- Beds:
- 4
- Baths:
- 3
- Garage spaces:
- 2
- Fence:
- Wood Fence
Construction details
- Builder Name:
- Perry Homes
- Completion Date:
- June, 2026
- Year Built:
- 2026
- Roof:
- Composition Roofing
Home features & finishes
- Appliances:
- Sprinkler System
- Construction Materials:
- Brick
- Cooling:
- Ceiling Fan(s)Central Air
- Flooring:
- Ceramic FlooringCarpet FlooringTile Flooring
- Foundation Details:
- Slab
- Garage/Parking:
- Door OpenerGarageFront Entry Garage/ParkingMulti-Door GarageAttached Garage
- Home amenities:
- Green Construction
- Interior Features:
- Ceiling-VaultedWalk-In ClosetPantryDouble Vanity
- Kitchen:
- DishwasherMicrowave OvenDisposalGas CooktopGranite countertopKitchen IslandElectric Oven
- Lighting:
- Decorative/Designer Lighting
- Property amenities:
- SidewalkGas Log FireplaceLandscapingPatioFireplaceSmart Home SystemPorch
- Rooms:
- Primary Bedroom On MainKitchenFamily RoomOpen Concept FloorplanPrimary Bedroom Downstairs
- Security system:
- Smoke DetectorCarbon Monoxide Detector

Get a consultation with our New Homes Expert
- See how your home builds wealth
- Plan your home-buying roadmap
- Discover hidden gems
Utility information
- Heating:
- Central Heating
- Utilities:
- Underground Utilities, HVAC, Individual Water Meter, Individual Gas Meter, High Speed Internet Access

Community details
Lakewood Village
by Perry Homes, Lakewood Village, TX
- 18 homes
- 33 plans
- 2,169 - 4,989 sqft
View Lakewood Village details
More homes in Lakewood Village
- Home at address 104 Enclave Dr, Lakewood Village, TX 75068

2574W
Lakewood Village 50'
$599,900
- 4 bd
- 3.5 ba
- 2,574 sqft
104 Enclave Dr, Lakewood Village, TX 75068
- Home at address 308 Northridge Dr, Lakewood Village, TX 75068

2545W
Lakewood Village 50'
$607,900
- 4 bd
- 3 ba
- 2,545 sqft
308 Northridge Dr, Lakewood Village, TX 75068
- Home at address 328 Northridge Dr, Lakewood Village, TX 75068

2513W
Lakewood Village 50'
$615,900
- 4 bd
- 3 ba
- 2,513 sqft
328 Northridge Dr, Lakewood Village, TX 75068
- Home at address 1005 Clearwater Dr, Lakewood Village, TX 75068

2545W
Lakewood Village 50'
$615,900
- 4 bd
- 3 ba
- 2,545 sqft
1005 Clearwater Dr, Lakewood Village, TX 75068
- Home at address 1012 Clearwater Dr, Lakewood Village, TX 75068

2619W
Lakewood Village 50'
$623,900
- 4 bd
- 3 ba
- 2,619 sqft
1012 Clearwater Dr, Lakewood Village, TX 75068
- Home at address 137 Enclave Dr, Lakewood Village, TX 75068

2574W
Lakewood Village 50'
$633,900
- 4 bd
- 3.5 ba
- 2,574 sqft
137 Enclave Dr, Lakewood Village, TX 75068
Floor plans in Lakewood Village
About the builder - Perry Homes

- 390communities on Jome
- 1,593homes on Jome
Neighborhood
Home address
- City:
- Lakewood Village
- County:
- Denton
- Zip Code:
- 75068
Schools in Little Elm Independent School District
- Grades PK-03Privatecreekwood school1.8 mi800 w eldorado pkwy ste 106na
- Grades M-MPubliclakeside middle1.9 mi400 lobo lnna
- Grades M-MPublicnew elementary north1.9 mi400 lobo lnna
- Grades PK-PKPublicnew early childhood center2.0 mi300 lobo lnna
GreatSchools’ Summary Rating calculation is based on 4 of the school’s themed ratings, including test scores, student/academic progress, college readiness, and equity. This information should only be used as a reference. Jome is not affiliated with GreatSchools and does not endorse or guarantee this information. Please reach out to schools directly to verify all information and enrollment eligibility. Data provided by GreatSchools.org © 2025
Places of interest
Getting around
Air quality
Noise level
A Soundscore™ rating is a number between 50 (very loud) and 100 (very quiet) that tells you how loud a location is due to environmental noise.

Considering this home?
Our expert will guide your tour, in-person or virtual
Need more information?
Text or call (888) 545-5198
Financials
Estimated monthly payment
Let us help you find your dream home
How many bedrooms are you looking for?
Similar homes nearby
Recently added communities in this area
Nearby communities in Lakewood Village
New homes in nearby cities
More New Homes in Lakewood Village, TX
Perry Homes Realty LLC, MLS 21212708
IDX information is provided exclusively for personal, non-commercial use, and may not be used for any purpose other than to identify prospective properties consumers may be interested in purchasing. You may not reproduce or redistribute this data, it is for viewing purposes only. This data is deemed reliable, but is not guaranteed accurate by the MLS or NTREIS.
Read moreLast checked Apr 14, 10:00 pm
- Jome
- New homes search
- Texas
- Dallas-Fort Worth Area
- Denton County
- Lakewood Village
- Lakewood Village
- Lakewood Village 50'
- 105 Enclave Dr, Lakewood Village, TX 75068





























