



Book your tour. Save an average of $18,473. We'll handle the rest.
We collect exclusive builder offers, book your tours, and support you from start to housewarming.
- Confirmed tours
- Get matched & compare top deals
- Expert help, no pressure
- No added fees
Estimated value based on Jome data, T&C apply
- 4 bd
- 4.5 ba
- 3,774 sqft
1505 Sunset Point Dr, Lakewood Village, TX 75068
Why tour with Jome?
- No pressure toursTour at your own pace with no sales pressure
- Expert guidanceGet insights from our home buying experts
- Exclusive accessSee homes and deals not available elsewhere
Jome is featured in
- Single-Family
- $221.22/sqft
- 0.34-acre lot
- 78 days on Jome
Home description
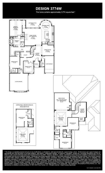
The grand two-story entry welcomes you into this spacious home. The home office is just off the front door and has French doors for added privacy. A secluded guest suite with a full bathroom has a private hallway off the mud room and split two-car garage. The formal dining room is adjacent to the curved staircase. As you enter the family room you are greeted by an abundance of light from the wall of windows. The curved morning area is embraced by windows as well and allows access to the backyard covered patio. The kitchen boasts an island with built-in seating and a walk-in pantry. The primary bedroom showcases a wall of windows. Double doors lead into the primary bathroom which boasts dual vanities, a garden tub, separate glass enclosed shower, an oversized walk-in closet, and dual access to the utility room for added convenience. Upstairs you will find a large game room and connecting media room. Two secondary bedrooms which feature their own bathrooms complete the second level. The home has an additional garage bay.
Perry Homes Realty LLC, MLS 21217435
May also be listed on the Perry Homes website
Information last verified by Jome: Today at 1:47 AM (April 22, 2026)
Book your tour. Save an average of $18,473. We'll handle the rest.
We collect exclusive builder offers, book your tours, and support you from start to housewarming.
- Confirmed tours
- Get matched & compare top deals
- Expert help, no pressure
- No added fees
Estimated value based on Jome data, T&C apply
Home details
- Property status:
- Pending/Under contract
- Collection:
- Lakewood Village 70'/90'
- Lot size (acres):
- 0.34
- Size:
- 3,774 sqft
- Stories:
- 2
- Beds:
- 4
- Baths:
- 4
- Half baths:
- 1
- Garage spaces:
- 3
- Fence:
- Wood Fence
Construction details
- Builder Name:
- Perry Homes
- Completion Date:
- June, 2026
- Year Built:
- 2026
- Roof:
- Composition Roofing
Home features & finishes
- Appliances:
- Sprinkler System
- Construction Materials:
- BrickRockStone
- Cooling:
- Ceiling Fan(s)Central Air
- Flooring:
- Ceramic FlooringCarpet FlooringTile Flooring
- Foundation Details:
- Slab
- Garage/Parking:
- Door OpenerGarageFront Entry Garage/ParkingSide Entry Garage/ParkingMulti-Door GarageAttached Garage
- Home amenities:
- Green Construction
- Interior Features:
- Ceiling-VaultedWalk-In ClosetPantryDouble Vanity
- Kitchen:
- DishwasherMicrowave OvenDisposalGas CooktopGranite countertopKitchen IslandElectric Oven
- Lighting:
- Decorative/Designer Lighting
- Property amenities:
- SidewalkGas Log FireplaceLandscapingPatioFireplacePorch
- Rooms:
- KitchenFamily RoomOpen Concept Floorplan
- Security system:
- Smoke DetectorCarbon Monoxide Detector

Get a consultation with our New Homes Expert
- See how your home builds wealth
- Plan your home-buying roadmap
- Discover hidden gems
Utility information
- Heating:
- Central Heating
- Utilities:
- Underground Utilities, HVAC, Individual Water Meter, Individual Gas Meter, High Speed Internet Access

Community details
Lakewood Village
by Perry Homes, Lakewood Village, TX
- 19 homes
- 33 plans
- 2,169 - 4,336 sqft
View Lakewood Village details
More homes in Lakewood Village
- Home at address 308 Northridge Dr, Lakewood Village, TX 75068

2545W
Lakewood Village 50'
$549,900
- 4 bd
- 3 ba
- 2,545 sqft
308 Northridge Dr, Lakewood Village, TX 75068
- Home at address 104 Enclave Dr, Lakewood Village, TX 75068

2574W
Lakewood Village 50'
$574,900
- 4 bd
- 3.5 ba
- 2,574 sqft
104 Enclave Dr, Lakewood Village, TX 75068
- Home at address 137 Enclave Dr, Lakewood Village, TX 75068

2574W
Lakewood Village 50'
$599,900
- 4 bd
- 3.5 ba
- 2,574 sqft
137 Enclave Dr, Lakewood Village, TX 75068
- Home at address 328 Northridge Dr, Lakewood Village, TX 75068

2513W
Lakewood Village 50'
$615,900
- 4 bd
- 3 ba
- 2,513 sqft
328 Northridge Dr, Lakewood Village, TX 75068
- Home at address 1005 Clearwater Dr, Lakewood Village, TX 75068

2545W
Lakewood Village 50'
$615,900
- 4 bd
- 3 ba
- 2,545 sqft
1005 Clearwater Dr, Lakewood Village, TX 75068
- Home at address 312 Northridge Dr, Lakewood Village, TX 75068

2513W
Lakewood Village 50'
$619,900
- 4 bd
- 3 ba
- 2,513 sqft
312 Northridge Dr, Lakewood Village, TX 75068
Floor plans in Lakewood Village
About the builder - Perry Homes

- 391communities on Jome
- 1,631homes on Jome
Neighborhood
Home address
- City:
- Lakewood Village
- County:
- Denton
- Zip Code:
- 75068
Schools in Little Elm Independent School District
- Grades PK-03Privatecreekwood school2.2 mi800 w eldorado pkwy ste 106na
- Grades M-MPubliclakeside middle2.2 mi400 lobo lnna
- Grades M-MPublicnew elementary north2.2 mi400 lobo lnna
- Grades PK-PKPublicnew early childhood center2.3 mi300 lobo lnna
GreatSchools’ Summary Rating calculation is based on 4 of the school’s themed ratings, including test scores, student/academic progress, college readiness, and equity. This information should only be used as a reference. Jome is not affiliated with GreatSchools and does not endorse or guarantee this information. Please reach out to schools directly to verify all information and enrollment eligibility. Data provided by GreatSchools.org © 2025
Places of interest
Getting around
Air quality
Noise level
A Soundscore™ rating is a number between 50 (very loud) and 100 (very quiet) that tells you how loud a location is due to environmental noise.

Considering this home?
Our expert will guide your tour, in-person or virtual
Need more information?
Text or call (888) 545-5198
Financials
Estimated monthly payment
Let us help you find your dream home
How many bedrooms are you looking for?
Similar homes nearby
Recently added communities in this area
Nearby communities in Lakewood Village
New homes in nearby cities
More New Homes in Lakewood Village, TX
Perry Homes Realty LLC, MLS 21217435
IDX information is provided exclusively for personal, non-commercial use, and may not be used for any purpose other than to identify prospective properties consumers may be interested in purchasing. You may not reproduce or redistribute this data, it is for viewing purposes only. This data is deemed reliable, but is not guaranteed accurate by the MLS or NTREIS.
Read moreLast checked Apr 22, 4:00 am
- Jome
- New homes search
- Texas
- Dallas-Fort Worth Area
- Denton County
- Lakewood Village
- Lakewood Village
- Lakewood Village 70'/90'
- 1505 Sunset Point Dr, Lakewood Village, TX 75068



























