



Book your tour. Save an average of $18,473. We'll handle the rest.
We collect exclusive builder offers, book your tours, and support you from start to housewarming.
- Confirmed tours
- Get matched & compare top deals
- Expert help, no pressure
- No added fees
Estimated value based on Jome data, T&C apply
- 3 bd
- 2 ba
- 2,082 sqft
7286 Velvetleaf, Benbrook, TX 76126
Why tour with Jome?
- No pressure toursTour at your own pace with no sales pressure
- Expert guidanceGet insights from our home buying experts
- Exclusive accessSee homes and deals not available elsewhere
Jome is featured in
- Single-Family
- Under construction
- $237.75/sqft
- $475/annual HOA
Home description
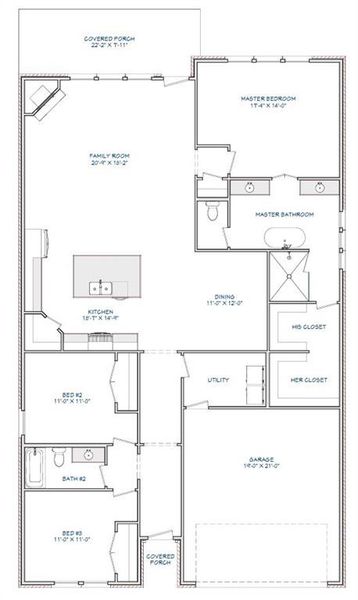
We are excited to share details about a true must-see property that will be ready in early 2026. The exterior features a mix of white brick and white stone, complemented by black windows with shed roofs and a two-car cedar garage. Inside, the home offers custom ceiling designs, including a barrel ceiling in the entry, a cake box ceiling, and a cathedral ceiling in the front bedroom, living room has a stone gas fireplace. It also features a spacious dining room. The main highlight of this home is the luxurious master suite. The master bathroom includes his-and-her sinks, a free-standing tub, and a generously sized shower with a rain shower head. The suite is complete with a his-and-her walk-in closets. Please call agent to discuss exterior and interior selections.
Steve Hawkins, REALTORS, MLS 21136177
May also be listed on the Hawkins Steve Custom Homes website
Information last verified by Jome: Today at 4:01 PM (March 20, 2026)
Book your tour. Save an average of $18,473. We'll handle the rest.
We collect exclusive builder offers, book your tours, and support you from start to housewarming.
- Confirmed tours
- Get matched & compare top deals
- Expert help, no pressure
- No added fees
Estimated value based on Jome data, T&C apply
Home details
- Property status:
- Under construction
- Size:
- 2,082 sqft
- Stories:
- 1
- Beds:
- 3
- Baths:
- 2
- Garage spaces:
- 2
Construction details
- Builder Name:
- Hawkins Steve Custom Homes
- Year Built:
- 2025
Home features & finishes
- Garage/Parking:
- Door OpenerGarageAttached Garage
- Interior Features:
- Ceiling-VaultedWalk-In ClosetPantry
- Kitchen:
- DishwasherMicrowave OvenDisposalGas CooktopKitchen IslandGas OvenKitchen Range
- Lighting:
- Decorative/Designer Lighting
- Property amenities:
- Fireplace
- Rooms:
- Primary Bedroom On MainOpen Concept FloorplanPrimary Bedroom Downstairs

Get a consultation with our New Homes Expert
- See how your home builds wealth
- Plan your home-buying roadmap
- Discover hidden gems
Utility information
- Heating:
- Gas Heating
- Utilities:
- City Water System, High Speed Internet Access
About the builder - Hawkins Steve Custom Homes
Neighborhood
Home address
Schools in Fort Worth Independent School District
GreatSchools’ Summary Rating calculation is based on 4 of the school’s themed ratings, including test scores, student/academic progress, college readiness, and equity. This information should only be used as a reference. Jome is not affiliated with GreatSchools and does not endorse or guarantee this information. Please reach out to schools directly to verify all information and enrollment eligibility. Data provided by GreatSchools.org © 2025
Places of interest
Getting around
Air quality
Noise level
A Soundscore™ rating is a number between 50 (very loud) and 100 (very quiet) that tells you how loud a location is due to environmental noise.
Natural hazards risk
Provided by FEMA

Considering this home?
Our expert will guide your tour, in-person or virtual
Need more information?
Text or call (888) 545-5198
Financials
Estimated monthly payment
Let us help you find your dream home
How many bedrooms are you looking for?
Similar homes nearby
Recently added communities in this area
Nearby communities in Benbrook
New homes in nearby cities
More New Homes in Benbrook, TX
Steve Hawkins, REALTORS, MLS 21136177
IDX information is provided exclusively for personal, non-commercial use, and may not be used for any purpose other than to identify prospective properties consumers may be interested in purchasing. You may not reproduce or redistribute this data, it is for viewing purposes only. This data is deemed reliable, but is not guaranteed accurate by the MLS or NTREIS.
Read moreLast checked Mar 20, 4:00 pm
- Jome
- New homes search
- Texas
- Dallas-Fort Worth Area
- Tarrant County
- Benbrook
- 7286 Velvetleaf, Benbrook, TX 76126


























