














Book your tour. Save an average of $18,473. We'll handle the rest.
We collect exclusive builder offers, book your tours, and support you from start to housewarming.
- Confirmed tours
- Get matched & compare top deals
- Expert help, no pressure
- No added fees
Estimated value based on Jome data, T&C apply




































- 4 bd
- 3.5 ba
- 2,735 sqft
18722 Eastwood Ridge Dr, Crosby, TX 77532
Why tour with Jome?
- No pressure toursTour at your own pace with no sales pressure
- Expert guidanceGet insights from our home buying experts
- Exclusive accessSee homes and deals not available elsewhere
Jome is featured in
- Single-Family
- Quick move-in
- $156.82/sqft
- $750/annual HOA
Home description
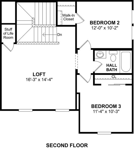
Stunning new construction by K. Hovnanian Homes in Sundance Cove! Located on a cul-de-sac this Cordoba home in our Farmhouse Look features 4 beds, 3.5 baths, and 2 car garage. Step into the welcoming foyer, this flexible floorplan features a convenient home office, Extra Suite with full bath, and versatile loft upstairs. Boasting custom, designer-inspired finishes including decorative stained beams, wood-look tile flooring, quartz countertops, and soaring ceilings. The spacious kitchen opens to the living area, perfect for entertaining. The relaxing primary suite has a huge walk-in closet and spa-like bath with freestanding tub and dual sinks. Enjoy the views of this exceptional property from the covered patio. Located directly on Lake Houston, residents can enjoy the lake life steps from your front door. Future amenities include: resort style pool, clubhouse, playground, boat ramp, and more! Offered by: K. Hovnanian of Houston II, L.L.C.
K. Hovnanian Homes, MLS 83573584
May also be listed on the K. Hovnanian® Homes website
Information last verified by Jome: Today at 2:35 AM (March 9, 2026)
Book your tour. Save an average of $18,473. We'll handle the rest.
We collect exclusive builder offers, book your tours, and support you from start to housewarming.
- Confirmed tours
- Get matched & compare top deals
- Expert help, no pressure
- No added fees
Estimated value based on Jome data, T&C apply
Home details
- Property status:
- Move-in ready
- Lot size (acres):
- 0.18
- Size:
- 2,735 sqft
- Stories:
- 2
- Beds:
- 4
- Baths:
- 3
- Half baths:
- 1
- Garage spaces:
- 2
- Facing direction:
- Northwest
Construction details
- Builder Name:
- K. Hovnanian® Homes
- Year Built:
- 2025
- Roof:
- Composition Roofing
Home features & finishes
- Construction Materials:
- CementBrickStone
- Cooling:
- Ceiling Fan(s)
- Flooring:
- Carpet FlooringTile Flooring
- Foundation Details:
- Slab
- Garage/Parking:
- GarageAttached Garage
- Home amenities:
- ENERGY STAR CertifiedGreen Construction
- Interior Features:
- Ceiling-HighWired For SecurityWalk-In ClosetFoyerWalk-In PantryWindow Coverings
- Kitchen:
- DishwasherMicrowave OvenOvenDisposalGas CooktopKitchen IslandGas OvenDouble Oven
- Laundry facilities:
- DryerWasher
- Lighting:
- Lighting
- Property amenities:
- Backyard
- Rooms:
- Kitchen

Get a consultation with our New Homes Expert
- See how your home builds wealth
- Plan your home-buying roadmap
- Discover hidden gems
Utility information
- Heating:
- Water Heater, Gas Heating
- Utilities:
- HVAC

Community details
Sundance Cove
by K. Hovnanian® Homes, Crosby, TX
- 22 homes
- 5 plans
- 2,371 - 3,259 sqft
View Sundance Cove details
More homes in Sundance Cove
- Home at address 18830 Eastwood Ridge Ct, Crosby, TX 77532

Aegean
Savings$378,600
- 5 bd
- 3 ba
- 2,572 sqft
18830 Eastwood Ridge Ct, Crosby, TX 77532
- Home at address 18830 Eastwood Ridge Dr, Crosby, TX 77532

Home
Savings$378,600
- 5 bd
- 3 ba
- 2,572 sqft
18830 Eastwood Ridge Dr, Crosby, TX 77532
- Home at address 18802 Eastwood Ridge Dr, Crosby, TX 77532

Home
Savings$388,140
- 4 bd
- 2 ba
- 2,371 sqft
18802 Eastwood Ridge Dr, Crosby, TX 77532
- Home at address 18802 Eastwood Ridge Ct, Crosby, TX 77532

Barcelona
Savings$388,140
- 4 bd
- 2 ba
- 2,371 sqft
18802 Eastwood Ridge Ct, Crosby, TX 77532
- Home at address 18638 Eastwood Ridge Dr, Crosby, TX 77532

Home
Savings$396,990
- 5 bd
- 3 ba
- 2,572 sqft
18638 Eastwood Ridge Dr, Crosby, TX 77532
- Home at address 18638 Eastwood Ridge Ct, Crosby, TX 77532

Aegean
Savings$396,990
- 5 bd
- 3 ba
- 2,572 sqft
18638 Eastwood Ridge Ct, Crosby, TX 77532
Floor plans in Sundance Cove
About the builder - K. Hovnanian® Homes
Neighborhood
Home address
Schools in Crosby Independent School District
GreatSchools’ Summary Rating calculation is based on 4 of the school’s themed ratings, including test scores, student/academic progress, college readiness, and equity. This information should only be used as a reference. Jome is not affiliated with GreatSchools and does not endorse or guarantee this information. Please reach out to schools directly to verify all information and enrollment eligibility. Data provided by GreatSchools.org © 2025
Places of interest
Getting around
Air quality

Considering this home?
Our expert will guide your tour, in-person or virtual
Need more information?
Text or call (888) 488-9243
Financials
Estimated monthly payment
Let us help you find your dream home
How many bedrooms are you looking for?
Similar homes nearby
Recently added communities in this area
Nearby communities in Crosby
New homes in nearby cities
More New Homes in Crosby, TX
K. Hovnanian Homes, MLS 83573584
Copyright © 2025, Houston Realtors Information Service, Inc. The information provided is exclusively for consumers’ personal, non-commercial use, and may not be used for any purpose other than to identify prospective properties consumers may be interested in purchasing. Information is deemed reliable but not guaranteed. All information provided should be independently verified.
Read moreLast checked Mar 9, 8:50 am
- Jome
- New homes search
- Texas
- Greater Houston Area
- Harris County
- Crosby
- Sundance Cove
- 18722 Eastwood Ridge Dr, Crosby, TX 77532

































