









Book your tour. Save an average of $18,473. We'll handle the rest.
We collect exclusive builder offers, book your tours, and support you from start to housewarming.
- Confirmed tours
- Get matched & compare top deals
- Expert help, no pressure
- No added fees
Estimated value based on Jome data, T&C apply









- 4 bd
- 3.5 ba
- 2,735 sqft
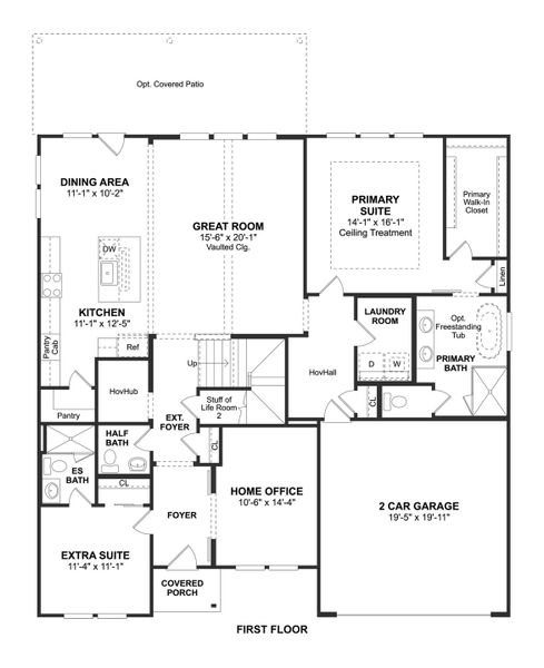
Cordoba plan in Sundance Cove by K. Hovnanian® Homes
Visit the community to experience this floor plan
Why tour with Jome?
- No pressure toursTour at your own pace with no sales pressure
- Expert guidanceGet insights from our home buying experts
- Exclusive accessSee homes and deals not available elsewhere
Jome is featured in
Plan description
May also be listed on the K. Hovnanian® Homes website
Information last verified by Jome: Yesterday at 6:07 PM (April 14, 2026)
Plan details
- Name:
- Cordoba
- Property type:
- Floor plan
- Community:
- Sundance Cove
- Builder:
- K. Hovnanian® Homes
- Size:
- 2,735 sqft
- Stories:
- 2
- Beds:
- 4
- Baths:
- 3.5
- Garage spaces:
- 2
Plan features & finishes
- Garage/Parking:
- GarageAttached Garage
- Interior Features:
- Walk-In ClosetFoyerPantryStaircasesLoft
- Kitchen:
- Kitchen Island
- Laundry facilities:
- Utility/Laundry Room
- Property amenities:
- Porch
- Rooms:
- Flex RoomGreat RoomPrimary Bedroom On MainKitchenEntry HallPowder RoomOffice/StudyDining RoomOpen Concept FloorplanPrimary Bedroom Downstairs
- Upgrade Options:
- Freestanding TubCovered PatioMulti-Slide DoorsFireplace

Get a consultation with our New Homes Expert
- See how your home builds wealth
- Plan your home-buying roadmap
- Discover hidden gems
See the full plan layout
Download the floor plan PDF with room dimensions and home design details.

Instant download, no cost

Community details
Sundance Cove
by K. Hovnanian® Homes, Crosby, TX
- 12 homes
- 5 plans
- 2,383 - 3,259 sqft
View Sundance Cove details
Want to know more about what's around here?
The Cordoba floor plan is part of Sundance Cove, a new home community by K. Hovnanian® Homes, located in Crosby, TX. Visit the Sundance Cove community page for full neighborhood insights, including nearby schools, shopping, walk & bike-scores, commuting, air quality & natural hazards.

Homes built from this plan
Available homes in Sundance Cove
- Home at address 18830 Eastwood Ridge Ct, Crosby, TX 77532

Aegean
$352,640
- 5 bd
- 3 ba
- 2,572 sqft
18830 Eastwood Ridge Ct, Crosby, TX 77532
- Home at address 18638 Eastwood Ridge Ct, Crosby, TX 77532

Aegean
Savings$377,990
- 5 bd
- 3 ba
- 2,572 sqft
18638 Eastwood Ridge Ct, Crosby, TX 77532
- Home at address 18726 Eastwood Ridge Ct, Crosby, TX 77532

Aegean
Savings$395,890
- 5 bd
- 3 ba
- 2,581 sqft
18726 Eastwood Ridge Ct, Crosby, TX 77532
- Home at address 3003 Troubadour Dr, Crosby, TX 77532

Barcelona
$397,590
- 4 bd
- 2 ba
- 2,383 sqft
3003 Troubadour Dr, Crosby, TX 77532
- Home at address 18606 Eastwood Ridge Ct, Crosby, TX 77532

Aegean
$425,090
- 5 bd
- 3 ba
- 2,581 sqft
18606 Eastwood Ridge Ct, Crosby, TX 77532
- Home at address 18630 Eastwood Ridge Ct, Crosby, TX 77532

Malmo
Savings$445,800
- 4 bd
- 3.5 ba
- 3,259 sqft
18630 Eastwood Ridge Ct, Crosby, TX 77532
More floor plans in Sundance Cove

Considering this plan?
Our expert will guide your tour, in-person or virtual
Need more information?
Text or call (888) 545-5198
Financials
Estimated monthly payment
Let us help you find your dream home
How many bedrooms are you looking for?


































