












Book your tour. Save an average of $18,473. We'll handle the rest.
- Confirmed tours
- Get matched & compare top deals
- Expert help, no pressure
- No added fees
Estimated value based on Jome data, T&C apply

































- 5 bd
- 2.5 ba
- 1,892 sqft
14742 Clay Ridge Run, San Antonio, TX 78253
Why tour with Jome?
- No pressure toursTour at your own pace with no sales pressure
- Expert guidanceGet insights from our home buying experts
- Exclusive accessSee homes and deals not available elsewhere
Jome is featured in
- Single-Family
- $149.73/sqft
- $195/quarterly HOA
- 0.12-acre lot
Home description
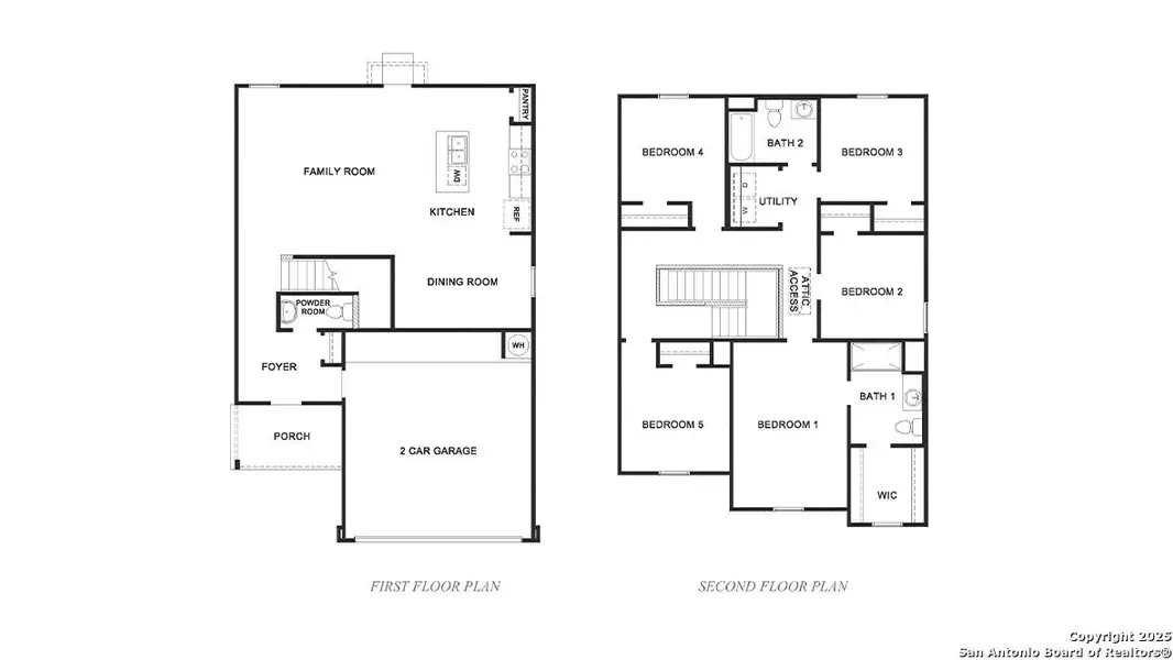
The Franklin plan is one of our two-story homes featured in Riverstone at Westpointe in San Antonio, TX. This new home layout offers 2 classic front exteriors, 5 bedrooms, 2.5 baths, 2 car-garage and 1891 square feet of comfortable living. Step inside The Franklin to find an elongated foyer opening to an open concept living room, kitchen, and dining area. The gourmet kitchen faces the living area so you don't miss a thing while cooking and includes quartz counter tops, stainless steel appliances and shaker style cabinetry. The main bedroom is located toward the front of the home on the second story and features an attractive attached bathroom with a walk-in shower, quartz countertops, a grand walk-in closet and plenty of storage space. The second story includes all secondary bedrooms, and two full bathrooms. You'll have carpeted floors in every bedroom and sheet vinyl flooring in your bathrooms and utility room. Additional features include sheet vinyl flooring in entry, living room, and all wet areas, quartz counter tops in all bathrooms and HOME IS CONNECTED base package. Using one central hub that talks to all the devices in your home, you can control the lights, thermostat and locks, all from your cellular device.
Keller Williams Heritage, MLS 1925921
May also be listed on the D.R. Horton website
Information last verified by Jome: Today at 2:01 AM (January 20, 2026)
Home highlights
Hill Country preserve near San Antonio with scenic trails, rare dinosaur tracks, and quiet suburban access.
Book your tour. Save an average of $18,473. We'll handle the rest.
We collect exclusive builder offers, book your tours, and support you from start to housewarming.
- Confirmed tours
- Get matched & compare top deals
- Expert help, no pressure
- No added fees
Estimated value based on Jome data, T&C apply
Home details
- Property status:
- Pending/Under contract
- Neighborhood:
- Alamo Ranch
- Lot size (acres):
- 0.12
- Size:
- 1,892 sqft
- Stories:
- 2
- Beds:
- 5
- Baths:
- 2
- Half baths:
- 1
- Garage spaces:
- 2
- Fence:
- Privacy Fence
Construction details
- Builder Name:
- D.R. Horton
- Year Built:
- 2025
- Roof:
- Composition Roofing
Home features & finishes
- Appliances:
- Water SoftenerSprinkler System
- Cooling:
- Central Air
- Flooring:
- Vinyl FlooringCarpet Flooring
- Foundation Details:
- Slab
- Garage/Parking:
- GarageAttached Garage
- Interior Features:
- Ceiling-HighWalk-In ClosetFoyerPantryBlinds
- Kitchen:
- Stainless Steel AppliancesGas CooktopQuartz countertopBacksplashKitchen CountertopKitchen Island
- Laundry facilities:
- DryerWasherUtility/Laundry Room
- Property amenities:
- SodBathtub in primaryCabinetsPatioSmart Home SystemPorch
- Rooms:
- KitchenPowder RoomDining RoomFamily RoomOpen Concept FloorplanPrimary Bedroom Upstairs
Room details
Master Bedroom
Kitchen
Dining Room

Get a consultation with our New Homes Expert
- See how your home builds wealth
- Plan your home-buying roadmap
- Discover hidden gems
Utility information
- Heating:
- Central Heating, Gas Heating

Community details
Riverstone at Westpointe
by D.R. Horton, San Antonio, TX
- 28 homes
- 46 plans
- 1,156 - 3,532 sqft
View Riverstone at Westpointe details
More homes in Riverstone at Westpointe
- Home at address 14674 Clay Ridge Run, San Antonio, TX 78253

The Madison
$368,500
- 5 bd
- 3 ba
- 2,498 sqft
14674 Clay Ridge Run, San Antonio, TX 78253
- Home at address 14675 Pearl Flts, San Antonio, TX 78253

The Rosemont
$434,950
- 5 bd
- 3 ba
- 2,733 sqft
14675 Pearl Flts, San Antonio, TX 78253
- Home at address 14724 Pearl Flts, San Antonio, TX 78253

The Salerno
$435,950
- 5 bd
- 3.5 ba
- 2,862 sqft
14724 Pearl Flts, San Antonio, TX 78253
- Home at address 14522 Pearl Flts, San Antonio, TX 78253

The Salerno
$453,950
- 5 bd
- 3.5 ba
- 2,861 sqft
14522 Pearl Flts, San Antonio, TX 78253
- Home at address 14631 Pearl Flts, San Antonio, TX 78253

The Clydesdale
$462,950
- 5 bd
- 3.5 ba
- 3,532 sqft
14631 Pearl Flts, San Antonio, TX 78253
- Home at address 14685 Pearl Flts, San Antonio, TX 78253

The Clydesdale
$465,950
- 5 bd
- 3.5 ba
- 3,532 sqft
14685 Pearl Flts, San Antonio, TX 78253
Floor plans in Riverstone at Westpointe
About the builder - D.R. Horton

- 1,201communities on Jome
- 9,103homes on Jome
Neighborhood
Home address
- Neighborhood:
- Alamo Ranch
- City:
- San Antonio
Schools in Northside Independent School District
- Grades PK-05Publicvillage at westpointe (north) elementary2.0 mi7433 sawmill gladena
GreatSchools’ Summary Rating calculation is based on 4 of the school’s themed ratings, including test scores, student/academic progress, college readiness, and equity. This information should only be used as a reference. Jome is not affiliated with GreatSchools and does not endorse or guarantee this information. Please reach out to schools directly to verify all information and enrollment eligibility. Data provided by GreatSchools.org © 2025
Places of interest
Getting around
Air quality

Considering this home?
Our expert will guide your tour, in-person or virtual
Need more information?
Text or call (888) 486-2818
Financials
Estimated monthly payment
Let us help you find your dream home
How many bedrooms are you looking for?
Similar homes nearby
Recently added communities in this area
Nearby communities in San Antonio
New homes in nearby cities
More New Homes in San Antonio, TX
Keller Williams Heritage, MLS 1925921
IDX information is provided exclusively for personal, non-commercial use, and may not be used for any purpose other than to identify prospective properties consumers may be interested in purchasing. Information is deemed reliable but not guaranteed.
Read moreLast checked Jan 20, 2:00 am
- Jome
- New homes search
- Texas
- Greater San Antonio
- Bexar County
- San Antonio
- Riverstone at Westpointe
- 14742 Clay Ridge Run, San Antonio, TX 78253




































