













Book your tour. Save an average of $18,473. We'll handle the rest.
- Confirmed tours
- Get matched & compare top deals
- Expert help, no pressure
- No added fees
Estimated value based on Jome data, T&C apply
- 3 bd
- 2 ba
- 1,409 sqft
1264 Wilkins Valley St, Brenham, TX 77833
Why tour with Jome?
- No pressure toursTour at your own pace with no sales pressure
- Expert guidanceGet insights from our home buying experts
- Exclusive accessSee homes and deals not available elsewhere
Jome is featured in
- Single-Family
- Quick move-in
- $174.29/sqft
- 10 days on Jome
Home description
About this home
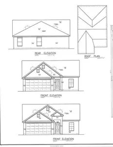
Welcome to the Baxtor floorplan at Wilkins Valley in Brenham, Texas, where every square foot is dedicated to you. This single-story plan is approximately 1,409 square feet, with 3 bedrooms and 2 bathrooms, along with a 2-car garage.
Walking through the front door, the entry meets a perfect mudroom space—complete with the utility room, coat closet, and garage access. On the opposite side of the entry, you’ll find both secondary bedrooms complete with windows, closets, and carpeted flooring. Between both bedrooms, is the secondary bathroom with a shower/tub combo.
Continuing through the home, you’re met with the open-concept living room, kitchen, and dining nook. The kitchen boasts quartz countertops, a spacious corner pantry, kitchen island, and stainless-steel appliances. Off the dining nook is the covered patio and fenced backyard.
Lastly, you’ll find the large primary bedroom with a connected bathroom and walk-in closet. These finishes include a quartz vanity top, shaker style cabinetry, and ceramic tile shower surround.
With every D.R. Horton home, you’ll never be too far with our smart home technology package integrated into the home. Find security and control through the Qolsys Smart Home Panel, your phone, or voice and when you want to add additional smart home tech, easily integrate with Z-wave or Bluetooth technology.
Call today and see why the Baxtor is the perfect plan for you at Wilkins Valley!
May also be listed on the D.R. Horton website
Information last verified by Jome: Today at 4:33 AM (December 5, 2025)
Home highlights
Book your tour. Save an average of $18,473. We'll handle the rest.
We collect exclusive builder offers, book your tours, and support you from start to housewarming.
- Confirmed tours
- Get matched & compare top deals
- Expert help, no pressure
- No added fees
Estimated value based on Jome data, T&C apply
Home details
- Property status:
- Move-in ready
- Size:
- 1,409 sqft
- Stories:
- 1
- Beds:
- 3
- Baths:
- 2
- Garage spaces:
- 2
Construction details
- Builder Name:
- D.R. Horton
Home features & finishes
- Garage/Parking:
- GarageAttached Garage
- Interior Features:
- Walk-In Closet
- Laundry facilities:
- Utility/Laundry Room
- Property amenities:
- PatioPorch
- Rooms:
- Primary Bedroom On MainKitchenDining RoomFamily RoomPrimary Bedroom Downstairs

Community details
Wilkins Valley
by D.R. Horton, Brenham, TX
- 10 homes
- 9 plans
- 1,280 - 1,892 sqft
View Wilkins Valley details
More homes in Wilkins Valley
Floor plans in Wilkins Valley
About the builder - D.R. Horton
Neighborhood
Home address
- City:
- Brenham
- County:
- Washington
- Zip Code:
- 77833
Schools in Brenham Independent School District
- Grades PK-PKPublicbrenham early childhood learning center1.2 mi304 kerr stna
GreatSchools’ Summary Rating calculation is based on 4 of the school’s themed ratings, including test scores, student/academic progress, college readiness, and equity. This information should only be used as a reference. Jome is not affiliated with GreatSchools and does not endorse or guarantee this information. Please reach out to schools directly to verify all information and enrollment eligibility. Data provided by GreatSchools.org © 2025
Places of interest
Getting around
Natural hazards risk
Climate hazards can impact homes and communities, with risks varying by location. These scores reflect the potential impact of natural disasters and climate-related risks on Washington County
Provided by FEMA

Considering this home?
Our expert will guide your tour, in-person or virtual
Need more information?
Text or call (888) 486-2818
Financials
Estimated monthly payment
Similar homes nearby
Recently added communities in this area
Nearby communities in Brenham
New homes in nearby cities
More New Homes in Brenham, TX
- Home
- New homes
- Texas
- Washington County
- Brenham
- Wilkins Valley
- 1264 Wilkins Valley St, Brenham, TX 77833





































