









Book your tour. Save an average of $18,473. We'll handle the rest.
We collect exclusive builder offers, book your tours, and support you from start to housewarming.
- Confirmed tours
- Get matched & compare top deals
- Expert help, no pressure
- No added fees
Estimated value based on Jome data, T&C apply




































Why tour with Jome?
- No pressure toursTour at your own pace with no sales pressure
- Expert guidanceGet insights from our home buying experts
- Exclusive accessSee homes and deals not available elsewhere
Jome is featured in
- Single-Family
- Quick move-in
- $199.35/sqft
- $1,032/annual HOA
Home description
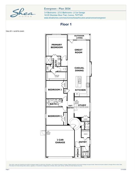
This spacious one-story plan provides ample storage and a flow that optimizes convenience, from the inviting front entry rotunda to the bright and open great room to the generously sized primary WIC. Features include cabinets in the laundry room for storing important supplies, extended outdoor living for watching the beautiful Texas sunset, and classy French doors in the study. All new Shea homes are EnergyStar Certified and come with smart home technology, stainless steel gas appliances, and a one-year warranty. Evergreen is Shea Homes Houston's largest master planned community, and combines gorgeous woodland landscapes with state-of-the-art amenities designed to bring families and neighbors together. Walk the winding trails, relax in the resort-style pool, and put down roots in a space that's all your own.
Shea Homes, MLS 35037819
May also be listed on the Shea Homes website
Information last verified by Jome: Today at 2:34 AM (April 21, 2026)
Book your tour. Save an average of $18,473. We'll handle the rest.
We collect exclusive builder offers, book your tours, and support you from start to housewarming.
- Confirmed tours
- Get matched & compare top deals
- Expert help, no pressure
- No added fees
Estimated value based on Jome data, T&C apply
Home details
- Property status:
- Move-in ready
- Lot size (acres):
- 0.13
- Lot width (feet):
- 40
- Size:
- 1,856 sqft
- Stories:
- 1
- Beds:
- 3
- Baths:
- 2
- Half baths:
- 1
- Garage spaces:
- 2
- Facing direction:
- Northeast
Construction details
- Builder Name:
- Shea Homes
- Completion Date:
- February, 2026
- Year Built:
- 2025
- Roof:
- Composition Roofing
Home features & finishes
- Appliances:
- Sprinkler System
- Construction Materials:
- Brick
- Cooling:
- Ceiling Fan(s)
- Flooring:
- Carpet FlooringTile Flooring
- Foundation Details:
- Slab
- Garage/Parking:
- GarageAttached Garage
- Home amenities:
- ENERGY STAR CertifiedGreen Construction
- Interior Features:
- Ceiling-High
- Kitchen:
- DishwasherMicrowave OvenOvenDisposalGas CooktopQuartz countertopGas Oven
- Laundry facilities:
- DryerWasher
- Property amenities:
- Cul-de-sacBackyardOutdoor Living
- Rooms:
- Primary Bedroom On MainKitchenPrimary Bedroom Downstairs

Get a consultation with our New Homes Expert
- See how your home builds wealth
- Plan your home-buying roadmap
- Discover hidden gems
Utility information
- Heating:
- Electric Heating, Water Heater
- Utilities:
- HVAC
- Water source:
- Public

Community details
Evergreen 40' at Evergreen
by Shea Homes, Conroe, TX
- 6 homes
- 9 plans
- 1,500 - 2,506 sqft
View Evergreen 40' details
More homes in Evergreen 40'
- Home at address 16323 Placid Stream St, Conroe, TX 77302

Plan 3019 Elevation A
$344,990
- 3 bd
- 2 ba
- 1,624 sqft
16323 Placid Stream St, Conroe, TX 77302
- Home at address 13111 Hidden Village Ct, Conroe, TX 77302

3019 Elevation B
$354,990
- 3 bd
- 2 ba
- 1,624 sqft
13111 Hidden Village Ct, Conroe, TX 77302
- Home at address 13045 Brookwood Bend Ln, Conroe, TX 77302

Plan 3029 Elevation B
$357,990
- 3 bd
- 2 ba
- 1,714 sqft
13045 Brookwood Bend Ln, Conroe, TX 77302
- Home at address 12849 Meadow Wind Wy, Conroe, TX 77302

3034 Elevation A
$364,990
- 3 bd
- 2.5 ba
- 1,856 sqft
12849 Meadow Wind Wy, Conroe, TX 77302
- Home at address 16538 Cub Creek Ct, Conroe, TX 77302

3049 Elevation A
$398,990
- 4 bd
- 3 ba
- 2,367 sqft
16538 Cub Creek Ct, Conroe, TX 77302
Floor plans in Evergreen 40'
About the builder - Shea Homes
Neighborhood
Home address
- City:
- Conroe
- County:
- Montgomery
- Zip Code:
- 77302
Schools in Conroe Independent School District
GreatSchools’ Summary Rating calculation is based on 4 of the school’s themed ratings, including test scores, student/academic progress, college readiness, and equity. This information should only be used as a reference. Jome is not affiliated with GreatSchools and does not endorse or guarantee this information. Please reach out to schools directly to verify all information and enrollment eligibility. Data provided by GreatSchools.org © 2025
Places of interest
Getting around
Air quality

Considering this home?
Our expert will guide your tour, in-person or virtual
Need more information?
Text or call (888) 545-5198
Financials
Estimated monthly payment
Let us help you find your dream home
How many bedrooms are you looking for?
Similar homes nearby
Recently added communities in this area
Nearby communities in Conroe
New homes in nearby cities
More New Homes in Conroe, TX
Shea Homes, MLS 35037819
Copyright © 2025, Houston Realtors Information Service, Inc. The information provided is exclusively for consumers’ personal, non-commercial use, and may not be used for any purpose other than to identify prospective properties consumers may be interested in purchasing. Information is deemed reliable but not guaranteed. All information provided should be independently verified.
Read moreLast checked Apr 21, 2:50 pm
- Jome
- New homes search
- Texas
- Greater Houston Area
- Montgomery County
- Conroe
- Evergreen 40'
- 16542 Cub Creek Ct, Conroe, TX 77302
































