














Book your tour. Save an average of $18,473. We'll handle the rest.
- Confirmed tours
- Get matched & compare top deals
- Expert help, no pressure
- No added fees
Estimated value based on Jome data, T&C apply













Why tour with Jome?
- No pressure toursTour at your own pace with no sales pressure
- Expert guidanceGet insights from our home buying experts
- Exclusive accessSee homes and deals not available elsewhere
Jome is featured in
- Single-Family
- Ready by February 2026
- $169.28/sqft
- $50/monthly HOA
Home description
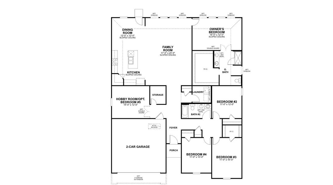
Discover this stunning new construction home at 19917 Schatz Way in Manor, Texas. Situated in a welcoming neighborhood, this home offers comfortable living with convenient access to local parks, recreational amenities, and everyday conveniences.
Key Features:
• 5 bedrooms with owner’s suite in its own private corner
• 3 full bathrooms with modern fixtures and finishes
• Open-concept kitchen, dining, and family areas
• 2,422 square feet of thoughtfully designed living space
• Covered outdoor area ideal for relaxing or entertaining
The thoughtfully planned floorplan maximizes both functionality and comfort. The owner’s suite on the main level provides privacy and convenience, while the additional bedrooms offer flexible space for family, guests, or a home office. The open-concept layout creates a bright, inviting atmosphere for daily living and entertaining.
Neighborhood & Location Benefits:
• Close to local parks and recreational facilities
• Family-friendly community with peaceful surroundings
• Easy access to shopping, dining, and nearby amenities
Schedule your private tour today and experience the comfort and quality of this newly constructed Manor home.
May also be listed on the M/I Homes website
Information last verified by Jome: Today at 5:35 AM (January 19, 2026)
Home highlights
Mixed‑use retail and entertainment center north of Austin with shops, dining, live events and walkable energy.
Book your tour. Save an average of $18,473. We'll handle the rest.
We collect exclusive builder offers, book your tours, and support you from start to housewarming.
- Confirmed tours
- Get matched & compare top deals
- Expert help, no pressure
- No added fees
Estimated value based on Jome data, T&C apply
Home details
- Property status:
- Under construction
- Lot size (acres):
- 0.17
- Size:
- 2,422 sqft
- Stories:
- 1
- Beds:
- 5
- Baths:
- 3
- Garage spaces:
- 2
- Fence:
- Wood Fence, Privacy Fence
- Facing direction:
- Northeast
Construction details
- Builder Name:
- M/I Homes
- Completion Date:
- February, 2026
- Year Built:
- 2025
- Roof:
- Shingle Roofing
Home features & finishes
- Appliances:
- Exhaust FanExhaust Fan Vented
- Construction Materials:
- CementBrick
- Cooling:
- Central Air
- Flooring:
- Vinyl FlooringCarpet FlooringTile Flooring
- Foundation Details:
- Slab
- Garage/Parking:
- GarageFront Entry Garage/ParkingAttached Garage
- Home amenities:
- Green Construction
- Interior Features:
- Ceiling-HighWalk-In ClosetFoyerPantryStorageBreakfast BarDouble Vanity
- Kitchen:
- DishwasherMicrowave OvenDisposalStainless Steel AppliancesGas CooktopSelf Cleaning OvenKitchen IslandGas OvenKitchen Range
- Laundry facilities:
- DryerUtility/Laundry Room
- Lighting:
- Exterior LightingLighting
- Property amenities:
- BackyardYardPorch
- Rooms:
- Primary Bedroom On MainKitchenDining RoomFamily RoomBreakfast AreaOpen Concept FloorplanPrimary Bedroom Downstairs
- Security system:
- Smoke DetectorCarbon Monoxide Detector

Get a consultation with our New Homes Expert
- See how your home builds wealth
- Plan your home-buying roadmap
- Discover hidden gems
Utility information
- Heating:
- Zoned Heating, Water Heater, Central Heating, Gas Heating, Tankless water heater
- Utilities:
- Electricity Available, Natural Gas Available, Underground Utilities, Internet Cable, Internet-Fiber, Phone Available, HVAC, Cable Available, Sewer Available, Water Available

Community details
Carillon at Carillon
by M/I Homes, Manor, TX
- 23 homes
- 14 plans
- 1,829 - 3,739 sqft
View Carillon details
Community amenities
- Grill Area
- Common Grounds
- Dog Park
- Playground
- Club House
- Community Pool
- Park Nearby
- BBQ Area
- Picnic Area
- Cluster Mailbox
- Sidewalks Available
- High Speed Internet Access
More homes in Carillon
- Home at address 13709 Warnock Trl, Manor, TX 78653

Arlington
$434,990
- 5 bd
- 3 ba
- 2,812 sqft
13709 Warnock Trl, Manor, TX 78653
- Home at address 20008 Schatz Wy, Manor, TX 78653

Lavon
$489,990
- 5 bd
- 3 ba
- 2,781 sqft
20008 Schatz Wy, Manor, TX 78653
Floor plans in Carillon
About the builder - M/I Homes

- 128communities on Jome
- 1,825homes on Jome
Neighborhood
Home address
Schools in Manor Independent School District
- Grades KG-06Publicmanor rise academy2.1 mi10335 hwy 290 ena
- Grades M-MPublicnew pre-k center3.2 mi600 e parsonsna
GreatSchools’ Summary Rating calculation is based on 4 of the school’s themed ratings, including test scores, student/academic progress, college readiness, and equity. This information should only be used as a reference. Jome is not affiliated with GreatSchools and does not endorse or guarantee this information. Please reach out to schools directly to verify all information and enrollment eligibility. Data provided by GreatSchools.org © 2025
Places of interest
Getting around
Air quality

Considering this home?
Our expert will guide your tour, in-person or virtual
Need more information?
Text or call (888) 486-2818
Financials
Estimated monthly payment
Let us help you find your dream home
How many bedrooms are you looking for?
Similar homes nearby
Recently added communities in this area
Nearby communities in Manor
New homes in nearby cities
More New Homes in Manor, TX
- Jome
- New homes search
- Texas
- Greater Austin Area
- Travis County
- Manor
- Carillon
- 19917 Schatz Wy, Manor, TX 78653



























