





Book your tour. Save an average of $18,473. We'll handle the rest.
- Confirmed tours
- Get matched & compare top deals
- Expert help, no pressure
- No added fees
Estimated value based on Jome data, T&C apply
Why tour with Jome?
- No pressure toursTour at your own pace with no sales pressure
- Expert guidanceGet insights from our home buying experts
- Exclusive accessSee homes and deals not available elsewhere
Jome is featured in
- Single-Family
- Quick move-in
- $160.46/sqft
- $675/annual HOA
Home description
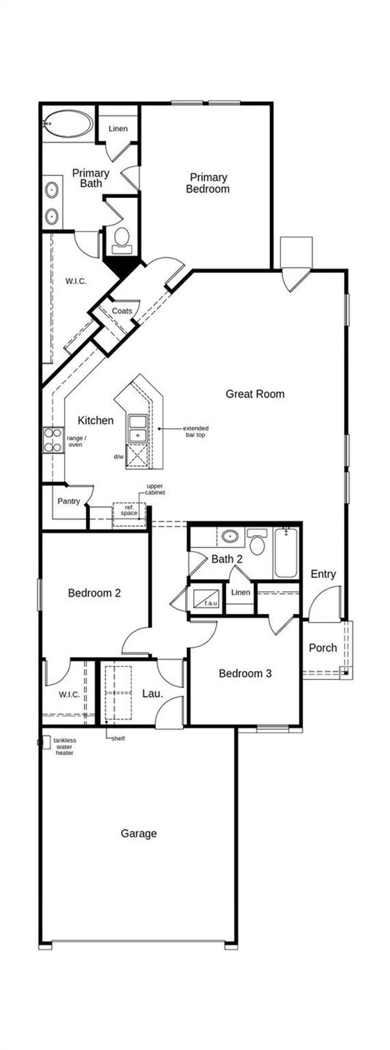
KB HOME UNDER CONSTRUCTION – Welcome home to 2768 Grace Landing Drive, perfectly situated in the beautiful community of Grace Landing and zoned to Willis ISD! This charming one-story sits on a lot with no back neighbors and home offers 3 bedrooms, 2 full baths, and an attached 2-car garage, blending style and functionality in every detail. The inviting kitchen is designed for both everyday living and entertaining, showcasing stainless steel Whirlpool appliances, Woodmont cabinetry, granite countertops, and an added breakfast bar for extra seating. The primary suite features dual vanities and elegant finishes that create a spa-like feel. Enjoy gorgeous vinyl plank flooring throughout the main living areas, 2" smooth faux wood blinds, and SmartKey entry door hardware for added convenience. The outdoor space comes with front gutters and an extended rear patio— Don’t miss the opportunity to make this stunning new home yours—schedule your private showing today!
KB Home Houston, MLS 47735023
May also be listed on the KB Home website
Information last verified by Jome: Yesterday at 2:35 AM (December 6, 2025)
Home highlights
Book your tour. Save an average of $18,473. We'll handle the rest.
We collect exclusive builder offers, book your tours, and support you from start to housewarming.
- Confirmed tours
- Get matched & compare top deals
- Expert help, no pressure
- No added fees
Estimated value based on Jome data, T&C apply
Home details
- Property status:
- Move-in ready
- Size:
- 1,548 sqft
- Stories:
- 1
- Beds:
- 3
- Baths:
- 2
- Garage spaces:
- 2
Construction details
- Builder Name:
- KB Home
- Year Built:
- 2025
- Roof:
- Composition Roofing
Home features & finishes
- Construction Materials:
- CementBrick
- Flooring:
- Vinyl FlooringCarpet FlooringTile Flooring
- Foundation Details:
- Slab
- Garage/Parking:
- GarageAttached Garage
- Home amenities:
- Green Construction
- Interior Features:
- Walk-In ClosetPantryBreakfast BarWindow Coverings
- Kitchen:
- Range-Free StandingDishwasherOvenDisposalGas CooktopGas OvenKitchen Range
- Laundry facilities:
- DryerWasher
- Lighting:
- Lighting
- Property amenities:
- BarDeckBackyardPatio
- Rooms:
- Primary Bedroom On MainKitchenPrimary Bedroom Downstairs
Utility information
- Heating:
- Water Heater, Gas Heating

Community details
Grace Landing
by KB Home, Willis, TX
- 3 homes
- 7 plans
- 1,042 - 1,908 sqft
View Grace Landing details
More homes in Grace Landing
Floor plans in Grace Landing
About the builder - KB Home
Neighborhood
Home address
- City:
- Willis
- County:
- Montgomery
- Zip Code:
- 77378
Schools in Willis Independent School District
- Grades PK-12Privatecovenant christian school3.0 mi4503 interstate 45 nna
- Grades PK-12Privatecalvary baptist school3.2 mi3401 n frazier stna
GreatSchools’ Summary Rating calculation is based on 4 of the school’s themed ratings, including test scores, student/academic progress, college readiness, and equity. This information should only be used as a reference. Jome is not affiliated with GreatSchools and does not endorse or guarantee this information. Please reach out to schools directly to verify all information and enrollment eligibility. Data provided by GreatSchools.org © 2025
Places of interest
Getting around
Air quality
Natural hazards risk
Climate hazards can impact homes and communities, with risks varying by location. These scores reflect the potential impact of natural disasters and climate-related risks on Montgomery County
Provided by FEMA

Considering this home?
Our expert will guide your tour, in-person or virtual
Need more information?
Text or call (888) 486-2818
Financials
Estimated monthly payment
Similar homes nearby
Recently added communities in this area
Nearby communities in Willis
New homes in nearby cities
More New Homes in Willis, TX
KB Home Houston, MLS 47735023
Copyright © 2025, Houston Realtors Information Service, Inc. The information provided is exclusively for consumers’ personal, non-commercial use, and may not be used for any purpose other than to identify prospective properties consumers may be interested in purchasing. Information is deemed reliable but not guaranteed. All information provided should be independently verified.
Read moreLast checked Dec 6, 8:50 pm
- Home
- New homes
- Texas
- Greater Houston Area
- Montgomery County
- Willis
- Grace Landing
- 2768 Grace Landing Dr, Willis, TX 77378
































