





Book your tour. Save an average of $18,473. We'll handle the rest.
- Confirmed tours
- Get matched & compare top deals
- Expert help, no pressure
- No added fees
Estimated value based on Jome data, T&C apply
- 4 bd
- 3.5 ba
- 3,021 sqft
4121 Trellis Dr, Celina, TX 75078
Why tour with Jome?
- No pressure toursTour at your own pace with no sales pressure
- Expert guidanceGet insights from our home buying experts
- Exclusive accessSee homes and deals not available elsewhere
Jome is featured in
- Single-Family
- Ready by February 2026
- $282.72/sqft
- $148/monthly HOA
Home description
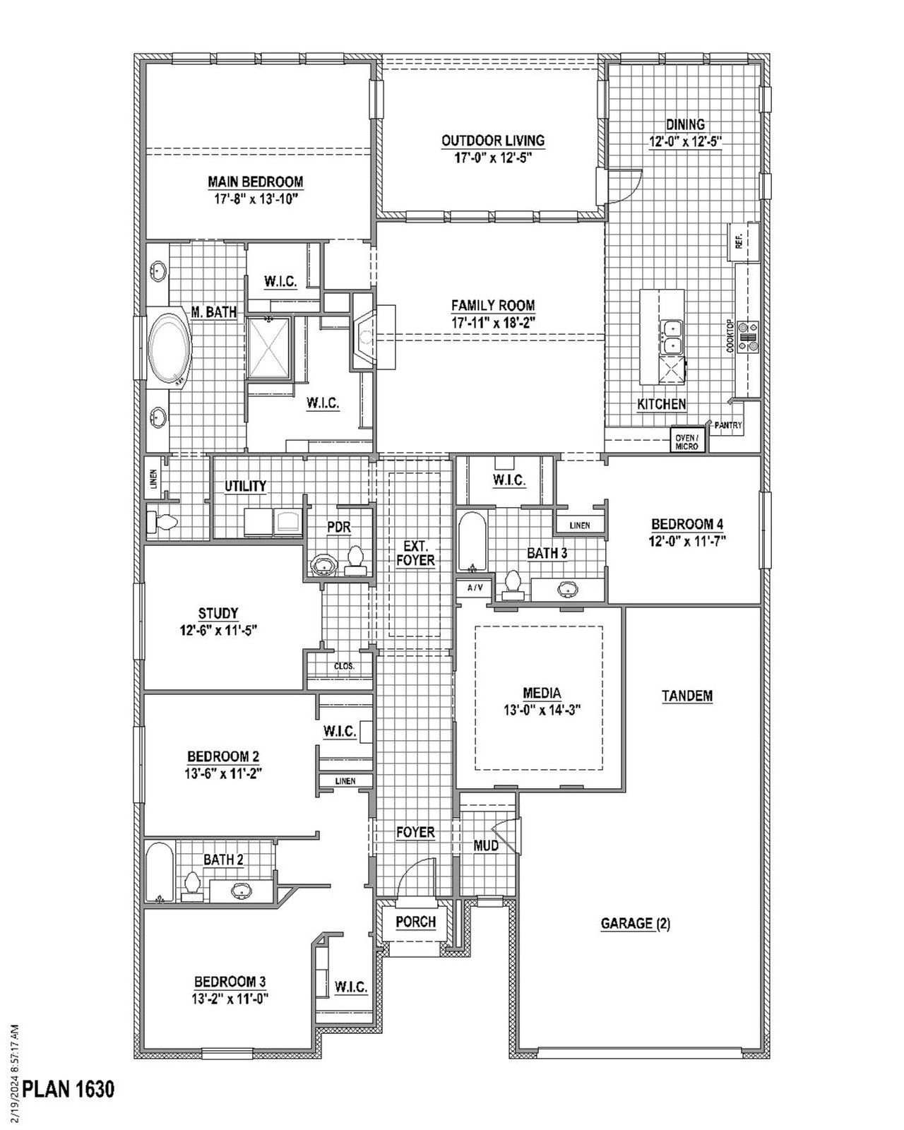
This stunning four-bedroom, one-story home has it all, a media room, home office, open kitchen and dining with a private main suite in the back of the house. As you enter the foyer, you will find two and three bedrooms along with their shared full bathroom. Across the hall is the media room that is next to the mud room off the garage. Towards the end of the foyer is the spacious home office, powder bathroom and laundry room. The family room is complete with a fireplace and a wall of windows that faces the outdoor living space. This flows into the kitchen and dining area. Bedroom four is located off the living room with its own full bathroom and walk-in closet. The secluded main bedroom includes a large bathroom with dual vanities, walk-in shower, bathtub and two walk-in closets. The outdoor living space is great for the grilling chef to entertain. The 3-car tandem garage is a plus!
May also be listed on the American Legend Homes website
Information last verified by Jome: Yesterday at 11:23 AM (December 6, 2025)
Home highlights
Book your tour. Save an average of $18,473. We'll handle the rest.
We collect exclusive builder offers, book your tours, and support you from start to housewarming.
- Confirmed tours
- Get matched & compare top deals
- Expert help, no pressure
- No added fees
Estimated value based on Jome data, T&C apply
Home details
- Property status:
- Under construction
- Lot width (feet):
- 60
- Size:
- 3,021 sqft
- Stories:
- 1
- Beds:
- 4
- Baths:
- 3
- Half baths:
- 1
- Garage spaces:
- 3
Construction details
- Builder Name:
- American Legend Homes
- Completion Date:
- February, 2026
Home features & finishes
- Garage/Parking:
- GarageAttached Garage
- Interior Features:
- Walk-In Closet
- Laundry facilities:
- Utility/Laundry Room
- Property amenities:
- BasementPatioPorch
- Rooms:
- Primary Bedroom On MainKitchenGame RoomMedia RoomOffice/StudyDining RoomFamily RoomPrimary Bedroom Downstairs

Community details
Mosaic 60s at Mosaic
by American Legend Homes, Celina, TX
- 4 homes
- 15 plans
- 2,759 - 4,330 sqft
View Mosaic 60s details
More homes in Mosaic 60s
Floor plans in Mosaic 60s
About the builder - American Legend Homes
Neighborhood
Home address
Schools in Prosper Independent School District
GreatSchools’ Summary Rating calculation is based on 4 of the school’s themed ratings, including test scores, student/academic progress, college readiness, and equity. This information should only be used as a reference. Jome is not affiliated with GreatSchools and does not endorse or guarantee this information. Please reach out to schools directly to verify all information and enrollment eligibility. Data provided by GreatSchools.org © 2025
Places of interest
Getting around
Air quality
Natural hazards risk
Climate hazards can impact homes and communities, with risks varying by location. These scores reflect the potential impact of natural disasters and climate-related risks on Denton County
Provided by FEMA

Considering this home?
Our expert will guide your tour, in-person or virtual
Need more information?
Text or call (888) 486-2818
Financials
Estimated monthly payment
Similar homes nearby
Recently added communities in this area
Nearby communities in Celina
New homes in nearby cities
More New Homes in Celina, TX
- Home
- New homes
- Texas
- Dallas-Fort Worth Area
- Denton County
- Celina
- Mosaic 60s
- 4121 Trellis Dr, Celina, TX 75078


































