














Book your tour. Save an average of $18,473. We'll handle the rest.
- Confirmed tours
- Get matched & compare top deals
- Expert help, no pressure
- No added fees
Estimated value based on Jome data, T&C apply


























Why tour with Jome?
- No pressure toursTour at your own pace with no sales pressure
- Expert guidanceGet insights from our home buying experts
- Exclusive accessSee homes and deals not available elsewhere
Jome is featured in
- Single-Family
- Quick move-in
- $176.18/sqft
- $123/quarterly HOA
Home description
About this home
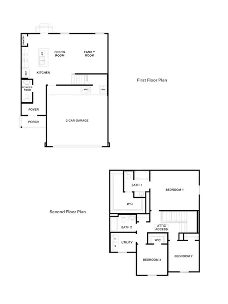
The Davis is one of our two-story floorplans available at Ladera in Luling, Texas. 310 Wild Goose is a home that offers 3 bedrooms, 2.5 bathrooms and a 2-car garage across 1,470 square feet of modern living space. Our homes in Ladera feature a board and batten exterior, and the Davis is available in 2 exterior options.
Step inside the home from the front porch and pass through the foyer to the kitchen, dining and family room. This open concept living space will become the central hub of your home, a place where many memories will be made. The kitchen features an island with a stainless-steel sink, quartz countertops, 42’ upper ‘picture frame’ cabinets, a pantry closet, and stainless-steel appliances. A powder room is also located on the first floor.
Moving upstairs, you’ll find all 3 bedrooms, 2 full bathrooms and the utility room. The large primary bedroom includes an attached bathroom. Your morning routine will be a breeze in this private ensuite, which features a walk-in shower, cultured marble vanity with trench sink and an oversized walk-in closet. The secondary bedrooms include a closet with wood shelving. The secondary bathroom features a shower/tub combination and a cultured marble vanity with trench sink.
This home features our America’s Smart Home base package, which includes the Amazon Echo Pop, Video Doorbell, Front Door Deadbolt Lock, Home Hub, Thermostat, and Deako® Smart Switches.
May also be listed on the D.R. Horton website
Information last verified by Jome: Yesterday at 4:02 AM (January 19, 2026)
Book your tour. Save an average of $18,473. We'll handle the rest.
We collect exclusive builder offers, book your tours, and support you from start to housewarming.
- Confirmed tours
- Get matched & compare top deals
- Expert help, no pressure
- No added fees
Estimated value based on Jome data, T&C apply
Home details
- Property status:
- Move-in ready
- Size:
- 1,470 sqft
- Stories:
- 2
- Beds:
- 3
- Baths:
- 2.5
- Garage spaces:
- 2
Construction details
- Builder Name:
- D.R. Horton
Home features & finishes
- Garage/Parking:
- Garage

Get a consultation with our New Homes Expert
- See how your home builds wealth
- Plan your home-buying roadmap
- Discover hidden gems

Community details
Ladera
by D.R. Horton, Luling, TX
- 12 homes
- 6 plans
- 1,156 - 1,892 sqft
View Ladera details
More homes in Ladera
- Home at address 405 Wild Goose Dr, Luling, TX 78648

The Caprock
$219,990
- 3 bd
- 2 ba
- 1,434 sqft
405 Wild Goose Dr, Luling, TX 78648
- Home at address 400 Wild Goose Dr, Luling, TX 78648

The Barton
$219,995
- 3 bd
- 2 ba
- 1,280 sqft
400 Wild Goose Dr, Luling, TX 78648
- Home at address 410 Wild Goose Dr, Luling, TX 78648

The Caprock
$224,990
- 3 bd
- 2 ba
- 1,434 sqft
410 Wild Goose Dr, Luling, TX 78648
- Home at address 500 Wild Goose Dr, Luling, TX 78648

The Emma
$229,990
- 4 bd
- 2 ba
- 1,572 sqft
500 Wild Goose Dr, Luling, TX 78648
- Home at address 401 Wild Goose Dr, Luling, TX 78648

The Emma
$229,990
- 4 bd
- 2 ba
- 1,572 sqft
401 Wild Goose Dr, Luling, TX 78648
- Home at address 406 Wild Goose Dr, Luling, TX 78648

The Davis
$229,990
- 3 bd
- 2.5 ba
- 1,470 sqft
406 Wild Goose Dr, Luling, TX 78648
Floor plans in Ladera
About the builder - D.R. Horton

- 1,201communities on Jome
- 9,103homes on Jome
Neighborhood
Home address
Schools in Luling Independent School District
GreatSchools’ Summary Rating calculation is based on 4 of the school’s themed ratings, including test scores, student/academic progress, college readiness, and equity. This information should only be used as a reference. Jome is not affiliated with GreatSchools and does not endorse or guarantee this information. Please reach out to schools directly to verify all information and enrollment eligibility. Data provided by GreatSchools.org © 2025
Places of interest
Getting around
Air quality

Considering this home?
Our expert will guide your tour, in-person or virtual
Need more information?
Text or call (888) 486-2818
Financials
Estimated monthly payment
Let us help you find your dream home
How many bedrooms are you looking for?
Similar homes nearby
Recently added communities in this area
Nearby communities in Luling
New homes in nearby cities
More New Homes in Luling, TX
- Jome
- New homes search
- Texas
- Caldwell County
- Luling
- Ladera
- 310 Wild Goose Dr, Luling, TX 78648































