
















- 4 bd
- 3 ba
- 2,106 sqft
7437 Sunset Valley Ln, Denton, TX 76249
- Single-Family
- $168.56/sqft
- $780/annual HOA
- 0.15-acre lot
New Homes for Sale Near 7437 Sunset Valley Ln, Denton, TX 76249
About this Home
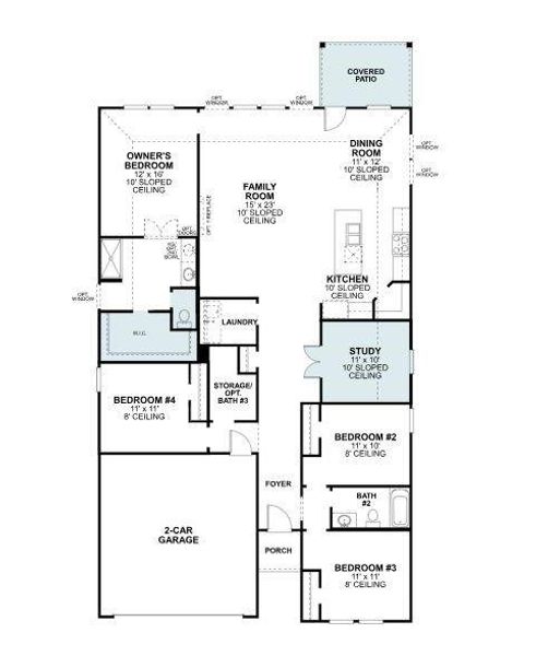
Discover this stunning new construction home at 7437 Sunset Valley Lane in Ponder, Texas, built by M-I Homes. This thoughtfully designed 4-bedroom, 3-bathroom home offers a comfortable living space with an open-concept layout perfect for daily life and entertaining.
Key features include:
Study
Open-concept living space
Quartz kitchen countertops
Covered patio
Owner's en-suite bathroom
The home's design emphasizes functionality and comfort, with the open-concept floorplan creating an inviting atmosphere for both relaxation and gatherings.
Located in the desirable Ponder area, this home sits in a neighborhood known for its peaceful atmosphere and proximity to local parks, offering residents easy access to outdoor recreation and green spaces. The quality design elements throughout showcase attention to detail and craftsmanship.
As a new construction home, buyers will enjoy the peace of mind that comes with brand-new systems, fixtures, and finishes. This home represents an excellent opportunity to own a beautifully crafted residence in a sought-after location. Schedule a visit today!
Escape Realty, MLS 21090733
May also be listed on the M/I Homes website
Information last verified by Jome: Today at 1:36 AM (May 30, 2026)
Home details
- Property status:
- Sold
- Lot size (acres):
- 0.15
- Size:
- 2,106 sqft
- Stories:
- 1
- Beds:
- 4
- Baths:
- 3
- Garage spaces:
- 2
- Fence:
- Wood Fence
Construction details
- Builder Name:
- M/I Homes
- Year Built:
- 2025
- Roof:
- Roof Gutter, Composition Roofing
Home features & finishes
- Appliances:
- Exhaust Fan VentedSprinkler System
- Construction Materials:
- Brick
- Cooling:
- Ceiling Fan(s)Central Air
- Flooring:
- Ceramic FlooringCarpet FlooringTile Flooring
- Foundation Details:
- Slab
- Garage/Parking:
- Door OpenerGarageFront Entry Garage/ParkingAttached Garage
- Home amenities:
- Green Construction
- Interior Features:
- Walk-In ClosetWindow Coverings
- Kitchen:
- DishwasherMicrowave OvenWater FilterDisposalGas CooktopGranite countertopKitchen IslandGas OvenKitchen Range
- Laundry facilities:
- DryerStackable Washer/DryerUtility/Laundry Room
- Lighting:
- LightingDecorative/Designer Lighting
- Property amenities:
- Trees on propertyLandscapingPatioYardPorch
- Rooms:
- Primary Bedroom On MainOpen Concept FloorplanPrimary Bedroom Downstairs
- Security system:
- Smoke DetectorCarbon Monoxide Detector
Utility information
- Heating:
- Water Heater, Central Heating, Gas Heating, Tankless water heater
- Utilities:
- Underground Utilities, HVAC, City Water System, Individual Water Meter, Individual Gas Meter, High Speed Internet Access, Cable TV, Curbs

Community details
Meadow Park
by M/I Homes, Ponder, TX
- 14 homes
- 24 plans
- 1,349 - 2,869 sqft
View Meadow Park details
Community amenities
- Playground
- Community Pool
- Sidewalks Available
- Greenbelt View
- Walking, Jogging, Hike Or Bike Trails
More homes in Meadow Park
- Home at address 7424 Sunset Valley Ln, Ponder, TX 76259

$364,990
Under construction- 4 bd
- 2 ba
- 1,898 sqft
7424 Sunset Valley Ln, Ponder, TX 76259
- Home at address 7520 Lavender Ln, Ponder, TX 76259
Savings$369,990
Move-in ready- 4 bd
- 2 ba
- 2,029 sqft
7520 Lavender Ln, Ponder, TX 76259
- Home at address 7429 Sunset Valley Ln, Ponder, TX 76259
Savings$384,990
Under construction- 4 bd
- 2 ba
- 2,029 sqft
7429 Sunset Valley Ln, Ponder, TX 76259
- Home at address 7528 Lavender Ln, Ponder, TX 76259

$386,834
Under construction- 4 bd
- 2 ba
- 1,898 sqft
7528 Lavender Ln, Ponder, TX 76259
- Home at address 7433 Sunset Valley Ln, Ponder, TX 76259

$394,990
Under construction- 4 bd
- 3 ba
- 2,184 sqft
7433 Sunset Valley Ln, Ponder, TX 76259
- Home at address 7509 Lavender Ln, Ponder, TX 76259

$415,094
Under construction- 4 bd
- 3 ba
- 2,106 sqft
7509 Lavender Ln, Ponder, TX 76259
Floor plans in Meadow Park
- View details for Periwinkle - 30' Smart Series

Periwinkle - 30' Smart Series
$316,990+- 4 bd
- 2 ba
- 1,756 sqft
- View details for Sanpiper - 30' Smart Series

Sanpiper - 30' Smart Series
$334,990+- 4 bd
- 2.5 ba
- 2,160 sqft
About the builder - M/I Homes

- 141communities on Jome
- 1,729homes on Jome
Neighborhood
Home address
Schools in Krum Independent School District
GreatSchools’ Summary Rating calculation is based on 4 of the school’s themed ratings, including test scores, student/academic progress, college readiness, and equity. This information should only be used as a reference. Jome is not affiliated with GreatSchools and does not endorse or guarantee this information. Please reach out to schools directly to verify all information and enrollment eligibility. Data provided by GreatSchools.org © 2025
Places of interest
Getting around
Air quality
Noise level
A Soundscore™ rating is a number between 50 (very loud) and 100 (very quiet) that tells you how loud a location is due to environmental noise.
Financials
Nearby communities in Denton
Homes in Denton Neighborhoods
Homes in Denton by M/I Homes
Recently added communities in this area
Other Builders in Denton, TX
Nearby sold homes
New homes in nearby cities
More New Homes in Denton, TX
Escape Realty, MLS 21090733
IDX information is provided exclusively for personal, non-commercial use, and may not be used for any purpose other than to identify prospective properties consumers may be interested in purchasing. You may not reproduce or redistribute this data, it is for viewing purposes only. This data is deemed reliable, but is not guaranteed accurate by the MLS or NTREIS.
Read moreLast checked May 30, 4:00 am
- Jome
- New homes search
- Texas
- Dallas-Fort Worth Area
- Denton County
- Denton
- Meadow Park
- 7437 Sunset Valley Ln, Denton, TX 76249

































































