




Book your tour. Save an average of $18,473. We'll handle the rest.
- Confirmed tours
- Get matched & compare top deals
- Expert help, no pressure
- No added fees
Estimated value based on Jome data, T&C apply
Why tour with Jome?
- No pressure toursTour at your own pace with no sales pressure
- Expert guidanceGet insights from our home buying experts
- Exclusive accessSee homes and deals not available elsewhere
Jome is featured in
- Single-Family
- Quick move-in
- $182.02/sqft
- $1,032/annual HOA
Home description
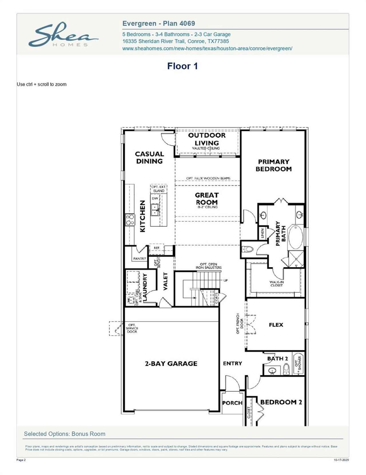
With a lofted game room open below, this flexible two-story layout works well for families. The deep primary WIC and the covered patio nestled between the great room and primary suite make the footprint feel luxurious. Features include classy French doors in the study and extended outdoor living for watching the beautiful Texas sunset. All new Shea homes are EnergyStar Certified and come with smart home technology, stainless steel gas appliances, and a one-year warranty. Evergreen is Shea Homes Houston's largest master planned community, and combines gorgeous woodland landscapes with state-of-the-art amenities designed to bring families and neighbors together. Walk the winding trails, relax in the resort-style pool, and put down roots in a space that's all your own.
Shea Homes, MLS 78552697
May also be listed on the Shea Homes website
Information last verified by Jome: Today at 8:50 AM (December 19, 2025)
Home highlights
Book your tour. Save an average of $18,473. We'll handle the rest.
We collect exclusive builder offers, book your tours, and support you from start to housewarming.
- Confirmed tours
- Get matched & compare top deals
- Expert help, no pressure
- No added fees
Estimated value based on Jome data, T&C apply
Home details
- Property status:
- Move-in ready
- Lot size (acres):
- 0.16
- Size:
- 2,692 sqft
- Stories:
- 2
- Beds:
- 5
- Baths:
- 4
- Garage spaces:
- 2
- Facing direction:
- Southwest
Construction details
- Builder Name:
- Shea Homes
- Completion Date:
- February, 2026
- Year Built:
- 2025
- Roof:
- Composition Roofing
Home features & finishes
- Appliances:
- Sprinkler System
- Construction Materials:
- BrickStone
- Cooling:
- Ceiling Fan(s)
- Flooring:
- Carpet FlooringTile Flooring
- Foundation Details:
- Slab
- Garage/Parking:
- GarageAttached Garage
- Home amenities:
- Green Construction
- Interior Features:
- Ceiling-High
- Kitchen:
- DishwasherMicrowave OvenOvenDisposalGas CooktopElectric Oven
- Laundry facilities:
- DryerWasher
- Lighting:
- Lighting
- Property amenities:
- Backyard
Utility information
- Heating:
- Electric Heating, Water Heater
- Utilities:
- HVAC

Community details
Evergreen 50' at Evergreen
by Shea Homes, Conroe, TX
- 7 homes
- 11 plans
- 1,802 - 2,697 sqft
View Evergreen 50' details
Community amenities
- Energy Efficient
More homes in Evergreen 50'
Floor plans in Evergreen 50'
About the builder - Shea Homes
Neighborhood
Home address
- City:
- Conroe
- County:
- Montgomery
- Zip Code:
- 77302
Schools in Conroe Independent School District
GreatSchools’ Summary Rating calculation is based on 4 of the school’s themed ratings, including test scores, student/academic progress, college readiness, and equity. This information should only be used as a reference. Jome is not affiliated with GreatSchools and does not endorse or guarantee this information. Please reach out to schools directly to verify all information and enrollment eligibility. Data provided by GreatSchools.org © 2025
Places of interest
Getting around
Air quality
Natural hazards risk
Climate hazards can impact homes and communities, with risks varying by location. These scores reflect the potential impact of natural disasters and climate-related risks on Montgomery County
Provided by FEMA

Considering this home?
Our expert will guide your tour, in-person or virtual
Need more information?
Text or call (888) 486-2818
Financials
Estimated monthly payment
Similar homes nearby
Recently added communities in this area
Nearby communities in Conroe
New homes in nearby cities
More New Homes in Conroe, TX
Shea Homes, MLS 78552697
Copyright © 2025, Houston Realtors Information Service, Inc. The information provided is exclusively for consumers’ personal, non-commercial use, and may not be used for any purpose other than to identify prospective properties consumers may be interested in purchasing. Information is deemed reliable but not guaranteed. All information provided should be independently verified.
Read moreLast checked Dec 19, 8:50 am
- Jome
- New homes search
- Texas
- Greater Houston Area
- Montgomery County
- Conroe
- Evergreen 50'
- 15983 Mahogany Mist Dr, Conroe, TX 77302

































