














Book your tour. Save an average of $18,473. We'll handle the rest.
- Confirmed tours
- Get matched & compare top deals
- Expert help, no pressure
- No added fees
Estimated value based on Jome data, T&C apply

















- 4 bd
- 3 ba
- 2,922 sqft
31118 Marlow Manor Ct, Fulshear, TX 77441
Why tour with Jome?
- No pressure toursTour at your own pace with no sales pressure
- Expert guidanceGet insights from our home buying experts
- Exclusive accessSee homes and deals not available elsewhere
Jome is featured in
- Single-Family
- Quick move-in
- $162.42/sqft
- $1,550/annual HOA
Home description
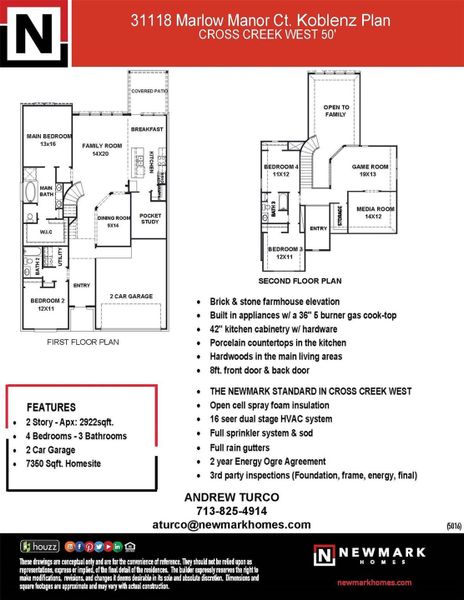
END OF YEAR SAVINGS! New Construction NEWMARK HOME in the prestigous CROSS CREEK WEST community. The grand 4 bedroom w/ 2 down & 3 bath 50' KOBLENZ has a high curb brick & stone elevation! Stop by today to see the high ceiling masterpiece in person. Luxury hardwoods in the main areas and designer inspired charms throughout. Step into your culinary sanctuary, adorned with porcelain countertops, stacked cabinetry, and built in SS appliances that makes every meal feel like a celebration. The pocket study nestled right off the kitchen is the perfect space to get work done. Natural light & layers of comfort come together in the dreamy main bedroom. Head up the rounded staircase to the entertainment hotspot. Designed for pure enjoyment, the all-in-one game & media room brings together interactive entertainment & luxury. Valuable ENERGY SAVING standards include spray foam insulation, a tankless hot water heater, 16 seer hvac system. a full sprinkler system & full gutters are included.
Newmark Homes, MLS 48707695
May also be listed on the Newmark Homes website
Information last verified by Jome: Yesterday at 8:50 PM (December 19, 2025)
Home highlights
Major Houston business hub home to energy giants, top jobs, and master-planned communities with greenbelt access.
Book your tour. Save an average of $18,473. We'll handle the rest.
We collect exclusive builder offers, book your tours, and support you from start to housewarming.
- Confirmed tours
- Get matched & compare top deals
- Expert help, no pressure
- No added fees
Estimated value based on Jome data, T&C apply
Home details
- Property status:
- Move-in ready
- Lot size (acres):
- 0.17
- Size:
- 2,922 sqft
- Stories:
- 2
- Beds:
- 4
- Baths:
- 3
- Garage spaces:
- 2
Construction details
- Builder Name:
- Newmark Homes
- Year Built:
- 2025
- Roof:
- Composition Roofing
Home features & finishes
- Appliances:
- Sprinkler System
- Construction Materials:
- CementBrickStone
- Flooring:
- Wood FlooringCarpet FlooringTile Flooring
- Foundation Details:
- Slab
- Garage/Parking:
- GarageAttached Garage
- Home amenities:
- Green Construction
- Interior Features:
- Ceiling-HighWalk-In ClosetFoyerPantryBreakfast BarWalk-In Pantry
- Kitchen:
- DishwasherMicrowave OvenOvenDisposalGas CooktopConvection OvenKitchen IslandElectric Oven
- Laundry facilities:
- DryerWasherUtility/Laundry Room
- Lighting:
- Lighting
- Property amenities:
- Cul-de-sacBarBackyardCabinetsYard
- Rooms:
- KitchenFamily RoomBreakfast AreaPrimary Bedroom Downstairs
Utility information
- Heating:
- Water Heater, Gas Heating
- Utilities:
- HVAC

Community details
Cross Creek West 50' at Cross Creek West
by Newmark Homes, Fulshear, TX
- 11 homes
- 16 plans
- 2,185 - 3,200 sqft
View Cross Creek West 50' details
More homes in Cross Creek West 50'
Floor plans in Cross Creek West 50'
About the builder - Newmark Homes
Neighborhood
Home address
Schools in Lamar Consolidated Independent School District
- Grades M-MPublicwillie melton sr elementary1.9 mi2880 jordan ranch blvdna
- Grades M-MPublicviola gilmore randle elementary1.9 mi5902 sycamore ranch lnna
GreatSchools’ Summary Rating calculation is based on 4 of the school’s themed ratings, including test scores, student/academic progress, college readiness, and equity. This information should only be used as a reference. Jome is not affiliated with GreatSchools and does not endorse or guarantee this information. Please reach out to schools directly to verify all information and enrollment eligibility. Data provided by GreatSchools.org © 2025
Places of interest
Getting around
Air quality
Natural hazards risk
Climate hazards can impact homes and communities, with risks varying by location. These scores reflect the potential impact of natural disasters and climate-related risks on Fort Bend County
Provided by FEMA

Considering this home?
Our expert will guide your tour, in-person or virtual
Need more information?
Text or call (888) 486-2818
Financials
Estimated monthly payment
Similar homes nearby
Recently added communities in this area
Nearby communities in Fulshear
New homes in nearby cities
More New Homes in Fulshear, TX
Newmark Homes, MLS 48707695
Copyright © 2025, Houston Realtors Information Service, Inc. The information provided is exclusively for consumers’ personal, non-commercial use, and may not be used for any purpose other than to identify prospective properties consumers may be interested in purchasing. Information is deemed reliable but not guaranteed. All information provided should be independently verified.
Read moreLast checked Dec 19, 8:50 pm
- Jome
- New homes search
- Texas
- Greater Houston Area
- Fort Bend County
- Fulshear
- Cross Creek West 50'
- 31118 Marlow Manor Ct, Fulshear, TX 77441








































