














Book your tour. Save an average of $18,473. We'll handle the rest.
- Confirmed tours
- Get matched & compare top deals
- Expert help, no pressure
- No added fees
Estimated value based on Jome data, T&C apply
















- 4 bd
- 3.5 ba
- 3,002 sqft
31114 Marlow Manor Ct, Fulshear, TX 77441
Why tour with Jome?
- No pressure toursTour at your own pace with no sales pressure
- Expert guidanceGet insights from our home buying experts
- Exclusive accessSee homes and deals not available elsewhere
Jome is featured in
- Single-Family
- Quick move-in
- $184.58/sqft
- $1,550/annual HOA
Home description
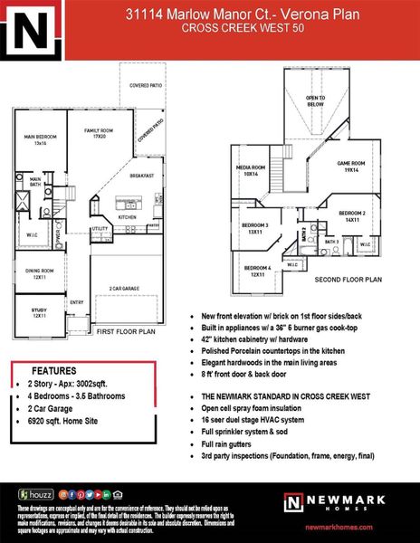
NEWMARK HOMES is back at it with another 2 story masterpiece in CROSS CREEK WEST. The high value VERONA has 4 bedrooms & 3.5 baths. The grand front elevation has tons of architectural appeal. The family room features a vaulted ceiling & wall of windows overlooking the spacious backyard! The mainstream kitchen offers an abundance of storage space with stacked cabinetry & is brought together w/ glossy porcelain countertops. The HUGE covered patio is ready to become your favorite entertainment hotspot outfitted with a gas line. The show stopping main suite has a cutting edge design features that compliment the large mud-set shower perfectly. The expansive upstairs has a large game room & private media room. Spray foam insulation, a tankless hot water heater, a full sprinkler system, full rain gutters are just a few of the included standard features.
Newmark Homes, MLS 98795075
May also be listed on the Newmark Homes website
Information last verified by Jome: Yesterday at 2:35 AM (February 1, 2026)
Book your tour. Save an average of $18,473. We'll handle the rest.
We collect exclusive builder offers, book your tours, and support you from start to housewarming.
- Confirmed tours
- Get matched & compare top deals
- Expert help, no pressure
- No added fees
Estimated value based on Jome data, T&C apply
Home details
- Property status:
- Move-in ready
- Lot size (acres):
- 0.16
- Size:
- 3,002 sqft
- Stories:
- 2
- Beds:
- 4
- Baths:
- 3
- Half baths:
- 1
- Garage spaces:
- 2

Floor plan details
Cross Creek West: Verona
- 4 bd
- 3.5 ba
- 2,989 sqft
View Cross Creek West: Verona details
Construction details
- Builder Name:
- Newmark Homes
- Year Built:
- 2026
- Roof:
- Composition Roofing
Home features & finishes
- Appliances:
- Sprinkler System
- Construction Materials:
- CementBrick
- Flooring:
- Wood FlooringCarpet FlooringTile Flooring
- Foundation Details:
- Slab
- Garage/Parking:
- GarageAttached Garage
- Home amenities:
- ENERGY STAR CertifiedGreen Construction
- Interior Features:
- Ceiling-HighWalk-In ClosetPantryBreakfast BarWalk-In Pantry
- Kitchen:
- DishwasherMicrowave OvenOvenDisposalGas CooktopConvection OvenKitchen IslandElectric Oven
- Laundry facilities:
- DryerWasherUtility/Laundry Room
- Lighting:
- Lighting
- Property amenities:
- Cul-de-sacBarBackyardPots & Pans DrawersCabinetsPatioYard
- Rooms:
- KitchenGame RoomMedia RoomDining RoomFamily RoomLiving RoomBreakfast AreaPrimary Bedroom Downstairs

Get a consultation with our New Homes Expert
- See how your home builds wealth
- Plan your home-buying roadmap
- Discover hidden gems
Utility information
- Heating:
- Water Heater, Gas Heating
- Utilities:
- HVAC

Community details
Cross Creek West 50' at Cross Creek West
by Newmark Homes, Fulshear, TX
- 10 homes
- 16 plans
- 2,185 - 3,200 sqft
View Cross Creek West 50' details
More homes in Cross Creek West 50'
- Home at address 4419 Sweet Ashlyn St, Fulshear, TX 77441

Nice
$449,295
- 4 bd
- 3.5 ba
- 2,740 sqft
4419 Sweet Ashlyn St, Fulshear, TX 77441
- Home at address 31202 Anna Meadows Dr, Fulshear, TX 77441

Roosevelt
$484,956
- 4 bd
- 3.5 ba
- 2,971 sqft
31202 Anna Meadows Dr, Fulshear, TX 77441
- Home at address 31155 Marlow Manor Ct, Fulshear, TX 77441

Roosevelt
$499,684
- 4 bd
- 3.5 ba
- 2,938 sqft
31155 Marlow Manor Ct, Fulshear, TX 77441
- Home at address 31119 Marlow Manor Ct, Fulshear, TX 77441

Strasburg
$499,825
- 4 bd
- 3.5 ba
- 3,156 sqft
31119 Marlow Manor Ct, Fulshear, TX 77441
- Home at address 31127 Marlow Manor Ct, Fulshear, TX 77441

Heidelberg
$549,375
- 5 bd
- 4.5 ba
- 2,833 sqft
31127 Marlow Manor Ct, Fulshear, TX 77441
- Home at address 31106 Marlow Manor Ct, Fulshear, TX 77441

Strasburg
$574,300
- 4 bd
- 3.5 ba
- 2,987 sqft
31106 Marlow Manor Ct, Fulshear, TX 77441
Floor plans in Cross Creek West 50'
About the builder - Newmark Homes
Neighborhood
Home address
Schools in Lamar Consolidated Independent School District
- Grades M-MPublicwillie melton sr elementary1.8 mi2880 jordan ranch blvdna
- Grades M-MPublicviola gilmore randle elementary1.9 mi5902 sycamore ranch lnna
GreatSchools’ Summary Rating calculation is based on 4 of the school’s themed ratings, including test scores, student/academic progress, college readiness, and equity. This information should only be used as a reference. Jome is not affiliated with GreatSchools and does not endorse or guarantee this information. Please reach out to schools directly to verify all information and enrollment eligibility. Data provided by GreatSchools.org © 2025
Places of interest
Getting around
Air quality

Considering this home?
Our expert will guide your tour, in-person or virtual
Need more information?
Text or call (888) 486-2818
Financials
Estimated monthly payment
Let us help you find your dream home
How many bedrooms are you looking for?
Similar homes nearby
Recently added communities in this area
Nearby communities in Fulshear
New homes in nearby cities
More New Homes in Fulshear, TX
Newmark Homes, MLS 98795075
Copyright © 2025, Houston Realtors Information Service, Inc. The information provided is exclusively for consumers’ personal, non-commercial use, and may not be used for any purpose other than to identify prospective properties consumers may be interested in purchasing. Information is deemed reliable but not guaranteed. All information provided should be independently verified.
Read moreLast checked Feb 2, 2:50 pm
- Jome
- New homes search
- Texas
- Greater Houston Area
- Fort Bend County
- Fulshear
- Cross Creek West 50'
- 31114 Marlow Manor Ct, Fulshear, TX 77441


































