













Book your tour. Save an average of $18,473. We'll handle the rest.
We collect exclusive builder offers, book your tours, and support you from start to housewarming.
- Confirmed tours
- Get matched & compare top deals
- Expert help, no pressure
- No added fees
Estimated value based on Jome data, T&C apply
Why tour with Jome?
- No pressure toursTour at your own pace with no sales pressure
- Expert guidanceGet insights from our home buying experts
- Exclusive accessSee homes and deals not available elsewhere
Jome is featured in
- Townhouse
- $240.34/sqft
- $425/quarterly HOA
- East facing
Home description
Beazer Homes' brand new 2 story townhome floorplans! All built by America's #1 Energy Efficient Homebuilder with high end features throughout! Gas appliances, Gas heating & water heaters, REV Wood flooring in the downstairs living area, 42 inch Cabinets, 2 inch Blinds included, Buyers experience our Design Studio to create their dream home as long as under contract prior to slab! Brick and Stone exteriors, Spray Foam Insulation, Branded Dupont Tyvek home weatherization system, top of the line Broan Fresh Air system, 2x6 Exterior Walls. Waterbend Euless is at the northwest corner of Hwy 360 and Hwy 183 in the City of Euless providing lucky residents easy access to major employers, DFW Airport, major sporting and entertainment event venues, area lakes, shopping and the great HEB School District. Future onsite Amenity Center, walking trails and future retail area.
RE/MAX DFW Associates, MLS 21083810
May also be listed on the Beazer Homes website
Information last verified by Jome: Yesterday at 1:32 AM (March 7, 2026)
Book your tour. Save an average of $18,473. We'll handle the rest.
We collect exclusive builder offers, book your tours, and support you from start to housewarming.
- Confirmed tours
- Get matched & compare top deals
- Expert help, no pressure
- No added fees
Estimated value based on Jome data, T&C apply
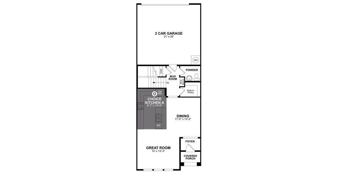
Home details
- Property status:
- Pending/Under contract
- Collection:
- Waterbend: Ivy 22'
- Lot size (acres):
- 0.06
- Lot width (feet):
- 22
- Size:
- 1,887 sqft
- Stories:
- 2
- Beds:
- 3
- Baths:
- 2
- Half baths:
- 1
- Garage spaces:
- 2
- Facing direction:
- East
Construction details
- Builder Name:
- Beazer Homes
- Completion Date:
- July, 2026
- Year Built:
- 2026
- Roof:
- Roof Gutter, Composition Roofing
Home features & finishes
- Appliances:
- Sprinkler System
- Construction Materials:
- CementBrickRockStone
- Cooling:
- Central Air
- Flooring:
- Ceramic FlooringWood FlooringCarpet FlooringTile Flooring
- Foundation Details:
- Slab
- Garage/Parking:
- Door OpenerGarageCovered Garage/ParkingRear Entry Garage/ParkingAttached Garage
- Home amenities:
- ENERGY STAR CertifiedGreen Construction
- Interior Features:
- Walk-In ClosetFoyerPantry
- Kitchen:
- DishwasherMicrowave OvenGas CooktopElectric Oven
- Laundry facilities:
- Utility/Laundry Room
- Lighting:
- Decorative/Designer Lighting
- Property amenities:
- Trees on propertyLandscapingCovered PorchElectric FireplacePatioPorch
- Rooms:
- KitchenPowder RoomMudroomDining RoomFamily RoomOpen Concept FloorplanPrimary Bedroom Upstairs

Get a consultation with our New Homes Expert
- See how your home builds wealth
- Plan your home-buying roadmap
- Discover hidden gems
Utility information
- Heating:
- Central Heating, Gas Heating
- Utilities:
- HVAC, City Water System, High Speed Internet Access, Cable TV, Curbs

Community details
Waterbend
by Beazer Homes, Euless, TX
- 1 home
- 10 plans
- 1,785 - 2,943 sqft
View Waterbend details
More homes in Waterbend
- Home at address 327 Bluestem Dr, Euless, TX 76039

Harvard
Waterbend: Ivy 22'
$429,990
- 3 bd
- 2.5 ba
- 1,785 sqft
327 Bluestem Dr, Euless, TX 76039
Floor plans in Waterbend
About the builder - Beazer Homes
Neighborhood
Home address
Schools in Hurst-Euless-Bedford Independent School District
GreatSchools’ Summary Rating calculation is based on 4 of the school’s themed ratings, including test scores, student/academic progress, college readiness, and equity. This information should only be used as a reference. Jome is not affiliated with GreatSchools and does not endorse or guarantee this information. Please reach out to schools directly to verify all information and enrollment eligibility. Data provided by GreatSchools.org © 2025
Places of interest
Getting around
Air quality
Noise level
A Soundscore™ rating is a number between 50 (very loud) and 100 (very quiet) that tells you how loud a location is due to environmental noise.

Considering this home?
Our expert will guide your tour, in-person or virtual
Need more information?
Text or call (888) 488-9243
Financials
Estimated monthly payment
Let us help you find your dream home
How many bedrooms are you looking for?
Similar homes nearby
Recently added communities in this area
Nearby communities in Euless
New homes in nearby cities
More New Homes in Euless, TX
RE/MAX DFW Associates, MLS 21083810
IDX information is provided exclusively for personal, non-commercial use, and may not be used for any purpose other than to identify prospective properties consumers may be interested in purchasing. You may not reproduce or redistribute this data, it is for viewing purposes only. This data is deemed reliable, but is not guaranteed accurate by the MLS or NTREIS.
Read moreLast checked Mar 7, 10:00 pm
- Jome
- New homes search
- Texas
- Dallas-Fort Worth Area
- Tarrant County
- Euless
- Waterbend
- Waterbend: Ivy 22'
- 325 Bluestem Dr, Euless, TX 76039



























