














Book your tour. Save an average of $18,473. We'll handle the rest.
We collect exclusive builder offers, book your tours, and support you from start to housewarming.
- Confirmed tours
- Get matched & compare top deals
- Expert help, no pressure
- No added fees
Estimated value based on Jome data, T&C apply

Why tour with Jome?
- No pressure toursTour at your own pace with no sales pressure
- Expert guidanceGet insights from our home buying experts
- Exclusive accessSee homes and deals not available elsewhere
Jome is featured in
- Single-Family
- Quick move-in
- $128.2/sqft
- 158 days on Jome
Home description
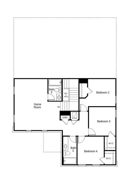
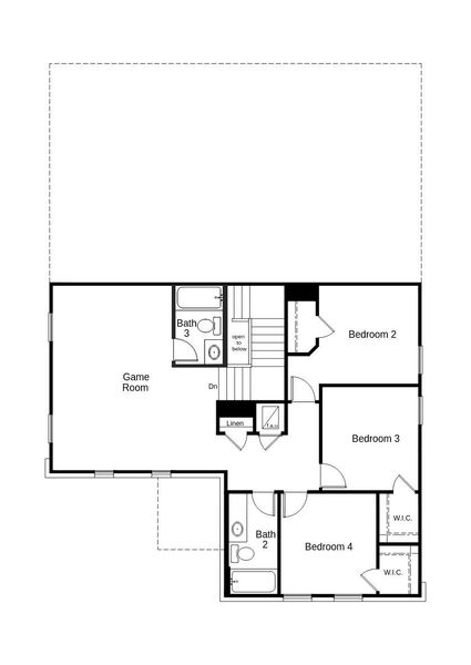
This gorgeous, two-story home showcases an open floor plan with stylish luxury vinyl plank flooring and a spacious great room for entertaining. A den provides space for a home office or private retreat. The kitchen boasts Shaker-style upper cabinets, sleek tile backsplash and Silestone® countertops in Blanco Maple. Unwind in the first-floor primary bedroom, which features plush carpeting, a walk-in closet and connecting bath that offers a dual-sink vanity and tub/shower combination with tile backsplash. Upstairs, a versatile game room awaits. Additional highlights include a smart thermostat, timeless Sherwin-Williams® interior paint and modern Moen® fixtures throughout.
May also be listed on the KB Home website
Information last verified by Jome: Today at 12:59 AM (March 3, 2026)
Book your tour. Save an average of $18,473. We'll handle the rest.
We collect exclusive builder offers, book your tours, and support you from start to housewarming.
- Confirmed tours
- Get matched & compare top deals
- Expert help, no pressure
- No added fees
Estimated value based on Jome data, T&C apply
Home details
- Property status:
- Move-in ready
- Size:
- 2,500 sqft
- Stories:
- 2
- Beds:
- 4
- Baths:
- 3.5
- Garage spaces:
- 2
Construction details
- Builder Name:
- KB Home
Home features & finishes
- Garage/Parking:
- Garage

Get a consultation with our New Homes Expert
- See how your home builds wealth
- Plan your home-buying roadmap
- Discover hidden gems

Community details
Hidden Trails
by KB Home, Belton, TX
- 5 homes
- 6 plans
- 1,271 - 2,880 sqft
View Hidden Trails details
More homes in Hidden Trails
- Home at address 1933 Jadd St, Belton, TX 76513

Home
$258,886
- 4 bd
- 2 ba
- 1,675 sqft
1933 Jadd St, Belton, TX 76513
Floor plans in Hidden Trails
About the builder - KB Home
Neighborhood
Home address
Schools in Belton Independent School District
- Grades 11-12Publicbelton new tech high school at waskow1.7 mi320 n blairna
- Grades M-MPublichubbard branch elementary1.7 mi400 n wallna
GreatSchools’ Summary Rating calculation is based on 4 of the school’s themed ratings, including test scores, student/academic progress, college readiness, and equity. This information should only be used as a reference. Jome is not affiliated with GreatSchools and does not endorse or guarantee this information. Please reach out to schools directly to verify all information and enrollment eligibility. Data provided by GreatSchools.org © 2025
Places of interest
Getting around
Air quality
Noise level
A Soundscore™ rating is a number between 50 (very loud) and 100 (very quiet) that tells you how loud a location is due to environmental noise.

Considering this home?
Our expert will guide your tour, in-person or virtual
Need more information?
Text or call (888) 488-9243
Financials
Estimated monthly payment
Let us help you find your dream home
How many bedrooms are you looking for?
Similar homes nearby
Recently added communities in this area
Nearby communities in Belton
New homes in nearby cities
More New Homes in Belton, TX
- Jome
- New homes search
- Texas
- Bell County
- Belton
- Hidden Trails
- 703 Ryan St, Belton, TX 76513






























