







































- 4 bd
- 3 ba
- 3,441 sqft
5833 Trigg Dr, Westworth Village, TX 76114
- Single-Family
- $225.23/sqft
- 0.17-acre lot
- 114 days on Jome
New Homes for Sale Near 5833 Trigg Dr, Westworth Village, TX 76114
About this Home
$10K credit towards buyer's closing costs. Just down the street from the fast-growing and highly sought-after River Bend District, this stunning new home offers a perfect blend of craftsmanship, luxury, and energy efficiency. From the moment you arrive, the striking 8-foot iron door and high ceilings set the tone for the sophistication inside.
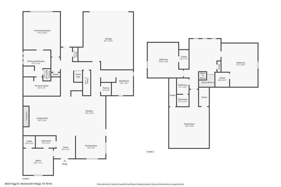
As you enter, to the left you’ll find one of four bedrooms—complete with its own en-suite bath and walk-in closet—ideal as a private guest suite or office. To the right, the formal dining area is bathed in natural light from a large picture window overlooking freshly planted azaleas, creating an elegant yet inviting space for gatherings.
At the heart of the home, the chef’s kitchen impresses with quartz countertops, a custom island with soft-close cabinets, walk-in pantry, and a full Thor appliance package, including a 48-inch gas range. Through an 8-foot mahogany door just off the kitchen is a private courtyard, thoughtfully designed with a gas line already in place for an outdoor kitchen—perfect for al fresco dining and entertaining.
The living room is a showpiece, anchored by an 6-foot fireplace and designed to host both intimate family nights and lively get-togethers. The primary suite is a true retreat, featuring a spa-inspired bathroom with frameless glass rain shower, large soaking tub, and carefully chosen finishes that create a serene atmosphere.
Upstairs, two additional bedrooms, a full bath, and a spacious bonus room offer flexibility for a game room, home theater, or fitness studio.
In addition to luxury finishes, this home is thoughtfully built for efficiency and resilience. It includes spray foam insulation, a tankless recirculating water heater, insulated garage door, and a Tesla charging station. Gas line installed at the rear of the home for a future backup generator, ensuring comfort and peace of mind.
Perpetual Realty Group LLC, MLS 21063138
Information last verified by Jome: Today at 1:47 AM (January 16, 2026)
Home details
- Property status:
- Sold
- Lot size (acres):
- 0.17
- Size:
- 3,441 sqft
- Stories:
- 2
- Beds:
- 4
- Baths:
- 3
- Garage spaces:
- 2
- Fence:
- Wood Fence
Construction details
- Year Built:
- 2025
- Roof:
- Composition Roofing, Shingle Roofing
Home features & finishes
- Construction Materials:
- CedarCementBrick
- Flooring:
- Ceramic FlooringCarpet FlooringTile Flooring
- Foundation Details:
- Slab
- Garage/Parking:
- Door OpenerGarageRear Entry Garage/ParkingAttached GarageCar Charging Stations
- Home amenities:
- Green Construction
- Interior Features:
- PantryDouble Vanity
- Kitchen:
- DishwasherMicrowave OvenOvenRefrigeratorGas CooktopConvection OvenKitchen IslandGas OvenKitchen RangeDouble Oven
- Property amenities:
- Electric Fireplace
- Rooms:
- Kitchen
Utility information
- Heating:
- Water Heater, Gas Heating, Tankless water heater
- Utilities:
- Electricity Available, Natural Gas Available, HVAC, City Water System
Neighborhood
Home address
- City:
- Westworth Village
- County:
- Tarrant
- Zip Code:
- 76114
Schools in Fort Worth Independent School District
GreatSchools’ Summary Rating calculation is based on 4 of the school’s themed ratings, including test scores, student/academic progress, college readiness, and equity. This information should only be used as a reference. Jome is not affiliated with GreatSchools and does not endorse or guarantee this information. Please reach out to schools directly to verify all information and enrollment eligibility. Data provided by GreatSchools.org © 2025
Places of interest
Getting around
Air quality
Natural hazards risk
Provided by FEMA
Financials
Nearby communities in Westworth Village
Recently added communities in this area
Other Builders in Westworth Village, TX
Nearby sold homes
New homes in nearby cities
More New Homes in Westworth Village, TX
Perpetual Realty Group LLC, MLS 21063138
IDX information is provided exclusively for personal, non-commercial use, and may not be used for any purpose other than to identify prospective properties consumers may be interested in purchasing. You may not reproduce or redistribute this data, it is for viewing purposes only. This data is deemed reliable, but is not guaranteed accurate by the MLS or NTREIS.
Read moreLast checked Jan 16, 10:00 am
- Jome
- New homes search
- Texas
- Dallas-Fort Worth Area
- Tarrant County
- Westworth Village
- 5833 Trigg Dr, Westworth Village, TX 76114























































