








Book your tour. Save an average of $18,473. We'll handle the rest.
We collect exclusive builder offers, book your tours, and support you from start to housewarming.
- Confirmed tours
- Get matched & compare top deals
- Expert help, no pressure
- No added fees
Estimated value based on Jome data, T&C apply






































- 5 bd
- 4 ba
- 3,766 sqft
99 Kay Ln, Westworth Village, TX 76114
Why tour with Jome?
- No pressure toursTour at your own pace with no sales pressure
- Expert guidanceGet insights from our home buying experts
- Exclusive accessSee homes and deals not available elsewhere
Jome is featured in
- Single-Family
- Quick move-in
- $265.52/sqft
- 0.22-acre lot
Home description
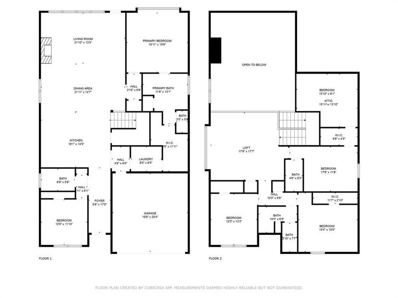
New Price in the highly sought-after community of Westworth Falls—an exceptional opportunity you won’t want to miss. Experience luxury living in this brand-new 5-bedroom, 4-bathroom home. Thoughtfully designed and meticulously finished, this home blends upscale comfort with modern elegance across a spacious, open-concept floor plan. Beautiful hardwood floors flow throughout the main living areas, anchored by a cozy gas fireplace surrounded by marble that adds warmth and sophistication to the central living space. The showstopping kitchen features high-end quartz countertops, custom cabinetry, and premium stainless steel appliances—a perfect setting for entertaining or everyday living. The luxurious primary suite includes a spa-inspired soaking tub with dual vanities and a generous walk-in closet. A versatile flex space with built-in dry bar offers the ideal setup for a home office, media room, or lounge. Additional highlights include an oversized 2-car garage featuring 2 EV outlets, and energy-efficient systems. Outside, the private backyard offers the perfect canvas for your dream outdoor living area to create your own private oasis. This home offers private access to the Westworth Common space featuring a park, green space, The Waterfalls and Trinity Trails. Located just minutes from downtown Fort Worth, top-tier dining and shopping, this home in Westworth Falls delivers both exclusivity and convenience. Crafted for those who value quality, comfort, and design—this is where luxury lives and won't last long! Don't forget to check out the 3D Walkthrough.
Mission To Close, MLS 21046358
Information last verified by Jome: Today at 1:12 AM (April 22, 2026)
Home highlights
Book your tour. Save an average of $18,473. We'll handle the rest.
We collect exclusive builder offers, book your tours, and support you from start to housewarming.
- Confirmed tours
- Get matched & compare top deals
- Expert help, no pressure
- No added fees
Estimated value based on Jome data, T&C apply
Home details
- Property status:
- Move-in ready
- Lot size (acres):
- 0.22
- Size:
- 3,766 sqft
- Stories:
- 2
- Beds:
- 5
- Baths:
- 4
- Garage spaces:
- 2
- Fence:
- Wood Fence, Privacy Fence, Rock/Stone Fence
Construction details
- Year Built:
- 2025
- Roof:
- Metal Roofing, Composition Roofing
Home features & finishes
- Appliances:
- Exhaust Fan VentedSprinkler System
- Construction Materials:
- BrickRockStone
- Cooling:
- Ceiling Fan(s)Central Air
- Flooring:
- Ceramic FlooringWood FlooringCarpet FlooringTile Flooring
- Foundation Details:
- SlabBrick/MortarStone
- Garage/Parking:
- Door OpenerGarageAttached Garage
- Home amenities:
- ENERGY STAR Certified
- Interior Features:
- Ceiling-VaultedWalk-In ClosetPantryBay WindowsLoftDouble Vanity
- Kitchen:
- Wine RefrigeratorDishwasherOvenDisposalGas CooktopConvection OvenGranite countertopKitchen IslandGas OvenKitchen RangeDouble OvenElectric Oven
- Laundry facilities:
- DryerWasherUtility/Laundry Room
- Lighting:
- Decorative/Designer Lighting
- Property amenities:
- Trees on propertyBarGas Log FireplaceBackyardPatioFireplacePorch
- Rooms:
- KitchenFamily RoomLiving RoomOpen Concept Floorplan
- Security system:
- Carbon Monoxide Detector

Get a consultation with our New Homes Expert
- See how your home builds wealth
- Plan your home-buying roadmap
- Discover hidden gems
Utility information
- Heating:
- Water Heater, Central Heating, Gas Heating, Tankless water heater
- Utilities:
- Natural Gas Available, City Water System, Individual Gas Meter, High Speed Internet Access, Cable TV
Community amenities
- Playground
- Gated Community
- Sidewalks Available
- Walking, Jogging, Hike Or Bike Trails
Neighborhood
Home address
- City:
- Westworth Village
- County:
- Tarrant
- Zip Code:
- 76114
Schools in Fort Worth Independent School District
GreatSchools’ Summary Rating calculation is based on 4 of the school’s themed ratings, including test scores, student/academic progress, college readiness, and equity. This information should only be used as a reference. Jome is not affiliated with GreatSchools and does not endorse or guarantee this information. Please reach out to schools directly to verify all information and enrollment eligibility. Data provided by GreatSchools.org © 2025
Places of interest
Getting around
Air quality
Noise level
A Soundscore™ rating is a number between 50 (very loud) and 100 (very quiet) that tells you how loud a location is due to environmental noise.
Natural hazards risk
Provided by FEMA

Considering this home?
Our expert will guide your tour, in-person or virtual
Need more information?
Text or call (888) 545-5198
Financials
Estimated monthly payment
Let us help you find your dream home
How many bedrooms are you looking for?
Similar homes nearby
Recently added communities in this area
Nearby communities in Westworth Village
New homes in nearby cities
More New Homes in Westworth Village, TX
Mission To Close, MLS 21046358
IDX information is provided exclusively for personal, non-commercial use, and may not be used for any purpose other than to identify prospective properties consumers may be interested in purchasing. You may not reproduce or redistribute this data, it is for viewing purposes only. This data is deemed reliable, but is not guaranteed accurate by the MLS or NTREIS.
Read moreLast checked Apr 22, 10:00 am
- Jome
- New homes search
- Texas
- Dallas-Fort Worth Area
- Tarrant County
- Westworth Village
- 99 Kay Ln, Westworth Village, TX 76114

























