














Book your tour. Save an average of $18,473. We'll handle the rest.
- Confirmed tours
- Get matched & compare top deals
- Expert help, no pressure
- No added fees
Estimated value based on Jome data, T&C apply


















- 3 bd
- 2.5 ba
- 1,470 sqft
117 Wyatt Wy, Jarrell, TX 76537
Why tour with Jome?
- No pressure toursTour at your own pace with no sales pressure
- Expert guidanceGet insights from our home buying experts
- Exclusive accessSee homes and deals not available elsewhere
Jome is featured in
- Single-Family
- Under construction
- $184.39/sqft
- $110/quarterly HOA
Home description
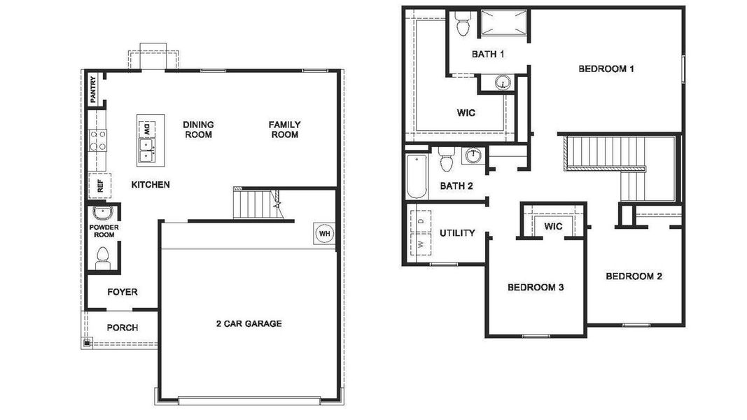
Discover the Davis floorplan at The Villages at Schwertner Ranch, a beautifully designed two-story home with a 2-car garage in Jarrell, Texas, that checks all the boxes. Offering approximately 1,470 sq. ft., this 3-bedroom, 2.5 bath home blends comfort, style and functionality. Step inside, and you’re welcomed by a thoughtfully designed kitchen that flows seamlessly into the open-concept living and dining areas-perfect for both everyday living and entertaining. The kitchen features a spacious island, sleek stainless-steel appliances, and generous counter space to make hosting a breeze. A convenient half-bath is located nearby before you head upstairs.
On the second floor, the primary bedroom awaits, a private retreat with an attached primary bathroom featuring a walk-in shower and a spacious walk-in closet. Two secondary bedrooms and a secondary bathroom share this level, along with the laundry room for easy access.
The Davis floorplan also comes equipped with a smart home package, including a Qolsys smart panel, so you can control and secure your home from your phone or your voice.
With plenty of space, modern conveniences, and a layout designed for how you live, the Davis is ready to welcome you home. Contact us today to learn more!
Nexthome Tropicana Realty, MLS 5439790
May also be listed on the D.R. Horton website
Information last verified by Jome: Today at 6:53 AM (December 7, 2025)
Home highlights
Book your tour. Save an average of $18,473. We'll handle the rest.
We collect exclusive builder offers, book your tours, and support you from start to housewarming.
- Confirmed tours
- Get matched & compare top deals
- Expert help, no pressure
- No added fees
Estimated value based on Jome data, T&C apply
Home details
- Property status:
- Under construction
- Lot size (acres):
- 0.25
- Size:
- 1,470 sqft
- Stories:
- 2
- Beds:
- 3
- Baths:
- 2.5
- Garage spaces:
- 2
- Fence:
- Privacy Fence
- Facing direction:
- Southwest
Construction details
- Builder Name:
- D.R. Horton
- Year Built:
- 2025
- Roof:
- Shingle Roofing
Home features & finishes
- Cooling:
- Ceiling Fan(s)Central Air
- Flooring:
- Carpet FlooringTile Flooring
- Garage/Parking:
- GarageAttached Garage
- Interior Features:
- Foyer
- Property amenities:
- Porch
- Rooms:
- Primary Bedroom On MainPrimary Bedroom Downstairs
- Security system:
- Security System
Utility information
- Heating:
- Central Heating

Community details
The Villages at Schwertner Ranch
by D.R. Horton, Jarrell, TX
- 17 homes
- 13 plans
- 1,156 - 1,892 sqft
View The Villages at Schwertner Ranch details
More homes in The Villages at Schwertner Ranch
Floor plans in The Villages at Schwertner Ranch
About the builder - D.R. Horton
Neighborhood
Home address
- City:
- Jarrell
- County:
- Williamson
- Zip Code:
- 76537
Schools in Jarrell Independent School District
GreatSchools’ Summary Rating calculation is based on 4 of the school’s themed ratings, including test scores, student/academic progress, college readiness, and equity. This information should only be used as a reference. Jome is not affiliated with GreatSchools and does not endorse or guarantee this information. Please reach out to schools directly to verify all information and enrollment eligibility. Data provided by GreatSchools.org © 2025
Places of interest
Getting around
Air quality
Natural hazards risk
Climate hazards can impact homes and communities, with risks varying by location. These scores reflect the potential impact of natural disasters and climate-related risks on Williamson County
Provided by FEMA

Considering this home?
Our expert will guide your tour, in-person or virtual
Need more information?
Text or call (888) 486-2818
Financials
Estimated monthly payment
Similar homes nearby
Recently added communities in this area
Nearby communities in Jarrell
New homes in nearby cities
More New Homes in Jarrell, TX
Nexthome Tropicana Realty, MLS 5439790
Based on information from the Austin Board of REALTORS® (alternatively, from ACTRIS) for the period through 08/13/2024. Neither the Board nor ACTRIS guarantees or is in any way responsible for its accuracy. All data is provided “AS IS” and with all faults. Data maintained by the Board or ACTRIS may not reflect all real estate activity in the market. Information being provided is for consumers’ personal, non-commercial use and may not be used for any purpose other than to identify prospective properties consumers may be interested in purchasing. The Digital Millennium Copyright Act of 1998, 17 U.S.C. § 512 (the “DMCA”) provides recourse for copyright owners who believe that material appearing on the Internet infringes their rights under U.S. copyright law. If you believe in good faith that any content or material made available in connection with our website or services infringes your copyright, you (or your agent) may send us a notice requesting that the content or material be removed, or access to it blocked. Notices must be sent in writing by email to DMCAnotice@MLSGrid.com. The DMCA requires that your notice of alleged copyright infringement include the following information: (1) description of the copyrighted work that is the subject of claimed infringement; (2) description of the alleged infringing content and information sufficient to permit us to locate the content; (3) contact information for you, including your address, telephone number and email address; (4) a statement by you that you have a good faith belief that the content in the manner complained of is not authorized by the copyright owner, or its agent, or by the operation of any law; (5) a statement by you, signed under penalty of perjury, that the information in the notification is accurate and that you have the authority to enforce the copyrights that are claimed to be infringed; and (6) a physical or electronic signature of the copyright owner or a person authorized to act on the copyright owner’s behalf. Failure to include all of the above information may result in the delay of the processing of your complaint.
Read moreLast checked Dec 7, 6:40 am
- Home
- New homes
- Texas
- Greater Austin Area
- Williamson County
- Jarrell
- The Villages at Schwertner Ranch
- 117 Wyatt Wy, Jarrell, TX 76537









































