














Book your tour. Save an average of $18,473. We'll handle the rest.
- Confirmed tours
- Get matched & compare top deals
- Expert help, no pressure
- No added fees
Estimated value based on Jome data, T&C apply
- 5 bd
- 4 ba
- 2,992 sqft
29719 Brushy Gables Dr, Magnolia, TX 77354
Why tour with Jome?
- No pressure toursTour at your own pace with no sales pressure
- Expert guidanceGet insights from our home buying experts
- Exclusive accessSee homes and deals not available elsewhere
Jome is featured in
- Single-Family
- $165.44/sqft
- $1,075/annual HOA
- Northeast facing
Home description
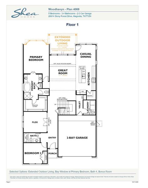
Built by Shea Homes – Est. Completion November 2025 – Built for the way you live, with space to breathe and room to grow. This refined two-story retreat blends elevated design with effortless flow, inviting connection, and quiet in equal measure. The soaring great room opens seamlessly to a chef’s kitchen and casual dining, anchored by an impressive walk-in pantry and unfolding into covered outdoor living ideal for gatherings or quiet evenings under the stars. A serene first-floor primary suite offers a spacious walk-in closet and spa-inspired bath, while upstairs, a versatile game room and additional bedrooms provide space to unwind. Thoughtfully planned with flexibility and function in mind, this is modern living beautifully composed.
Shea Homes, MLS 45074354
May also be listed on the Shea Homes website
Information last verified by Jome: Yesterday at 2:31 AM (December 20, 2025)
Home highlights
Major Houston business hub home to energy giants, top jobs, and master-planned communities with greenbelt access.
Book your tour. Save an average of $18,473. We'll handle the rest.
We collect exclusive builder offers, book your tours, and support you from start to housewarming.
- Confirmed tours
- Get matched & compare top deals
- Expert help, no pressure
- No added fees
Estimated value based on Jome data, T&C apply
Home details
- Property status:
- Pending/Under contract
- Lot size (acres):
- 0.17
- Size:
- 2,992 sqft
- Stories:
- 2
- Beds:
- 5
- Baths:
- 4
- Garage spaces:
- 2
- Facing direction:
- Northeast
Construction details
- Builder Name:
- Shea Homes
- Year Built:
- 2025
- Roof:
- Composition Roofing
Home features & finishes
- Appliances:
- Sprinkler System
- Construction Materials:
- StuccoCement
- Cooling:
- Ceiling Fan(s)
- Flooring:
- Laminate FlooringCarpet FlooringTile Flooring
- Foundation Details:
- Slab
- Garage/Parking:
- GarageAttached Garage
- Home amenities:
- Green Construction
- Interior Features:
- Ceiling-HighWired For SecurityFoyer
- Kitchen:
- DishwasherMicrowave OvenOvenDisposalGas Cooktop
- Laundry facilities:
- DryerWasher
- Property amenities:
- Backyard
Utility information
- Heating:
- Water Heater, Gas Heating
- Utilities:
- HVAC
About the builder - Shea Homes
Neighborhood
Home address
- City:
- Magnolia
- County:
- Montgomery
- Zip Code:
- 77354
Schools in Magnolia Independent School District
GreatSchools’ Summary Rating calculation is based on 4 of the school’s themed ratings, including test scores, student/academic progress, college readiness, and equity. This information should only be used as a reference. Jome is not affiliated with GreatSchools and does not endorse or guarantee this information. Please reach out to schools directly to verify all information and enrollment eligibility. Data provided by GreatSchools.org © 2025
Places of interest
Getting around
Air quality
Natural hazards risk
Climate hazards can impact homes and communities, with risks varying by location. These scores reflect the potential impact of natural disasters and climate-related risks on Montgomery County
Provided by FEMA

Considering this home?
Our expert will guide your tour, in-person or virtual
Need more information?
Text or call (888) 486-2818
Financials
Similar homes nearby
Recently added communities in this area
Nearby communities in Magnolia
New homes in nearby cities
More New Homes in Magnolia, TX
Shea Homes, MLS 45074354
Copyright © 2025, Houston Realtors Information Service, Inc. The information provided is exclusively for consumers’ personal, non-commercial use, and may not be used for any purpose other than to identify prospective properties consumers may be interested in purchasing. Information is deemed reliable but not guaranteed. All information provided should be independently verified.
Read moreLast checked Dec 21, 2:50 am
- Jome
- New homes search
- Texas
- Greater Houston Area
- Montgomery County
- Magnolia
- 29719 Brushy Gables Dr, Magnolia, TX 77354



























