













Book your tour. Save an average of $18,473. We'll handle the rest.
- Confirmed tours
- Get matched & compare top deals
- Expert help, no pressure
- No added fees
Estimated value based on Jome data, T&C apply















Why tour with Jome?
- No pressure toursTour at your own pace with no sales pressure
- Expert guidanceGet insights from our home buying experts
- Exclusive accessSee homes and deals not available elsewhere
Jome is featured in
- Single-Family
- $151.4/sqft
- $595/annual HOA
- 0.14-acre lot
Home description
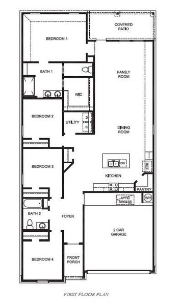
NEW CONSTRUCTION! Welcome to the Gaven floor plan in Riverwood Ranch! This Energy Star Certified, single-story home spans 1,780 sq. ft. with 4 bedrooms, 2 bathrooms, and a 2-car garage. It features Spray Foam Insulation for energy efficiency and a Tankless Water Heater. Inside, you'll find two secondary bedrooms with carpet flooring and tall closets. Between them is the secondary bathroom with vinyl flooring and a tile tub. The open-concept kitchen, family room, and dining room provide a great space for gatherings. The kitchen offers stainless steel appliances, a kitchen island, and tall cabinets. The third secondary bedroom and utility room are nearby. The primary bedroom features backyard views and leads into a primary bathroom with a standing shower, double sinks, and a walk-in closet. Enjoy the outdoors on the covered patio. You'll love the comfort of this home!
D.R. Horton, MLS 28533818
May also be listed on the D.R. Horton website
Information last verified by Jome: Today at 2:31 AM (December 8, 2025)
Home highlights
Book your tour. Save an average of $18,473. We'll handle the rest.
We collect exclusive builder offers, book your tours, and support you from start to housewarming.
- Confirmed tours
- Get matched & compare top deals
- Expert help, no pressure
- No added fees
Estimated value based on Jome data, T&C apply
Home details
- Property status:
- Pending/Under contract
- Lot size (acres):
- 0.14
- Size:
- 1,780 sqft
- Stories:
- 1
- Beds:
- 4
- Baths:
- 2
- Garage spaces:
- 2
Construction details
- Builder Name:
- D.R. Horton
- Year Built:
- 2025
- Roof:
- Composition Roofing
Home features & finishes
- Construction Materials:
- CementBrick
- Flooring:
- Vinyl FlooringCarpet Flooring
- Foundation Details:
- Slab
- Garage/Parking:
- GarageAttached Garage
- Home amenities:
- Green Construction
- Interior Features:
- Walk-In ClosetFoyerPantryBreakfast Bar
- Kitchen:
- DishwasherMicrowave OvenOvenDisposalGas CooktopKitchen IslandGas OvenKitchen Range
- Laundry facilities:
- DryerUtility/Laundry Room
- Property amenities:
- BarBackyardPatioPorch
- Rooms:
- Primary Bedroom On MainKitchenDining RoomFamily RoomOpen Concept FloorplanPrimary Bedroom Downstairs
Utility information
- Heating:
- Gas Heating
- Utilities:
- HVAC

Community details
Riverwood Ranch
by D.R. Horton, Angleton, TX
- 6 homes
- 13 plans
- 1,409 - 2,257 sqft
View Riverwood Ranch details
More homes in Riverwood Ranch
Floor plans in Riverwood Ranch
About the builder - D.R. Horton
Neighborhood
Home address
Schools in Angleton Independent School District
- Grades 05-12Publicbrazoria co juvenile detention0.9 mi1804 county rd 171na
GreatSchools’ Summary Rating calculation is based on 4 of the school’s themed ratings, including test scores, student/academic progress, college readiness, and equity. This information should only be used as a reference. Jome is not affiliated with GreatSchools and does not endorse or guarantee this information. Please reach out to schools directly to verify all information and enrollment eligibility. Data provided by GreatSchools.org © 2025
Places of interest
Getting around
Air quality
Noise level
A Soundscore™ rating is a number between 50 (very loud) and 100 (very quiet) that tells you how loud a location is due to environmental noise.
Natural hazards risk
Climate hazards can impact homes and communities, with risks varying by location. These scores reflect the potential impact of natural disasters and climate-related risks on Brazoria County
Provided by FEMA

Considering this home?
Our expert will guide your tour, in-person or virtual
Need more information?
Text or call (888) 486-2818
Financials
Estimated monthly payment
Similar homes nearby
Recently added communities in this area
Nearby communities in Angleton
New homes in nearby cities
More New Homes in Angleton, TX
D.R. Horton, MLS 28533818
Copyright © 2025, Houston Realtors Information Service, Inc. The information provided is exclusively for consumers’ personal, non-commercial use, and may not be used for any purpose other than to identify prospective properties consumers may be interested in purchasing. Information is deemed reliable but not guaranteed. All information provided should be independently verified.
Read moreLast checked Dec 8, 2:50 am
- Home
- New homes
- Texas
- Greater Houston Area
- Brazoria County
- Angleton
- Riverwood Ranch
- 9 Robin Ct, Angleton, TX 77515



































