








Book your tour. Save an average of $18,473. We'll handle the rest.
We collect exclusive builder offers, book your tours, and support you from start to housewarming.
- Confirmed tours
- Get matched & compare top deals
- Expert help, no pressure
- No added fees
Estimated value based on Jome data, T&C apply









































- 4 bd
- 3 ba
- 2,103 sqft
16944 Jim Sharp Dr, Montgomery, TX 77316
Why tour with Jome?
- No pressure toursTour at your own pace with no sales pressure
- Expert guidanceGet insights from our home buying experts
- Exclusive accessSee homes and deals not available elsewhere
Jome is featured in
- Single-Family
- $149.78/sqft
- $715/annual HOA
- South facing
Home description
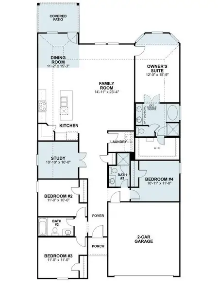
READY NOW! This beautiful home is the Pizarro plan, featuring 4 bedrooms, 3 baths, and 2103 sq ft. It boasts a stunning open-concept layout, a warm and inviting interior, and high, sloped ceilings, making it perfect for entertaining. The spacious living areas, including the kitchen, dining, and family room, are great for gatherings of all sizes. The foyer leads to three additional bedrooms and bathrooms, while the flex room is perfect for a home office. The owner's suite features a bay window with ample space and natural lighting. The owner's bathroom is a luxurious space to enjoy and relax, complete with a walk-in shower, soaking tub, double sink, and an enclosed toilet room. The covered patio is perfect for enjoying your private backyard. Take advantage of this fantastic opportunity! Contact us today to schedule a viewing!
M/I Homes, MLS 22659140
May also be listed on the M/I Homes website
Information last verified by Jome: Yesterday at 2:31 AM (April 24, 2026)
Book your tour. Save an average of $18,473. We'll handle the rest.
We collect exclusive builder offers, book your tours, and support you from start to housewarming.
- Confirmed tours
- Get matched & compare top deals
- Expert help, no pressure
- No added fees
Estimated value based on Jome data, T&C apply
Home details
- Property status:
- Pending/Under contract
- Lot size (acres):
- 0.15
- Size:
- 2,103 sqft
- Stories:
- 1
- Beds:
- 4
- Baths:
- 3
- Garage spaces:
- 2
- Facing direction:
- South

Floor plan details
Pizarro - Smart Series
- 3 bd
- 2 ba
- 2,040 sqft
View Pizarro - Smart Series details
Construction details
- Builder Name:
- M/I Homes
- Completion Date:
- December, 2025
- Year Built:
- 2025
- Roof:
- Composition Roofing
Home features & finishes
- Construction Materials:
- Brick
- Cooling:
- Ceiling Fan(s)
- Flooring:
- Vinyl Flooring
- Foundation Details:
- Slab
- Garage/Parking:
- GarageAttached Garage
- Home amenities:
- Green Construction
- Interior Features:
- Walk-In ClosetPantry
- Kitchen:
- DishwasherMicrowave OvenOvenDisposalGas CooktopKitchen IslandFurnished KitchenGas OvenKitchen Range
- Laundry facilities:
- DryerWasherUtility/Laundry Room
- Property amenities:
- BasementBackyardPorch
- Rooms:
- Flex RoomPrimary Bedroom On MainKitchenDining RoomFamily RoomPrimary Bedroom Downstairs

Get a consultation with our New Homes Expert
- See how your home builds wealth
- Plan your home-buying roadmap
- Discover hidden gems
Utility information
- Heating:
- Gas Heating
- Sewer:
- Public Sewer

Community details
Lone Star Landing
by M/I Homes, Montgomery, TX
- 20 homes
- 45 plans
- 1,061 - 3,788 sqft
View Lone Star Landing details
More homes in Lone Star Landing
- Home at address 16968 Jim Sharp Dr, Montgomery, TX 77316

Boone - Smart Series
Savings$284,990
- 4 bd
- 2 ba
- 1,990 sqft
16968 Jim Sharp Dr, Montgomery, TX 77316
- Home at address 16960 Jim Sharp Dr, Montgomery, TX 77316

Balboa - Smart Series
Savings$319,990
- 4 bd
- 3 ba
- 2,246 sqft
16960 Jim Sharp Dr, Montgomery, TX 77316
- Home at address 10341 Navarro Path, Montgomery, TX 77316

Sanpiper - Smart Series
Savings$322,990
- 4 bd
- 2.5 ba
- 2,107 sqft
10341 Navarro Path, Montgomery, TX 77316
- Home at address 16956 Jim Sharp Dr, Montgomery, TX 77316

Barbosa - Smart Series
Savings$339,990
- 4 bd
- 3 ba
- 2,397 sqft
16956 Jim Sharp Dr, Montgomery, TX 77316
- Home at address 16835 Zavala Wy, Montgomery, TX 77316

Barbosa - Smart Series
Savings$359,990
- 4 bd
- 3 ba
- 2,397 sqft
16835 Zavala Wy, Montgomery, TX 77316
- Home at address 16548 Gaines Glen Ln, Montgomery, TX 77316

Sabine - 50' Premier Smart Series
Savings$549,000
- 4 bd
- 3 ba
- 2,454 sqft
16548 Gaines Glen Ln, Montgomery, TX 77316
Floor plans in Lone Star Landing
- View details for Periwinkle - Smart Series

Periwinkle - Smart Series
Savings$275,740+- 4 bd
- 2 ba
- 1,689 sqft
About the builder - M/I Homes

- 142communities on Jome
- 1,787homes on Jome
Neighborhood
Home address
- City:
- Montgomery
- County:
- Montgomery
- Zip Code:
- 77316
Schools in Montgomery Independent School District
- Grades M-MPubliccreekside elementary4.4 mi20774 eva stna
GreatSchools’ Summary Rating calculation is based on 4 of the school’s themed ratings, including test scores, student/academic progress, college readiness, and equity. This information should only be used as a reference. Jome is not affiliated with GreatSchools and does not endorse or guarantee this information. Please reach out to schools directly to verify all information and enrollment eligibility. Data provided by GreatSchools.org © 2025
Places of interest
Getting around
Air quality
Noise level
A Soundscore™ rating is a number between 50 (very loud) and 100 (very quiet) that tells you how loud a location is due to environmental noise.

Considering this home?
Our expert will guide your tour, in-person or virtual
Need more information?
Text or call (888) 545-5198
Financials
Estimated monthly payment
Let us help you find your dream home
How many bedrooms are you looking for?
Similar homes nearby
Recently added communities in this area
Nearby communities in Montgomery
New homes in nearby cities
More New Homes in Montgomery, TX
M/I Homes, MLS 22659140
Copyright © 2025, Houston Realtors Information Service, Inc. The information provided is exclusively for consumers’ personal, non-commercial use, and may not be used for any purpose other than to identify prospective properties consumers may be interested in purchasing. Information is deemed reliable but not guaranteed. All information provided should be independently verified.
Read moreLast checked Apr 25, 8:50 pm
- Jome
- New homes search
- Texas
- Greater Houston Area
- Montgomery County
- Montgomery
- Lone Star Landing
- 16944 Jim Sharp Dr, Montgomery, TX 77316





























