








Book your tour. Save an average of $18,473. We'll handle the rest.
We collect exclusive builder offers, book your tours, and support you from start to housewarming.
- Confirmed tours
- Get matched & compare top deals
- Expert help, no pressure
- No added fees
Estimated value based on Jome data, T&C apply























- 4 bd
- 2 ba
- 1,475 sqft
2504 Willow Oak Ln, Burleson, TX 76028
Why tour with Jome?
- No pressure toursTour at your own pace with no sales pressure
- Expert guidanceGet insights from our home buying experts
- Exclusive accessSee homes and deals not available elsewhere
Jome is featured in
- Single-Family
- Quick move-in
- $179.59/sqft
- 0.46-acre lot
Home description
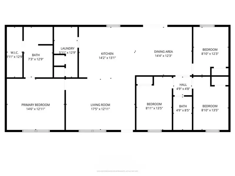
Brand-new manufactured home in the highly desirable Mansfield, ISD! FHA and VA friendly! Special financing offers may be available with preferred lender! Situated on just under half an acre, this beautiful open-concept home features 4 bedrooms and 2 bathrooms, including a generous-sized primary bedroom, primary bathroom, and walk-in closet, offering plenty of space both inside and out.
Enjoy peace of mind with everything brand new, including appliances and a recently installed septic system. With no major repairs in your near future, you can simply move in and start enjoying your new home.
Step outside and relax with your morning coffee on the front or back deck while taking in the extra space and privacy from neighbors. The generous lot gives you room to breathe and enjoy a bit of that country feel while still being close to the conveniences of the city.
This home grants easy access to major highways, making commutes simple and keeping you just a short drive from Sundance Square, the Fort Worth Stockyards, and everything the area has to offer. Property can be Perfected at closing by our Title Company.
AmbitionX Real Estate, MLS 21203921
Information last verified by Jome: Today at 1:48 AM (April 29, 2026)
Book your tour. Save an average of $18,473. We'll handle the rest.
We collect exclusive builder offers, book your tours, and support you from start to housewarming.
- Confirmed tours
- Get matched & compare top deals
- Expert help, no pressure
- No added fees
Estimated value based on Jome data, T&C apply
Home details
- Property status:
- Move-in ready
- Lot size (acres):
- 0.46
- Size:
- 1,475 sqft
- Stories:
- 1
- Beds:
- 4
- Baths:
- 2
- Fence:
- Wood Fence, No Fence
Construction details
- Year Built:
- 2025
- Roof:
- Composition Roofing
Home features & finishes
- Cooling:
- Central Air
- Flooring:
- Laminate FlooringVinyl Flooring
- Foundation Details:
- Pillar/Post/Pier
- Interior Features:
- Walk-In ClosetShutters
- Kitchen:
- DishwasherRefrigeratorDisposalElectric CooktopKitchen IslandKitchen Range
- Laundry facilities:
- DryerWasherStackable Washer/DryerUtility/Laundry Room
- Property amenities:
- Trees on propertyDeckBackyard
- Rooms:
- Primary Bedroom On MainOpen Concept FloorplanPrimary Bedroom Downstairs

Get a consultation with our New Homes Expert
- See how your home builds wealth
- Plan your home-buying roadmap
- Discover hidden gems
Utility information
- Heating:
- Electric Heating, Water Heater, Central Heating
- Utilities:
- Electricity Available, City Water System, Aerobic Septic System, High Speed Internet Access, Cable TV
Neighborhood
Home address
Schools in Mansfield Independent School District
GreatSchools’ Summary Rating calculation is based on 4 of the school’s themed ratings, including test scores, student/academic progress, college readiness, and equity. This information should only be used as a reference. Jome is not affiliated with GreatSchools and does not endorse or guarantee this information. Please reach out to schools directly to verify all information and enrollment eligibility. Data provided by GreatSchools.org © 2025
Places of interest
Getting around
Air quality
Natural hazards risk
Provided by FEMA

Considering this home?
Our expert will guide your tour, in-person or virtual
Need more information?
Text or call (888) 545-5198
Financials
Estimated monthly payment
Let us help you find your dream home
How many bedrooms are you looking for?
Similar homes nearby
Recently added communities in this area
Nearby communities in Burleson
New homes in nearby cities
More New Homes in Burleson, TX
AmbitionX Real Estate, MLS 21203921
IDX information is provided exclusively for personal, non-commercial use, and may not be used for any purpose other than to identify prospective properties consumers may be interested in purchasing. You may not reproduce or redistribute this data, it is for viewing purposes only. This data is deemed reliable, but is not guaranteed accurate by the MLS or NTREIS.
Read moreLast checked Apr 29, 4:00 pm
- Jome
- New homes search
- Texas
- Dallas-Fort Worth Area
- Johnson County
- Burleson
- 2504 Willow Oak Ln, Burleson, TX 76028

























