











Book your tour. Save an average of $18,473. We'll handle the rest.
- Confirmed tours
- Get matched & compare top deals
- Expert help, no pressure
- No added fees
Estimated value based on Jome data, T&C apply
- 3 bd
- 2 ba
- 1,500 sqft
2 Acre Lot 6 Calk Rd, Tioga, TX 76271
Why tour with Jome?
- No pressure toursTour at your own pace with no sales pressure
- Expert guidanceGet insights from our home buying experts
- Exclusive accessSee homes and deals not available elsewhere
Jome is featured in
- Single-Family
- Under construction
- $346/sqft
- 1.97-acre lot
Home description
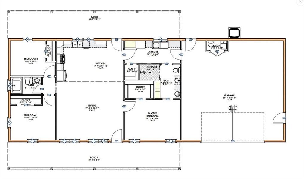
LOOKING TO RETIRE AFFORDABLY ON SOME LAND IN GRAYSON COUNTY?? COUNTRY LIVING AT ITS FINEST ON ALMOST TWO ACRES OF LAND + NEW BARNDO!! 1,500 Square Foot Custom Barndominium on Almost TWO ACRES AVAILABLE NOW in Wild Rose Ranch, Located in Tioga Tx and Close Proximity to Dallas North Tollway! Horse and Animals OK! Location Provides Easy Access to Celina, Prosper and Frisco Plus all the Shopping and Stores Including the Upcoming HEB and Costco. This Barndominium Design Floor Plan is a ONE STORY 1,500 SqFt Home that has 3 Full Bedrooms and 2 Bathrooms with Front Porch and Back Patio PLUS TWO CAR GARAGE. This Barndo is a Hybrid Build with Welded Metal Frame Roof and Wood Frame Walls & Interior. INCLUDES Polished Concrete Floors, 26ga R Panel Siding and Roof, Spray Foam Insulation, 1x4 Base Boards and Trim, Paint Grade Cabinets, Builder Grade Appliances & Builder Grade Fixtures. Located in County Land with Amazingly Low Tax Rate, NO HOA, NO MUD, NO PID! Please Contact the Agent Directly for More Information and Any Questions. You Can Drive by 1177 Calk Rd in Tioga to See the Proposed Lot 6 Where this Home Will be Built as Well as View the Other Lot Locations. This Custom Dream Home Can be Built on Any of the Four Available Lots in Wild Rose Ranch. This Price of 519k Includes Lot 6 - 1.97 Acres - AND Custom Barndomiunium Together! Builder is Wesley Farr Homes LLC, Luxury Home Builder Based in Celina, Tx. Lot is Big Enough for a Pool, Oversized Garage, RV Storage or Mother In Law Suite. Come Retire in the Grayson County and Pay Low Taxes and Still be Close to Major Cities! Get the Best of Both Worlds!
Amazing Brokerage, LLC, MLS 21050131
Information last verified by Jome: Yesterday at 1:16 AM (December 6, 2025)
Home highlights
Book your tour. Save an average of $18,473. We'll handle the rest.
We collect exclusive builder offers, book your tours, and support you from start to housewarming.
- Confirmed tours
- Get matched & compare top deals
- Expert help, no pressure
- No added fees
Estimated value based on Jome data, T&C apply
Home details
- Property status:
- Under construction
- Lot size (acres):
- 1.97
- Size:
- 1,500 sqft
- Stories:
- 1
- Beds:
- 3
- Baths:
- 2
- Garage spaces:
- 2
Construction details
- Year Built:
- 2025
- Roof:
- Metal Roofing
Home features & finishes
- Construction Materials:
- Metal SidingWood
- Cooling:
- Central Air
- Flooring:
- Concrete Flooring
- Foundation Details:
- Slab
- Garage/Parking:
- ParkingAssigned parkingGarageFront Entry Garage/ParkingMulti-Door GarageAttached Garage
- Home amenities:
- Green Construction
- Interior Features:
- Walk-In Closet
- Kitchen:
- DishwasherMicrowave OvenDisposal
- Laundry facilities:
- Stackable Washer/Dryer
- Lighting:
- Decorative/Designer Lighting
- Property amenities:
- Trees on propertyBackyard
- Rooms:
- Primary Bedroom On MainKitchenPrimary Bedroom Downstairs
Utility information
- Heating:
- Central Heating
- Utilities:
- Underground Utilities, Propane, Individual Water Meter, Individual Gas Meter, Aerobic Septic System, Cable TV
Neighborhood
Home address
Schools in Tioga Independent School District
GreatSchools’ Summary Rating calculation is based on 4 of the school’s themed ratings, including test scores, student/academic progress, college readiness, and equity. This information should only be used as a reference. Jome is not affiliated with GreatSchools and does not endorse or guarantee this information. Please reach out to schools directly to verify all information and enrollment eligibility. Data provided by GreatSchools.org © 2025
Places of interest
Getting around
Natural hazards risk
Climate hazards can impact homes and communities, with risks varying by location. These scores reflect the potential impact of natural disasters and climate-related risks on Grayson County
Provided by FEMA

Considering this home?
Our expert will guide your tour, in-person or virtual
Need more information?
Text or call (888) 486-2818
Financials
Similar homes nearby
Recently added communities in this area
Nearby communities in Tioga
New homes in nearby cities
More New Homes in Tioga, TX
Amazing Brokerage, LLC, MLS 21050131
IDX information is provided exclusively for personal, non-commercial use, and may not be used for any purpose other than to identify prospective properties consumers may be interested in purchasing. You may not reproduce or redistribute this data, it is for viewing purposes only. This data is deemed reliable, but is not guaranteed accurate by the MLS or NTREIS.
Read moreLast checked Dec 6, 10:00 pm
- Home
- New homes
- Texas
- Dallas-Fort Worth Area
- Grayson County
- Tioga
- 2 Acre Lot 6 Calk Rd, Tioga, TX 76271

























