































- 4 bd
- 2 ba
- 1,956 sqft
213 17Th St, Wolfforth, TX 79382
- Single-Family
- $148.88/sqft
- 155 days on Jome
New Homes for Sale Near 213 17Th St, Wolfforth, TX 79382
About this Home
About this home
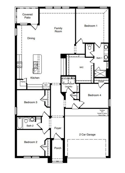
Welcome to 213 17th Street! Meet the Bentworth a single-story home featuring 4 spacious bedrooms, 2 full bathrooms, and an open-concept layout ideal for entertaining.
The kitchen includes a spacious island, pantry and opens to the dining and family room areas, all leading to a covered patio. The private primary suite offers a walk-in closet and double vanity with a walk-in shower in the bathroom.
Additional highlights include a 2-car garage, dedicated laundry room and ample storage space throughout.
May also be listed on the D.R. Horton website
Information last verified by Jome: Friday at 5:03 AM (November 14, 2025)
Home details
- Property status:
- Sold
- Size:
- 1,956 sqft
- Stories:
- 1
- Beds:
- 4
- Baths:
- 2
- Garage spaces:
- 2

Floor plan details
The Bentworth
- 4 bd
- 2 ba
- 1,956 sqft
View The Bentworth details
Construction details
- Builder Name:
- D.R. Horton
Home features & finishes
- Garage/Parking:
- Garage
- Rooms:
- Primary Bedroom On MainPrimary Bedroom Downstairs

Community details
Overlook West
by D.R. Horton, Wolfforth, TX
- 12 homes
- 16 plans
- 1,329 - 2,540 sqft
View Overlook West details
More homes in Overlook West
- Home at address 708 15Th St, Wolfforth, TX 79382

$253,120
Move-in ready- 4 bd
- 2 ba
- 1,727 sqft
708 15Th St, Wolfforth, TX 79382
- Home at address 1406 Fir Ave, Wolfforth, TX 79382

$256,990
Move-in ready- 4 bd
- 2 ba
- 1,827 sqft
1406 Fir Ave, Wolfforth, TX 79382
- Home at address 207 17Th St, Wolfforth, TX 79382

$275,990
Move-in ready- 4 bd
- 2 ba
- 1,737 sqft
207 17Th St, Wolfforth, TX 79382
- Home at address 223 17Th St, Wolfforth, TX 79382

$276,990
Move-in ready- 4 bd
- 2 ba
- 1,744 sqft
223 17Th St, Wolfforth, TX 79382
- Home at address 1307 Flint Ave, Wolfforth, TX 79382

$281,990
Move-in ready- 4 bd
- 2.5 ba
- 2,136 sqft
1307 Flint Ave, Wolfforth, TX 79382
- Home at address 618 15Th St, Wolfforth, TX 79382

$283,990
Move-in ready- 4 bd
- 2.5 ba
- 2,136 sqft
618 15Th St, Wolfforth, TX 79382
Floor plans in Overlook West
About the builder - D.R. Horton

- 1,199communities on Jome
- 9,060homes on Jome
Neighborhood
Home address
Schools in Frenship Independent School District
- Grades 06-08Publicnew middle3.4 mi7510 63rd stna
GreatSchools’ Summary Rating calculation is based on 4 of the school’s themed ratings, including test scores, student/academic progress, college readiness, and equity. This information should only be used as a reference. Jome is not affiliated with GreatSchools and does not endorse or guarantee this information. Please reach out to schools directly to verify all information and enrollment eligibility. Data provided by GreatSchools.org © 2025
Places of interest
Getting around
Air quality
Noise level
A Soundscore™ rating is a number between 50 (very loud) and 100 (very quiet) that tells you how loud a location is due to environmental noise.
Financials
Nearby communities in Wolfforth
Homes in Wolfforth by D.R. Horton
Recently added communities in this area
Other Builders in Wolfforth, TX
Nearby sold homes
New homes in nearby cities
More New Homes in Wolfforth, TX
- Jome
- New homes search
- Texas
- Lubbock County
- Wolfforth
- Overlook West
- 213 17Th St, Wolfforth, TX 79382




















































