














Book your tour. Save an average of $18,473. We'll handle the rest.
- Confirmed tours
- Get matched & compare top deals
- Expert help, no pressure
- No added fees
Estimated value based on Jome data, T&C apply













- 3 bd
- 2.5 ba
- 2,041 sqft
12300 Dillon Falls Dr, Austin, TX 78747
Why tour with Jome?
- No pressure toursTour at your own pace with no sales pressure
- Expert guidanceGet insights from our home buying experts
- Exclusive accessSee homes and deals not available elsewhere
Jome is featured in
- Single-Family
- Quick move-in
- $183.73/sqft
- $55/monthly HOA
Home description
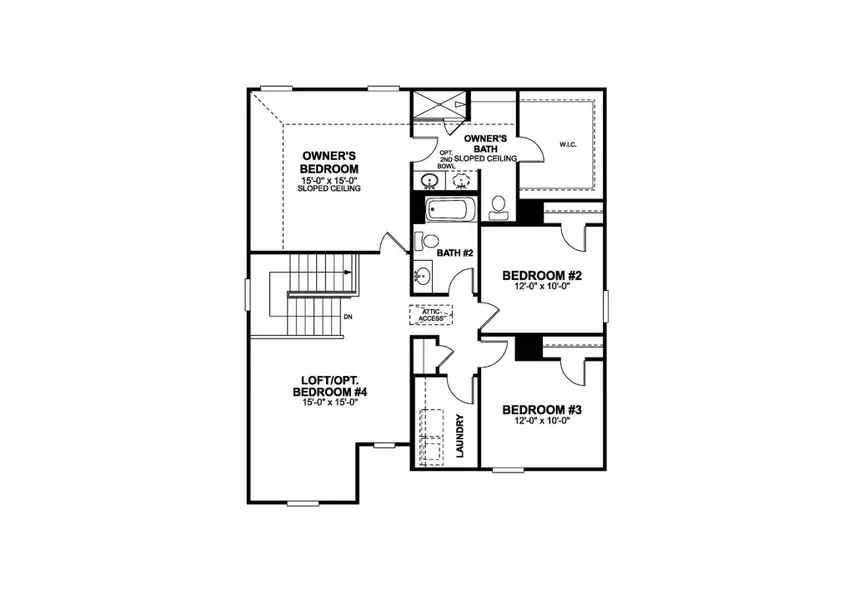
In the city limits of Austin, one of our newest floor plans, the Sheldon, offers an ideal blend of space, style, and functionality across 2 stories with 2,041 square feet. This home includes 3 bedrooms, 2.5 bathrooms, and a 2-car garage. The first floor welcomes you with a cozy study. The heart of the home is the open-concept living area, where the family room connects seamlessly to the dining room and kitchen. The kitchen is thoughtfully designed with a spacious pantry, a kitchen island, and plenty of counter space. For those who love to entertain or enjoy the outdoors, the covered patio off the back allows you to extend your living space outside. On the second floor, the expansive owner’s bedroom offers a peaceful retreat with an oversized walk-in closet and an en-suite owner's bathroom. The second floor also includes two additional bedrooms and a shared bathroom with a loft. This home is one block away from the community pool and amenities making it a prime location in the heart of the community. Come make an appointment today to see this wonderful home as it will not be on the market long with this amazing price!
M/I Homes Realty, MLS 1780641
May also be listed on the M/I Homes website
Information last verified by Jome: Yesterday at 12:40 PM (December 6, 2025)
Home highlights
Expansive Austin greenbelt with hiking, swimming holes, and limestone cliffs tucked amid Hill Country suburbs.
Book your tour. Save an average of $18,473. We'll handle the rest.
We collect exclusive builder offers, book your tours, and support you from start to housewarming.
- Confirmed tours
- Get matched & compare top deals
- Expert help, no pressure
- No added fees
Estimated value based on Jome data, T&C apply
Home details
- Property status:
- Move-in ready
- Neighborhood:
- Onion Creek
- Lot size (acres):
- 0.14
- Size:
- 2,041 sqft
- Stories:
- 2
- Beds:
- 3
- Baths:
- 2
- Half baths:
- 1
- Garage spaces:
- 2
- Fence:
- Wood Fence, Wrought Iron Fence
- Facing direction:
- Southeast
Construction details
- Builder Name:
- M/I Homes
- Completion Date:
- December, 2025
- Year Built:
- 2025
- Roof:
- Composition Roofing
Home features & finishes
- Appliances:
- Exhaust FanExhaust Fan Vented
- Cooling:
- Central Air
- Flooring:
- Vinyl FlooringCarpet FlooringTile Flooring
- Foundation Details:
- Slab
- Garage/Parking:
- GarageFront Entry Garage/ParkingAttached Garage
- Home amenities:
- Green Construction
- Interior Features:
- Ceiling-HighWalk-In ClosetPantryFrench DoorsDouble Vanity
- Kitchen:
- DishwasherMicrowave OvenDisposalStainless Steel AppliancesGas CooktopSelf Cleaning OvenKitchen IslandGas OvenKitchen Range
- Laundry facilities:
- Dryer
- Lighting:
- Exterior Lighting
- Property amenities:
- BackyardYard
- Rooms:
- Open Concept Floorplan
- Security system:
- Carbon Monoxide Detector
Utility information
- Heating:
- Electric Heating, Thermostat, Water Heater, Gas Heating, Tankless water heater
- Utilities:
- Electricity Available, Natural Gas Available, Underground Utilities, Internet Cable, HVAC, Cable Available, Sewer Available, Water Available, High Speed Internet Access

Community details
Cascades at Onion Creek
by M/I Homes, Austin, TX
- 21 homes
- 13 plans
- 1,553 - 2,728 sqft
View Cascades at Onion Creek details
Community amenities
- Common Grounds
- Playground
- Community Pool
- Picnic Area
- Cluster Mailbox
- Sidewalks Available
- Greenbelt View
- High Speed Internet Access
More homes in Cascades at Onion Creek
Floor plans in Cascades at Onion Creek
About the builder - M/I Homes
Neighborhood
Home address
Schools in Austin Independent School District
GreatSchools’ Summary Rating calculation is based on 4 of the school’s themed ratings, including test scores, student/academic progress, college readiness, and equity. This information should only be used as a reference. Jome is not affiliated with GreatSchools and does not endorse or guarantee this information. Please reach out to schools directly to verify all information and enrollment eligibility. Data provided by GreatSchools.org © 2025
Places of interest
Getting around
Air quality
Noise level
A Soundscore™ rating is a number between 50 (very loud) and 100 (very quiet) that tells you how loud a location is due to environmental noise.
Natural hazards risk
Climate hazards can impact homes and communities, with risks varying by location. These scores reflect the potential impact of natural disasters and climate-related risks on Travis County
Provided by FEMA

Considering this home?
Our expert will guide your tour, in-person or virtual
Need more information?
Text or call (888) 486-2818
Financials
Estimated monthly payment
Similar homes nearby
Recently added communities in this area
Nearby communities in Austin
New homes in nearby cities
More New Homes in Austin, TX
M/I Homes Realty, MLS 1780641
Based on information from the Austin Board of REALTORS® (alternatively, from ACTRIS) for the period through 08/13/2024. Neither the Board nor ACTRIS guarantees or is in any way responsible for its accuracy. All data is provided “AS IS” and with all faults. Data maintained by the Board or ACTRIS may not reflect all real estate activity in the market. Information being provided is for consumers’ personal, non-commercial use and may not be used for any purpose other than to identify prospective properties consumers may be interested in purchasing. The Digital Millennium Copyright Act of 1998, 17 U.S.C. § 512 (the “DMCA”) provides recourse for copyright owners who believe that material appearing on the Internet infringes their rights under U.S. copyright law. If you believe in good faith that any content or material made available in connection with our website or services infringes your copyright, you (or your agent) may send us a notice requesting that the content or material be removed, or access to it blocked. Notices must be sent in writing by email to DMCAnotice@MLSGrid.com. The DMCA requires that your notice of alleged copyright infringement include the following information: (1) description of the copyrighted work that is the subject of claimed infringement; (2) description of the alleged infringing content and information sufficient to permit us to locate the content; (3) contact information for you, including your address, telephone number and email address; (4) a statement by you that you have a good faith belief that the content in the manner complained of is not authorized by the copyright owner, or its agent, or by the operation of any law; (5) a statement by you, signed under penalty of perjury, that the information in the notification is accurate and that you have the authority to enforce the copyrights that are claimed to be infringed; and (6) a physical or electronic signature of the copyright owner or a person authorized to act on the copyright owner’s behalf. Failure to include all of the above information may result in the delay of the processing of your complaint.
Read moreLast checked Dec 7, 12:40 am
- Home
- New homes
- Texas
- Greater Austin Area
- Travis County
- Austin
- Cascades at Onion Creek
- 12300 Dillon Falls Dr, Austin, TX 78747








































