







Book your tour. Save an average of $18,473. We'll handle the rest.
We collect exclusive builder offers, book your tours, and support you from start to housewarming.
- Confirmed tours
- Get matched & compare top deals
- Expert help, no pressure
- No added fees
Estimated value based on Jome data, T&C apply






























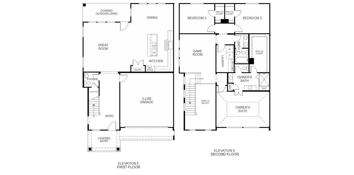
- 3 bd
- 2.5 ba
- 2,425 sqft
317 Chestnut St, Celina, TX 75009
Why tour with Jome?
- No pressure toursTour at your own pace with no sales pressure
- Expert guidanceGet insights from our home buying experts
- Exclusive accessSee homes and deals not available elsewhere
Jome is featured in
- Single-Family
- Quick move-in
- $164.94/sqft
- $1,000/annual HOA
Home description
CORNER UNIT Embrace a refined, low-maintenance lifestyle just blocks from The Square at Historical Downtown Celina. Olivia Clarke Homes proudly presents a unique enclave of Paired Homes, seamlessly blending with the charming historical residences of beautiful Downtown Celina. Step into the Hunt model, where natural light floods your living space through a stunning wall of windows in the exquisite kitchen. This culinary haven boasts a gas cooktop, stainless steel appliances, and a spacious island with seating for four, flowing effortlessly into the family room—perfect for entertaining. Retreat to the expansive, private primary bedroom 20 x 13, featuring an ensuite spa bathroom and a 14 foot long walk-in closet. The upstairs game room provides an ideal retreat for children to play and relax. Enjoy outdoor living with covered front and back porches and a pet-friendly backyard. This home also includes a two-car garage. Living here means you're just steps away from the vibrant heart of Downtown Celina. The Square is a bustling hub of activity, offering a unique blend of historic charm and modern amenities. Delight in boutique shopping, diverse dining options, and a variety of community events throughout the year, such as the Cajun Festival, Christmas on the Square, and Friday night markets. The area is also golf cart-friendly, making it easy to explore the neighborhood and its many attractions. Call Diane today to make this dream home yours! Seller offering FHA 4.99 rate on a 5 YR ARM
Ryan Griffin, MLS 21170788
May also be listed on the Olivia Clarke Homes website
Information last verified by Jome: Today at 1:48 AM (March 19, 2026)
Book your tour. Save an average of $18,473. We'll handle the rest.
We collect exclusive builder offers, book your tours, and support you from start to housewarming.
- Confirmed tours
- Get matched & compare top deals
- Expert help, no pressure
- No added fees
Estimated value based on Jome data, T&C apply
Home details
- Property status:
- Move-in ready
- Lot size (acres):
- 0.08
- Size:
- 2,425 sqft
- Stories:
- 2
- Beds:
- 3
- Baths:
- 2
- Half baths:
- 1
- Garage spaces:
- 2
- Fence:
- Wood Fence
Construction details
- Builder Name:
- Olivia Clarke Homes
- Year Built:
- 2025
- Roof:
- Roof Gutter, Composition Roofing
Home features & finishes
- Appliances:
- Sprinkler System
- Construction Materials:
- Cement
- Cooling:
- Ceiling Fan(s)Central Air
- Flooring:
- Ceramic FlooringWood FlooringCarpet FlooringTile Flooring
- Foundation Details:
- Slab
- Garage/Parking:
- Door OpenerGarageFront Entry Garage/ParkingAttached Garage
- Home amenities:
- ENERGY STAR CertifiedGreen Construction
- Interior Features:
- Walk-In ClosetPantryStorageFlat Screen WiringDouble Vanity
- Kitchen:
- DishwasherMicrowave OvenDisposalGas CooktopGranite countertopKitchen IslandElectric Oven
- Laundry facilities:
- Laundry Facilities On Upper LevelDryerWasherUtility/Laundry Room
- Lighting:
- Decorative/Designer Lighting
- Property amenities:
- SidewalkBackyardCovered Outdoor LivingPatioFireplacePorch
- Rooms:
- KitchenPowder RoomGame RoomDining RoomFamily RoomOpen Concept FloorplanPrimary Bedroom Upstairs
- Security system:
- Fire Alarm SystemFirewallCarbon Monoxide Detector

Get a consultation with our New Homes Expert
- See how your home builds wealth
- Plan your home-buying roadmap
- Discover hidden gems
Utility information
- Heating:
- Water Heater, Central Heating, Gas Heating, Tankless water heater
- Utilities:
- City Water System, Cable Available, Individual Water Meter, Individual Gas Meter, High Speed Internet Access, Cable TV, Curbs

Community details
North Square at Uptown
by Olivia Clarke Homes, Celina, TX
- 6 homes
- 4 plans
- 2,072 - 2,507 sqft
View North Square at Uptown details
More homes in North Square at Uptown
- Home at address 328 Chestnut St, Celina, TX 75009

Burke
$395,000
- 3 bd
- 2.5 ba
- 2,079 sqft
328 Chestnut St, Celina, TX 75009
- Home at address 316 Chestnut St, Celina, TX 75009

Sloan
$399,000
- 3 bd
- 2.5 ba
- 2,410 sqft
316 Chestnut St, Celina, TX 75009
- Home at address 325 Chestnut St, Celina, TX 75009

Sloan
$414,900
- 3 bd
- 2.5 ba
- 2,499 sqft
325 Chestnut St, Celina, TX 75009
- Home at address 336 Chestnut St, Celina, TX 75009

Shiloh
$443,473
- 3 bd
- 2.5 ba
- 2,499 sqft
336 Chestnut St, Celina, TX 75009
- Home at address 101 Chestnut St, Celina, TX 75009

Shiloh
$499,990
- 3 bd
- 2.5 ba
- 2,499 sqft
101 Chestnut St, Celina, TX 75009
Floor plans in North Square at Uptown
About the builder - Olivia Clarke Homes
Neighborhood
Home address
Schools in Celina Independent School District
- Grades KG-05Publicbobby ray & afton martin elementary2.1 mi2905 n louisiana drna
- Grades M-MPublicnew elementary3.1 mi2120 coventry drna
GreatSchools’ Summary Rating calculation is based on 4 of the school’s themed ratings, including test scores, student/academic progress, college readiness, and equity. This information should only be used as a reference. Jome is not affiliated with GreatSchools and does not endorse or guarantee this information. Please reach out to schools directly to verify all information and enrollment eligibility. Data provided by GreatSchools.org © 2025
Places of interest
Getting around
Air quality
Noise level
A Soundscore™ rating is a number between 50 (very loud) and 100 (very quiet) that tells you how loud a location is due to environmental noise.

Considering this home?
Our expert will guide your tour, in-person or virtual
Need more information?
Text or call (888) 545-5198
Financials
Estimated monthly payment
Let us help you find your dream home
How many bedrooms are you looking for?
Similar homes nearby
Recently added communities in this area
Nearby communities in Celina
New homes in nearby cities
More New Homes in Celina, TX
Ryan Griffin, MLS 21170788
IDX information is provided exclusively for personal, non-commercial use, and may not be used for any purpose other than to identify prospective properties consumers may be interested in purchasing. You may not reproduce or redistribute this data, it is for viewing purposes only. This data is deemed reliable, but is not guaranteed accurate by the MLS or NTREIS.
Read moreLast checked Mar 19, 4:00 pm
- Jome
- New homes search
- Texas
- Dallas-Fort Worth Area
- Collin County
- Celina
- North Square at Uptown
- 317 Chestnut St, Celina, TX 75009



























